Eladó Lakás
Hirdetéskód: 9248027

OTP Ingatlanpont Csongrád

Felújításhoz személyi kölcsönt keres? Kalkuláljon itt! →
FIX 3% Program

Ez a hirdetés megfelelhet a FIX 3%-os programnak.
Tudj meg többet a részletekről itt.

55.00 m2
ALAPTERÜLET
2
SZOBASZÁM
nincs megadva
ÉPÍTÉS
Távfűtés
FŰTÉS
  • CSOK igénybe vehető nem
  • Tetőtér beépíthető nem
  • Építés éve 1980
  • Fűtés Távfűtés
  • Klíma nem
  • Szigetelt nem
Energetikai besorolás: Nincs meghatározva
A+++
A++
A+
A
B
C
D
E
F
G
H
I

Az MBH Bank személyi kölcsön ajánlata

Fizetett hirdetés
1 millió Ft
6 évre
20 585 Ft/hó
THM: 14.5%
Részletek →
2 millió Ft
6 évre
41 169 Ft/hó
THM: 14.5%
Részletek →
3 millió Ft
6 évre
61 754 Ft/hó
THM: 14.5%
Részletek →

A tájékoztatás nem teljes körű és nem minősül ajánlattételnek.

Az ingatlan leírása

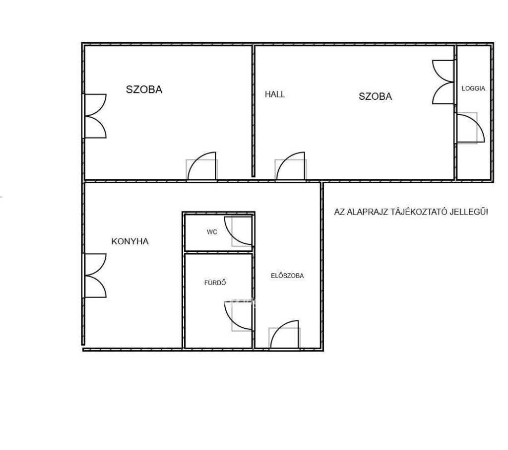
Szeged Felsőváros, Tisza-parthoz és a belvároshoz közel lévő magasföldszintes lakás, részben felújítva, nyílászárók kicserélve, 2 szoba hallos, 55 nm lakás eladó! Alatta lévő fűtött garázs szintén megvásárolható. A lakás jómódú társasházak ölelésében található, nagyon jó közlekedéssel, buszmegálló, troli 3-4 perc távolságra elérhető. A lakás közel a Tiszához, de mégis csendes utcában található, a nappali egy hatalmas parkra tekint, nincs szemben lévő szomszéd. A lakás adásvétel után, azonnal költözhető, birtokba vehető. Az ingatlan megvásárlásához kedvező hitel igényelhető, melynek intézéséhez szakszerű segítség áll a leendő vásárló rendelkezésére.
Megtekintés bármikor, előtte időpont egyeztetéssel.

Térkép

Ingatlan adásvétel ügyvédi díja
250 650 Ft
a hirdetésben szereplő ár alapján
  • A vételár 0,45%-a
  • Szerződéscsomag teljeskörű képviselettel
  • Ingyenes tulajdoni lap ellenőrzés
  • Az ÁFA-t már tartalmazza
Érdekel az ajánlat →
A tájékoztatás nem teljes körű és nem minősül ajánlattételnek. Minimum díj: 150 000 Ft, maximum díj: 600 000 Ft. A díj kizárólag lakóingatlan adásvételére vonatkozik.

A hirdető elérhetősége

OTP Ingatlanpont Csongrád

Berényiné Annus Krisztina
+36 30 487