Eladó Lakás
Hirdetéskód: 9247959
OTP Ingatlanpont Csongrád
Ez a hirdetés megfelelhet a FIX 3%-os programnak.
Tudj meg többet a részletekről itt.
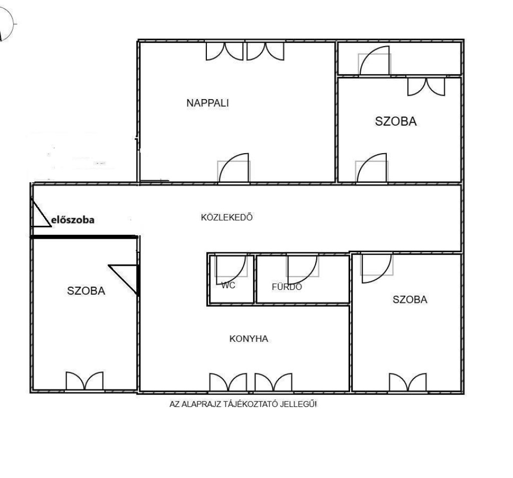
72.00 m2
ALAPTERÜLET2
SZOBASZÁMnincs megadva
ÉPÍTÉSnincs megadva
FŰTÉS- CSOK igénybe vehető nem
- Tetőtér beépíthető nem
- Építés éve 1989
- Klíma nem
- Szigetelt nem
A+++
A++
A+
A
B
C
D
E
F
G
H
I
Az ingatlan leírása
Szeged, Rókus városrész, Makkoserdő sornál lévő, magasföldszinti 2+2, felújított, 72 nm panel lakás eladó! A lakás elhelyezkedése kiváló, közel a központhoz, jó közlekedéssel, de mégis csendes utcában helyezkedik el. Az épület előtt park van, ami még otthonosabbá teszi a környéket. A lakás hőszigetelt, minden szobában beépített minőségi bútorokkal, felújított konyha, beépített bútorzattal, loggiás, kényelmes otthon, alacsony rezsivel. Az otthon melegét távfűtés biztosítja, azonban hűtő -fűtő klíma is bevezetésre került. A lakás minden égtájról nyitott, ezért világos lakás, körbejárja a nap. Azonban nem meleg, jó a szellőzése, alacsony rezsivel.
Amennyiben egy szép és kényelmes lakást keres, megtalálta! Hívjon most, és megbeszéljük a továbbiakat. Amennyiben meglévő ingatlanát még el kell adnia, abban is segítünk.
Az ingatlan megvásárlásához kedvező hitel is igényelhető, melynek intézéséhez szakszerű segítség áll a leendő vásárló rendelkezésére.
Amennyiben egy szép és kényelmes lakást keres, megtalálta! Hívjon most, és megbeszéljük a továbbiakat. Amennyiben meglévő ingatlanát még el kell adnia, abban is segítünk.
Az ingatlan megvásárlásához kedvező hitel is igényelhető, melynek intézéséhez szakszerű segítség áll a leendő vásárló rendelkezésére.