Eladó Lakás
Hirdetéskód: 9247411

OTP Ingatlanpont Csongrád

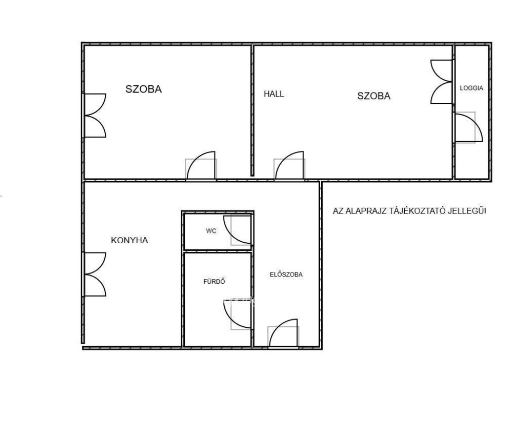
55.00 m2
ALAPTERÜLET
2
SZOBASZÁM
nincs megadva
ÉPÍTÉS
nincs megadva
FŰTÉS
  • CSOK igénybe vehető nem
  • Tetőtér beépíthető nem
  • Építés éve 1980
  • Klíma nem
  • Szigetelt nem
Energetikai besorolás: Nincs meghatározva
A+++
A++
A+
A
B
C
D
E
F
G
H
I

Az ingatlan leírása

Szeged Felsőváros, Tisza-parthoz és a belvároshoz közel lévő magasföldszintes lakás, részben felújítva, nyílászárók kicserélve, 2 szoba hallos, 55 nm lakás eladó! Alatta lévő fűtött garázs szintén megvásárolható. A lakás jómódú társasházak ölelésében található, nagyon jó közlekedéssel, buszmegálló, troli 3-4 perc távolságra elérhető. A lakás közel a Tiszához, de mégis csendes utcában található, a nappali egy hatalmas parkra tekint, nincs szemben lévő szomszéd. A lakás adásvétel után, azonnal költözhető, birtokba vehető. Az ingatlan megvásárlásához kedvező hitel igényelhető, melynek intézéséhez szakszerű segítség áll a leendő vásárló rendelkezésére.
Megtekintés bármikor, előtte időpont egyeztetéssel.

Térkép

A hirdető elérhetősége

OTP Ingatlanpont Csongrád

Vincze Zoltán
+36 70 708