Eladó Lakás
Hirdetéskód: 9260060

OTP Ingatlanpont Csongrád

Felújításhoz személyi kölcsönt keres? Kalkuláljon itt! →
FIX 3% Program

Ez a hirdetés megfelelhet a FIX 3%-os programnak.
Tudj meg többet a részletekről itt.

152.00 m2
ALAPTERÜLET
4
SZOBASZÁM
nincs megadva
ÉPÍTÉS
Egyéb fűtés
FŰTÉS
  • CSOK igénybe vehető nem
  • Tetőtér beépíthető nem
  • Építés éve 1965
  • Fűtés Egyéb fűtés
  • Klíma nem
  • Szigetelt nem
Energetikai besorolás: Nincs meghatározva
A+++
A++
A+
A
B
C
D
E
F
G
H
I

Az MBH Bank személyi kölcsön ajánlata

Fizetett hirdetés
1 millió Ft
6 évre
20 585 Ft/hó
THM: 14.5%
Részletek →
2 millió Ft
6 évre
41 169 Ft/hó
THM: 14.5%
Részletek →
3 millió Ft
6 évre
61 754 Ft/hó
THM: 14.5%
Részletek →

A tájékoztatás nem teljes körű és nem minősül ajánlattételnek.

Az ingatlan leírása

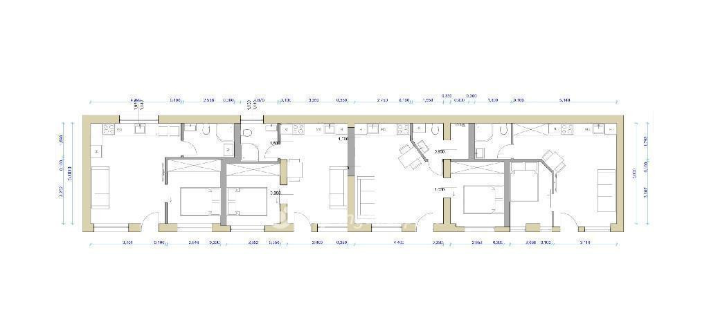
Szeged belvárosában eladó egy 140 m2-es, belső udvari épület, amelyhez 2 db saját fedett udvari autóbeálló tartozik. Az ingatlan rendkívül ritka adottságokkal rendelkezik: teljesen különálló épület a belvárosban, mégis csendes, nyugodt környezetben.
Az épület kiválóan alkalmas befektetési célra, mivel benne 4 darab, egyenként 30-35 m2-es garzonlakás alakítható ki. A méret és az elrendezés ideálissá teszi rövid- és hosszútávú kiadásra egyaránt, különösen a belvárosi elhelyezkedés miatt.
A saját két udvari parkoló jelentős piaci előnyt jelent, hiszen a belvárosban az autóbeálló ritka és rendkívül keresett.
Az ingatlan csendes, belső udvari elhelyezkedése miatt kiváló lakhatásra és bérbeadásra is, miközben minden belvárosi szolgáltatás pár perc sétára elérhető.
Az egyetemek és a klinikák közelsége miatt kedvező lehetőség diákok, befektetők számára is.

Térkép

Ingatlan adásvétel ügyvédi díja
337 500 Ft
a hirdetésben szereplő ár alapján
  • A vételár 0,45%-a
  • Szerződéscsomag teljeskörű képviselettel
  • Ingyenes tulajdoni lap ellenőrzés
  • Az ÁFA-t már tartalmazza
Érdekel az ajánlat →
A tájékoztatás nem teljes körű és nem minősül ajánlattételnek. Minimum díj: 150 000 Ft, maximum díj: 600 000 Ft. A díj kizárólag lakóingatlan adásvételére vonatkozik.

A hirdető elérhetősége

OTP Ingatlanpont Csongrád

Majzik Alexandra
+36 70 429