Eladó Lakás
Hirdetéskód: 9311139
OTP Ingatlanpont Csongrád
Felújításhoz személyi kölcsönt keres? Kalkuláljon itt! →302.00 m2
ALAPTERÜLET6
SZOBASZÁMnincs megadva
ÉPÍTÉSEgyéb fűtés
FŰTÉS- CSOK igénybe vehető nem
- Tetőtér beépíthető nem
- Építés éve 2023
- Fűtés Egyéb fűtés
- Klíma nem
- Szigetelt nem
A+++
A++
A+
A
B
C
D
E
F
G
H
I
Az ingatlan leírása
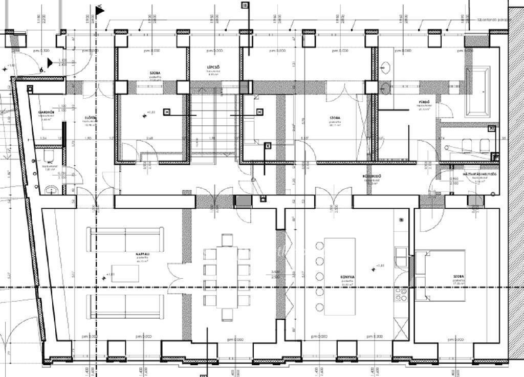
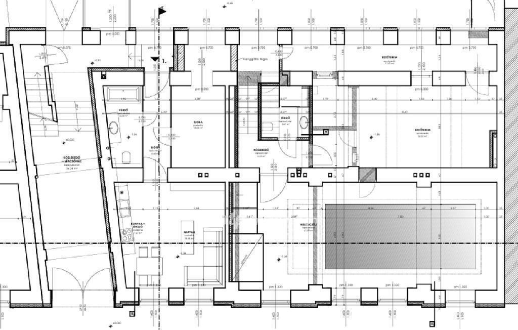
Szeged belvárosában kínálunk megvételre egy valóban egyedülálló, ÖNFENNTARTÓ, 302 m2 alapterületű, 5 szobás, magasföldszinti luxuslakást, amely egy exkluzív városi rezidencia kényelmét és egy privát wellness otthon nyugalmát ötvözi.
Az ingatlan saját, intelligens vezérlőrendszerrel rendelkezik, amely a fűtést, hűtést, világítást és az árnyékolást is kezeli, így a teljes lakás egyetlen központból irányítható. A tágas terek, a nagy belmagasság és a prémium burkolatok elegáns, időtálló atmoszférát teremtenek.
A lakás különlegessége a saját, fűtött medencével kialakított wellness-rész, valamint a privát konditerem, amely valódi luxuséletstílust biztosít anélkül, hogy el kellene hagyni az otthont. Ilyen adottság Szegeden rendkívül ritka.
Az ingatlanhoz autóbeállási lehetőség is tartozik, ami a belvárosban kiemelt értéket képvisel. Az elhelyezkedés tökéletes: csendes, mégis minden fontos szolgáltatás, étterem, kulturális és üzleti központ néhány perc sétával elérhető.
Ez az ingatlan nem csupán egy lakás, hanem egy városi luxusrezidencia, amely azoknak szól, akik nem kötnek kompromisszumot térben, kényelemben és exkluzivitásban.
Megtekintésért keressen bizalommal!
Az energetikai tanúsítvány készítése folyamatban van, amint rendelkezésre áll, úgy azzal a hirdetés frissítésre kerül.
Az ingatlan saját, intelligens vezérlőrendszerrel rendelkezik, amely a fűtést, hűtést, világítást és az árnyékolást is kezeli, így a teljes lakás egyetlen központból irányítható. A tágas terek, a nagy belmagasság és a prémium burkolatok elegáns, időtálló atmoszférát teremtenek.
A lakás különlegessége a saját, fűtött medencével kialakított wellness-rész, valamint a privát konditerem, amely valódi luxuséletstílust biztosít anélkül, hogy el kellene hagyni az otthont. Ilyen adottság Szegeden rendkívül ritka.
Az ingatlanhoz autóbeállási lehetőség is tartozik, ami a belvárosban kiemelt értéket képvisel. Az elhelyezkedés tökéletes: csendes, mégis minden fontos szolgáltatás, étterem, kulturális és üzleti központ néhány perc sétával elérhető.
Ez az ingatlan nem csupán egy lakás, hanem egy városi luxusrezidencia, amely azoknak szól, akik nem kötnek kompromisszumot térben, kényelemben és exkluzivitásban.
Megtekintésért keressen bizalommal!
Az energetikai tanúsítvány készítése folyamatban van, amint rendelkezésre áll, úgy azzal a hirdetés frissítésre kerül.