Eladó Lakás
Hirdetéskód: 9225630
Ingatlan Cafe Kft
Ez a hirdetés megfelelhet a FIX 3%-os programnak.
Tudj meg többet a részletekről itt.
53.00 m2
ALAPTERÜLET2
SZOBASZÁMTégla
ÉPÍTÉSEgyéb fűtés
FŰTÉS- CSOK igénybe vehető igen
- Belső szintek 2
- Tetőtér beépíthető igen
- Kilátás Kertre néző
- Tájolás Délnyugat
- Ingatlan komfort Összkomfortos
- Parkolási lehetőség Udvari beálló
- Építés éve 2026
- Fűtés Egyéb fűtés
- Építőanyag Tégla
- Erkély, terasz Erkély
- Klíma nem
- Szigetelt nem
A+++
A++
A+
A
B
C
D
E
F
G
H
I
Az ingatlan leírása
Szeged-Alsóvároson ÚJÉPÍTÉSŰ, kulcsrakész 2. emeleti, 67/53 m2-es, nappali +2 szobás lakás nagy erkéllyel, most épülő, PRÉMIUM minőségű társasházban 2026. decemberi átadással eladó!
Alsóvároson ÚJÉPÍTÉSŰ, kulcsrakész lakások most épülő, PRÉMIUM minőségű társasházban 2026. decemberi átadással eladók!
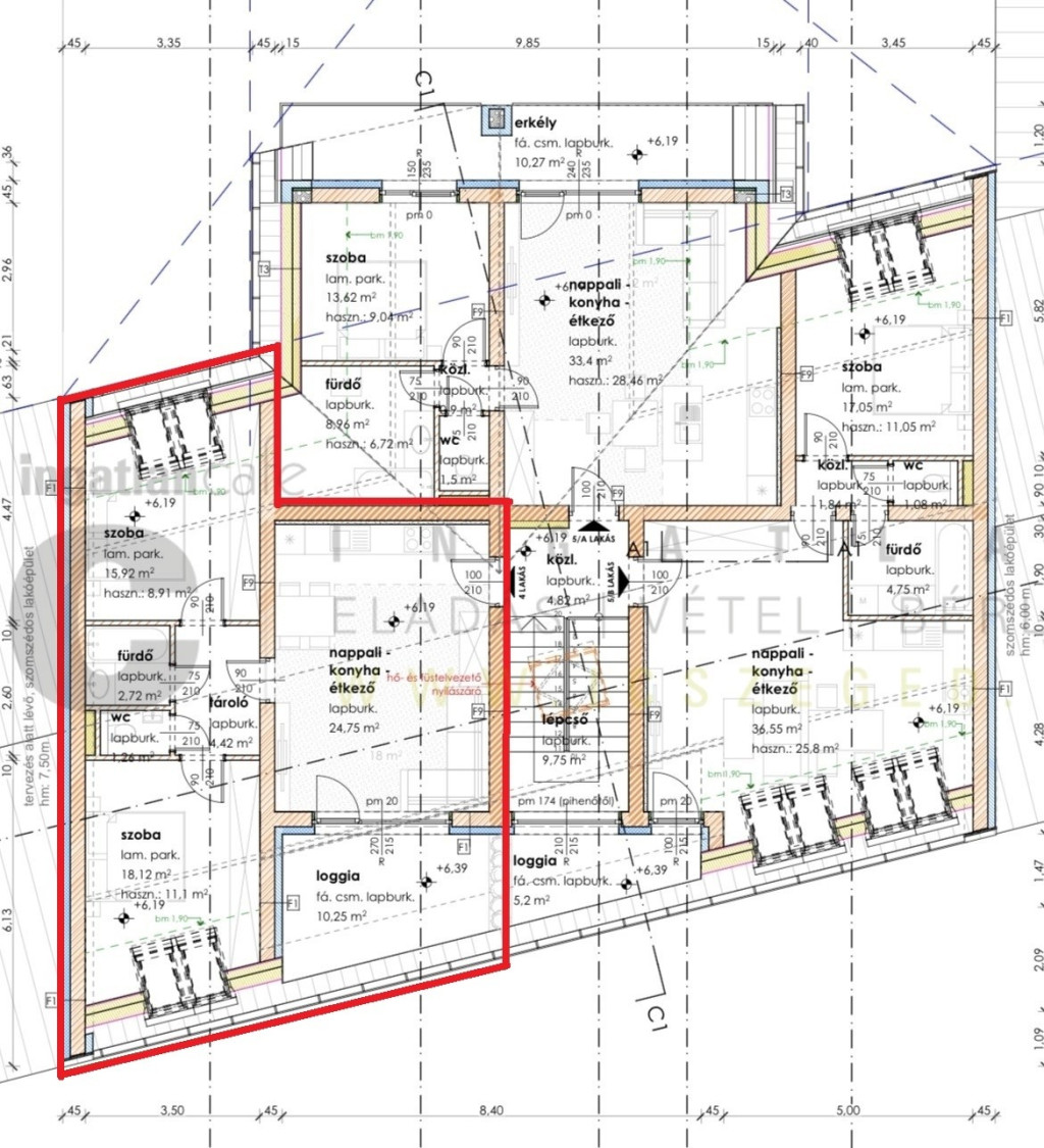
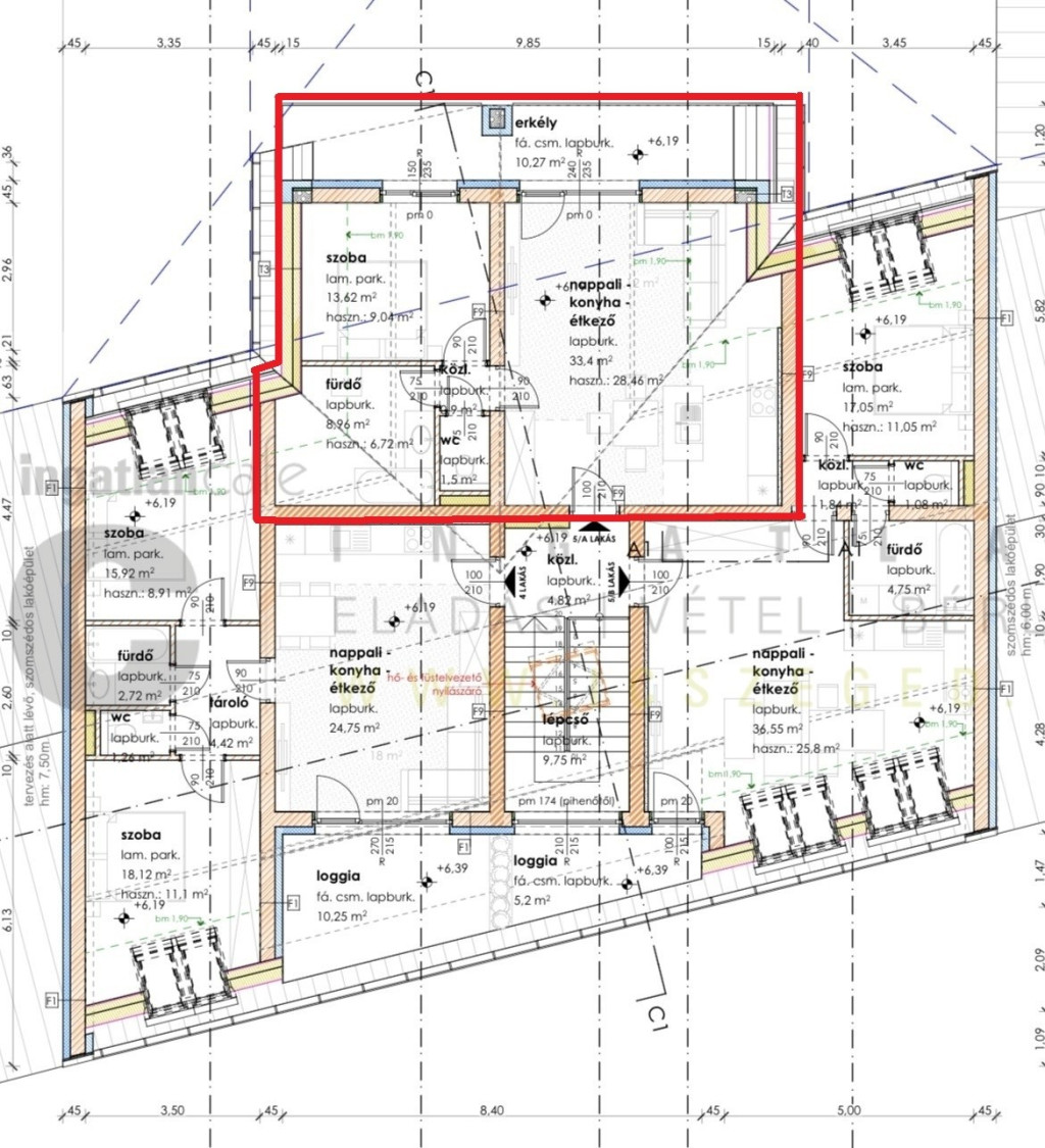
A 2. emeleti lakás
- nettó 53/bruttó 67,19 m2-es lakóterületű
- amerikai konyhás nappali+2 szobás
- 10,2 m2-es loggia-val rendelkezik
- remek elosztású
- ideális elrendezésével tökéletes választás
Szeged-alsóváros egyetemekhez közeli, mégis csendes, átmenő forgalomtól mentes kis utcája a Homok utca. Itt épül ez a kiváló paraméterekkel rendelkező, mindössze nyolclakásos, kétemeletes, zárt, parkosított udvarral rendelkező társasház.
A MODERN vonalú, masszív, időtálló épület a mai korszerű elvárások szerint épül, néhány paraméter:
- Wienerberger Porotherm 30 X-therm Rapid Dryfix síkra csiszolt tégla és Porotherm 30 AKU Z tégla hang-gátló válaszfalak
- 15 cm-es hőszigetelés
- STIEBEL ELTRON hőszivattyú padlófűtés
- AERECO V2A szellőztető rendszer
- Rehau synego színezett, 3 rétegű nyílászárók
- Rehau bejárati ajtók
- Hansgrohe csaptelepek
- Legrand valena life szerelvények
- 10 ezer Ft/m2-ig (bruttó) választható burkolatok
- 100 ezer Ft-ig (bruttó) választható beltéri ajtók
- térkövezett udvar autóbeállókkal
- Hörmann kapus garázsok
Bővebb információ a műszaki tartalomban!
A remek referenciákkal rendelkező kivitelező 2026. decemberi kulcsrakész befejezést vállal, az alapozás már elkezdődött.
A földszinti lakás saját kertkapcsolattal rendelkezik, az első emeleti lakások mind erkélyesek, ahogy a tetőtériek is. Igény szerint a lakásokhoz garázs vagy udvari autóbeálló vásárolható.
KULCSRAKÉSZ négyzetméter árak:
-Földszint 1.425.000.Ft/m2
az ár tartalmazza az alaprajzon megjelölt kizárólagos kerthasználatot.
-1. emelet 1.375.000.Ft/m2
a teraszok területe 50%-kal növeli meg a lakások alapterületét.
-Tetőtér 1.275.000.Ft/m2
a teraszok területe 50%-kal növeli meg a lakások alapterületét.
A minimális 190 cm belmagasság számít a hasznos alapterületnek a tetőtérben.
Az árak bruttó árak és tartalmazzák az 5% ÁFA-t.
Az ingatlan kizárólagos értékesítőjeként várom megkeresésüket a részletekkel kapcsolatban!
Alsóvároson ÚJÉPÍTÉSŰ, kulcsrakész lakások most épülő, PRÉMIUM minőségű társasházban 2026. decemberi átadással eladók!
A 2. emeleti lakás
- nettó 53/bruttó 67,19 m2-es lakóterületű
- amerikai konyhás nappali+2 szobás
- 10,2 m2-es loggia-val rendelkezik
- remek elosztású
- ideális elrendezésével tökéletes választás
Szeged-alsóváros egyetemekhez közeli, mégis csendes, átmenő forgalomtól mentes kis utcája a Homok utca. Itt épül ez a kiváló paraméterekkel rendelkező, mindössze nyolclakásos, kétemeletes, zárt, parkosított udvarral rendelkező társasház.
A MODERN vonalú, masszív, időtálló épület a mai korszerű elvárások szerint épül, néhány paraméter:
- Wienerberger Porotherm 30 X-therm Rapid Dryfix síkra csiszolt tégla és Porotherm 30 AKU Z tégla hang-gátló válaszfalak
- 15 cm-es hőszigetelés
- STIEBEL ELTRON hőszivattyú padlófűtés
- AERECO V2A szellőztető rendszer
- Rehau synego színezett, 3 rétegű nyílászárók
- Rehau bejárati ajtók
- Hansgrohe csaptelepek
- Legrand valena life szerelvények
- 10 ezer Ft/m2-ig (bruttó) választható burkolatok
- 100 ezer Ft-ig (bruttó) választható beltéri ajtók
- térkövezett udvar autóbeállókkal
- Hörmann kapus garázsok
Bővebb információ a műszaki tartalomban!
A remek referenciákkal rendelkező kivitelező 2026. decemberi kulcsrakész befejezést vállal, az alapozás már elkezdődött.
A földszinti lakás saját kertkapcsolattal rendelkezik, az első emeleti lakások mind erkélyesek, ahogy a tetőtériek is. Igény szerint a lakásokhoz garázs vagy udvari autóbeálló vásárolható.
KULCSRAKÉSZ négyzetméter árak:
-Földszint 1.425.000.Ft/m2
az ár tartalmazza az alaprajzon megjelölt kizárólagos kerthasználatot.
-1. emelet 1.375.000.Ft/m2
a teraszok területe 50%-kal növeli meg a lakások alapterületét.
-Tetőtér 1.275.000.Ft/m2
a teraszok területe 50%-kal növeli meg a lakások alapterületét.
A minimális 190 cm belmagasság számít a hasznos alapterületnek a tetőtérben.
Az árak bruttó árak és tartalmazzák az 5% ÁFA-t.
Az ingatlan kizárólagos értékesítőjeként várom megkeresésüket a részletekkel kapcsolatban!