Eladó Lakás
Hirdetéskód: 9225629
Ingatlan Cafe Kft
Felújításhoz személyi kölcsönt keres? Kalkuláljon itt! →50.00 m2
ALAPTERÜLET2
SZOBASZÁMTégla
ÉPÍTÉSEgyéb fűtés
FŰTÉS- CSOK igénybe vehető nem
- Belső szintek 2
- Tetőtér beépíthető nem
- Kilátás Kertre néző
- Tájolás Északkelet
- Ingatlan komfort Összkomfortos
- Parkolási lehetőség Udvari beálló
- Építés éve 2026
- Fűtés Egyéb fűtés
- Építőanyag Tégla
- Erkély, terasz Erkély
- Klíma nem
- Szigetelt nem
A+++
A++
A+
A
B
C
D
E
F
G
H
I
Az ingatlan leírása
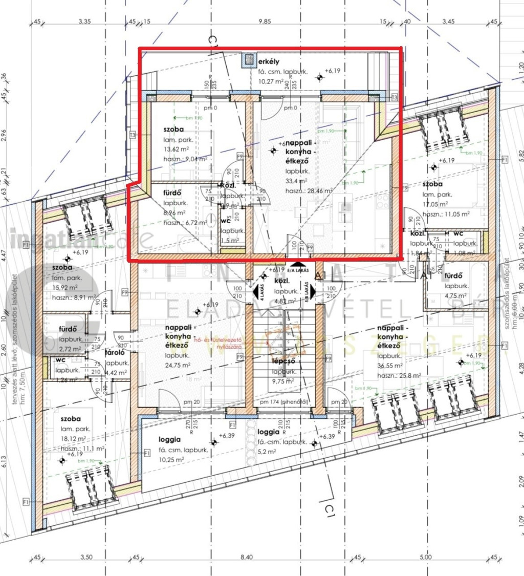
Szeged-Alsóvároson ÚJÉPÍTÉSŰ, kulcsrakész, 1. emeleti, 50,5 m2-es, nappali + 2 szobás lakás nagy terasszal, most épülő, PRÉMIUM minőségű társasházban 2027. májusi átadással eladó!
Alsóvároson ÚJÉPÍTÉSŰ, kulcsrakész lakások most épülő, PRÉMIUM minőségű társasházban 2027. II. negyedévi átadással eladók!
Az 1. emeleti lakás
- 50,54 m2-es lakóterületű
- amerikai konyhás nappali + 2 szobás
- 8,3 m2-es erkéllyel rendelkezik
- remek elosztású
- Az amerikai konyhás nappalin kívül egy 9,0 és egy 11,4 m2-es hálószobával tökéletes választás
Szeged-alsóváros egyetemekhez közeli, mégis csendes, átmenő forgalomtól mentes kis utcája a Homok utca. Itt épül ez a kiváló paraméterekkel rendelkező, mindössze nyolclakásos, kétemeletes, zárt, parkosított udvarral rendelkező társasház.
A MODERN vonalú, masszív, időtálló épület a mai korszerű elvárások szerint épül, néhány paraméter:
- Wienerberger Porotherm 30 X-therm Rapid Dryfix síkra csiszolt tégla és Porotherm 30 AKU Z tégla hang-gátló válaszfalak
- 15 cm-es hőszigetelés
- STIEBEL ELTRON hőszivattyú padlófűtés
- AERECO V2A szellőztető rendszer
- Rehau synego színezett, 3 rétegű nyílászárók
- Rehau bejárati ajtók
- Hansgrohe csaptelepek
- Legrand valena life szerelvények
- 10 ezer Ft/m2-ig (bruttó) választható burkolatok
- 100 ezer Ft-ig (bruttó) választható beltéri ajtók
- térkövezett udvar autóbeállókkal
- Hörmann kapus garázsok
Bővebb információ a műszaki tartalomban!
A remek referenciákkal rendelkező kivitelező 2027. II. negyedévi kulcsrakész befejezést vállal, az alapozás már elkezdődött.
A földszinti lakás saját kertkapcsolattal rendelkezik, az első emeleti lakások mind erkélyesek, ahogy a tetőtériek is. Igény szerint a lakásokhoz garázs vagy udvari autóbeálló vásárolható.
KULCSRAKÉSZ négyzetméter árak:
-Földszint 1.425.000.Ft/m2
az ár tartalmazza az alaprajzon megjelölt kizárólagos kerthasználatot.
-1. emelet 1.375.000.Ft/m2
a teraszok területe 50%-kal növeli meg a lakások alapterületét.
-Tetőtér 1.275.000.Ft/m2
a teraszok területe 50%-kal növeli meg a lakások alapterületét.
A minimális 190 cm belmagasság számít a hasznos alapterületnek a tetőtérben.
Az árak bruttó árak és tartalmazzák az 5% ÁFA-t.
Az ingatlan kizárólagos értékesítőjeként várom megkeresésüket a részletekkel kapcsolatban!
Alsóvároson ÚJÉPÍTÉSŰ, kulcsrakész lakások most épülő, PRÉMIUM minőségű társasházban 2027. II. negyedévi átadással eladók!
Az 1. emeleti lakás
- 50,54 m2-es lakóterületű
- amerikai konyhás nappali + 2 szobás
- 8,3 m2-es erkéllyel rendelkezik
- remek elosztású
- Az amerikai konyhás nappalin kívül egy 9,0 és egy 11,4 m2-es hálószobával tökéletes választás
Szeged-alsóváros egyetemekhez közeli, mégis csendes, átmenő forgalomtól mentes kis utcája a Homok utca. Itt épül ez a kiváló paraméterekkel rendelkező, mindössze nyolclakásos, kétemeletes, zárt, parkosított udvarral rendelkező társasház.
A MODERN vonalú, masszív, időtálló épület a mai korszerű elvárások szerint épül, néhány paraméter:
- Wienerberger Porotherm 30 X-therm Rapid Dryfix síkra csiszolt tégla és Porotherm 30 AKU Z tégla hang-gátló válaszfalak
- 15 cm-es hőszigetelés
- STIEBEL ELTRON hőszivattyú padlófűtés
- AERECO V2A szellőztető rendszer
- Rehau synego színezett, 3 rétegű nyílászárók
- Rehau bejárati ajtók
- Hansgrohe csaptelepek
- Legrand valena life szerelvények
- 10 ezer Ft/m2-ig (bruttó) választható burkolatok
- 100 ezer Ft-ig (bruttó) választható beltéri ajtók
- térkövezett udvar autóbeállókkal
- Hörmann kapus garázsok
Bővebb információ a műszaki tartalomban!
A remek referenciákkal rendelkező kivitelező 2027. II. negyedévi kulcsrakész befejezést vállal, az alapozás már elkezdődött.
A földszinti lakás saját kertkapcsolattal rendelkezik, az első emeleti lakások mind erkélyesek, ahogy a tetőtériek is. Igény szerint a lakásokhoz garázs vagy udvari autóbeálló vásárolható.
KULCSRAKÉSZ négyzetméter árak:
-Földszint 1.425.000.Ft/m2
az ár tartalmazza az alaprajzon megjelölt kizárólagos kerthasználatot.
-1. emelet 1.375.000.Ft/m2
a teraszok területe 50%-kal növeli meg a lakások alapterületét.
-Tetőtér 1.275.000.Ft/m2
a teraszok területe 50%-kal növeli meg a lakások alapterületét.
A minimális 190 cm belmagasság számít a hasznos alapterületnek a tetőtérben.
Az árak bruttó árak és tartalmazzák az 5% ÁFA-t.
Az ingatlan kizárólagos értékesítőjeként várom megkeresésüket a részletekkel kapcsolatban!