Eladó Lakás
Hirdetéskód: 9225628
Ingatlan Cafe Kft
Felújításhoz személyi kölcsönt keres? Kalkuláljon itt! →
Ez a hirdetés megfelelhet a FIX 3%-os programnak.
Tudj meg többet a részletekről itt.
65.00 m2
ALAPTERÜLET3
SZOBASZÁMTégla
ÉPÍTÉSEgyéb fűtés
FŰTÉS- CSOK igénybe vehető igen
- Belső szintek 2
- Tetőtér beépíthető nem
- Kilátás Kertre néző
- Tájolás Északkelet
- Ingatlan komfort Összkomfortos
- Parkolási lehetőség Udvari beálló
- Építés éve 2026
- Fűtés Egyéb fűtés
- Építőanyag Tégla
- Erkély, terasz Terasz
- Klíma nem
- Szigetelt nem
A+++
A++
A+
A
B
C
D
E
F
G
H
I
Az ingatlan leírása
CSOK-ra, 3 %-os Otthon Start hitelre alkalmas!
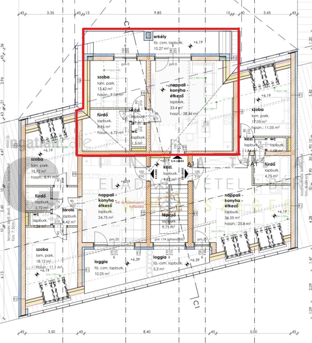
Szeged-Alsóvároson ÚJÉPÍTÉSŰ, kulcsrakész, földszinti, 3 szobás, 65 m2-es lakás kertkapcsolattal, most épülő, PRÉMIUM minőségű társasházban 2027. II. negyedévi befejezéssel eladó!
Alsóvároson ÚJÉPÍTÉSŰ, kulcsrakész lakások most épülő, PRÉMIUM minőségű társasházban 2027. II. negyedévi átadással eladók!
A földszinti lakás
- 64,94 m2-es
- amerikai konyhás nappali + 2 szobás
- 35 m2-es saját KERTKAPCSOLATTAL rendelkezik
- AKADÁLYMENTES
- remek elosztású
- teljes értékű szobákkal tökéletes választás
Szeged-alsóváros egyetemekhez közeli, mégis csendes, átmenő forgalomtól mentes kis utcája a Homok utca. Itt épül ez a kiváló paraméterekkel rendelkező, mindössze nyolclakásos, kétemeletes, zárt, parkosított udvarral rendelkező társasház.
A MODERN vonalú, masszív, időtálló épület a mai korszerű elvárások szerint épül, néhány paraméter:
- Wienerberger Porotherm 30 X-therm Rapid Dryfix síkra csiszolt tégla és Porotherm 30 AKU Z tégla hang-gátló válaszfalak
- 15 cm-es hőszigetelés
- STIEBEL ELTRON hőszivattyú padlófűtés
- AERECO V2A szellőztető rendszer
- Rehau synego színezett, 3 rétegű nyílászárók
- Rehau bejárati ajtók
- Hansgrohe csaptelepek
- Legrand valena life szerelvények
- 10 ezer Ft/m2-ig (bruttó) választható burkolatok
- 100 ezer Ft-ig (bruttó) választható beltéri ajtók
- térkövezett udvar autóbeállókkal
- Hörmann kapus garázs
Bővebb információ a műszaki tartalomban!
A remek referenciákkal rendelkező kivitelező 2027. II. negyedévi kulcsrakész befejezést vállal, az alapozás már elkezdődött.
A földszinti lakás saját kertkapcsolattal rendelkezik, az első emeleti lakások mind erkélyesek, ahogy a tetőtériek is. Igény szerint a lakásokhoz garázs vagy udvari autóbeálló vásárolható 3 millió forintért.
KULCSRAKÉSZ négyzetméter árak:
-Földszint 1.425.000.Ft/m2
az ár tartalmazza az alaprajzon megjelölt kizárólagos kerthasználatot.
-1. emelet 1.375.000.Ft/m2
a teraszok területe 50%-kal növeli meg a lakások alapterületét.
-Tetőtér 1.275.000.Ft/m2
a teraszok területe 50%-kal növeli meg a lakások alapterületét.
A minimális 190 cm belmagasság számít a hasznos alapterületnek a tetőtérben.
Az árak bruttó árak és tartalmazzák az 5% ÁFA-t.
Az ingatlan kizárólagos értékesítőjeként várom megkeresésüket a részletekkel kapcsolatban!
Szeged-Alsóvároson ÚJÉPÍTÉSŰ, kulcsrakész, földszinti, 3 szobás, 65 m2-es lakás kertkapcsolattal, most épülő, PRÉMIUM minőségű társasházban 2027. II. negyedévi befejezéssel eladó!
Alsóvároson ÚJÉPÍTÉSŰ, kulcsrakész lakások most épülő, PRÉMIUM minőségű társasházban 2027. II. negyedévi átadással eladók!
A földszinti lakás
- 64,94 m2-es
- amerikai konyhás nappali + 2 szobás
- 35 m2-es saját KERTKAPCSOLATTAL rendelkezik
- AKADÁLYMENTES
- remek elosztású
- teljes értékű szobákkal tökéletes választás
Szeged-alsóváros egyetemekhez közeli, mégis csendes, átmenő forgalomtól mentes kis utcája a Homok utca. Itt épül ez a kiváló paraméterekkel rendelkező, mindössze nyolclakásos, kétemeletes, zárt, parkosított udvarral rendelkező társasház.
A MODERN vonalú, masszív, időtálló épület a mai korszerű elvárások szerint épül, néhány paraméter:
- Wienerberger Porotherm 30 X-therm Rapid Dryfix síkra csiszolt tégla és Porotherm 30 AKU Z tégla hang-gátló válaszfalak
- 15 cm-es hőszigetelés
- STIEBEL ELTRON hőszivattyú padlófűtés
- AERECO V2A szellőztető rendszer
- Rehau synego színezett, 3 rétegű nyílászárók
- Rehau bejárati ajtók
- Hansgrohe csaptelepek
- Legrand valena life szerelvények
- 10 ezer Ft/m2-ig (bruttó) választható burkolatok
- 100 ezer Ft-ig (bruttó) választható beltéri ajtók
- térkövezett udvar autóbeállókkal
- Hörmann kapus garázs
Bővebb információ a műszaki tartalomban!
A remek referenciákkal rendelkező kivitelező 2027. II. negyedévi kulcsrakész befejezést vállal, az alapozás már elkezdődött.
A földszinti lakás saját kertkapcsolattal rendelkezik, az első emeleti lakások mind erkélyesek, ahogy a tetőtériek is. Igény szerint a lakásokhoz garázs vagy udvari autóbeálló vásárolható 3 millió forintért.
KULCSRAKÉSZ négyzetméter árak:
-Földszint 1.425.000.Ft/m2
az ár tartalmazza az alaprajzon megjelölt kizárólagos kerthasználatot.
-1. emelet 1.375.000.Ft/m2
a teraszok területe 50%-kal növeli meg a lakások alapterületét.
-Tetőtér 1.275.000.Ft/m2
a teraszok területe 50%-kal növeli meg a lakások alapterületét.
A minimális 190 cm belmagasság számít a hasznos alapterületnek a tetőtérben.
Az árak bruttó árak és tartalmazzák az 5% ÁFA-t.
Az ingatlan kizárólagos értékesítőjeként várom megkeresésüket a részletekkel kapcsolatban!