Eladó Lakás
Hirdetéskód: 9301320
eXtra Ingatlan iroda.
Felújításhoz személyi kölcsönt keres? Kalkuláljon itt! →
Ez a hirdetés megfelelhet a FIX 3%-os programnak.
Tudj meg többet a részletekről itt.
45.00 m2
ALAPTERÜLET2
SZOBASZÁMnincs megadva
ÉPÍTÉSnincs megadva
FŰTÉS- CSOK igénybe vehető nem
- Belső szintek 4
- Tetőtér beépíthető nem
- Építés éve 2027
- Klíma nem
- Szigetelt nem
A+++
A++
A+
A
B
C
D
E
F
G
H
I
Az ingatlan leírása
Kis lakás…
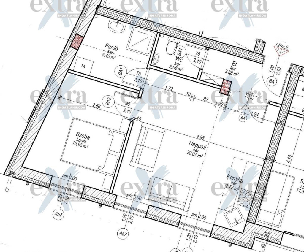
Szeged- Kiskundorozsmán, most épülő, liftes társasház első emeletén kínálok megvételre egy 44,81m2 alapterületű, nappali + 1 szobás, kulcsrakész lakást, mely élhető elrendezésű, így funkcionalitás szempontjából átgondolt, egyszerűen berendezhető teret biztosít.
Az ingatlan Kiskundorozsma szívében épül, garázsvásárlási lehetőséggel, szakképzett építőipari és beszállítói csapattal, amely a kivitelezés minőségét hivatott garantálni.
Főbb jellemzői:
- a lakás alapterület: 44,81m2
- világos, amerikai konyhás nappali (22,79m2)
- szoba (10,95m2)
- fürdő (5,43m2)
- külön wc
- tágas előtér (3,58m2)
- hőszivattyús fűtésrendszer
- padlófűtés
- befújásos fan coil hűtés
- kiépített elektromos hálózat (kapcsolókkal és konnektorokkal)
- prémium minőségű homlokzati nyílászárók (3 rétegű hő- és hangszigetelt műanyag nyílászárók)
- redőny előkészítés
- festett falak (2 réteg festés fehér színben)
- belső helyiségek hideg- és melegburkolatai igény szerint választhatóak (szerződésben meghatározott mennyiségben és árban)
- prémium minőségű belső nyílászárók
- kaputelefon
- riasztó rendszer alap csövezve
- 1. emeleti elhelyezkedés
- lift
- kulcsrakész műszaki tartalom
- új építésű társasház
- prémium anyagok
- exkluzív kivitelezés
- jó elrendezés, élhető terek
- kiváló elhelyezkedés
- alacsony fenntartás, kiváló energetikai kiépítése miatt
- díjmentes parkolás az utcán
- tágas lépcsőház
- jó tömegközlekedés
- értékálló befektetés
- kiemelkedő bérbe adhatóság
- mélygarázs vásárlási lehetőség
Várható kulcsrakész átadás: 2027 harmadik negyedév
Ez a lakás bármilyen élethelyzetben jó választás lehet: praktikus mérete és áttekinthető elosztása miatt alkalmas egyedülállóknak, pároknak vagy azoknak, akik befektetési célból keresnek kisebb, kulcsrakész ingatlant.
Minden további kérdéseivel vagy időpont egyeztetéssel kapcsolatban keressen bátran!
További kínálatunkat keresse az az eXtraIngatlan iroda hivatalos weboldalán.
Szeged- Kiskundorozsmán, most épülő, liftes társasház első emeletén kínálok megvételre egy 44,81m2 alapterületű, nappali + 1 szobás, kulcsrakész lakást, mely élhető elrendezésű, így funkcionalitás szempontjából átgondolt, egyszerűen berendezhető teret biztosít.
Az ingatlan Kiskundorozsma szívében épül, garázsvásárlási lehetőséggel, szakképzett építőipari és beszállítói csapattal, amely a kivitelezés minőségét hivatott garantálni.
Főbb jellemzői:
- a lakás alapterület: 44,81m2
- világos, amerikai konyhás nappali (22,79m2)
- szoba (10,95m2)
- fürdő (5,43m2)
- külön wc
- tágas előtér (3,58m2)
- hőszivattyús fűtésrendszer
- padlófűtés
- befújásos fan coil hűtés
- kiépített elektromos hálózat (kapcsolókkal és konnektorokkal)
- prémium minőségű homlokzati nyílászárók (3 rétegű hő- és hangszigetelt műanyag nyílászárók)
- redőny előkészítés
- festett falak (2 réteg festés fehér színben)
- belső helyiségek hideg- és melegburkolatai igény szerint választhatóak (szerződésben meghatározott mennyiségben és árban)
- prémium minőségű belső nyílászárók
- kaputelefon
- riasztó rendszer alap csövezve
- 1. emeleti elhelyezkedés
- lift
- kulcsrakész műszaki tartalom
- új építésű társasház
- prémium anyagok
- exkluzív kivitelezés
- jó elrendezés, élhető terek
- kiváló elhelyezkedés
- alacsony fenntartás, kiváló energetikai kiépítése miatt
- díjmentes parkolás az utcán
- tágas lépcsőház
- jó tömegközlekedés
- értékálló befektetés
- kiemelkedő bérbe adhatóság
- mélygarázs vásárlási lehetőség
Várható kulcsrakész átadás: 2027 harmadik negyedév
Ez a lakás bármilyen élethelyzetben jó választás lehet: praktikus mérete és áttekinthető elosztása miatt alkalmas egyedülállóknak, pároknak vagy azoknak, akik befektetési célból keresnek kisebb, kulcsrakész ingatlant.
Minden további kérdéseivel vagy időpont egyeztetéssel kapcsolatban keressen bátran!
További kínálatunkat keresse az az eXtraIngatlan iroda hivatalos weboldalán.