Eladó Lakás
Hirdetéskód: 9327737

OTP Ingatlanpont Csongrád

Felújításhoz személyi kölcsönt keres? Kalkuláljon itt! →
82.00 m2
ALAPTERÜLET
3
SZOBASZÁM
nincs megadva
ÉPÍTÉS
Egyéb fűtés
FŰTÉS
  • CSOK igénybe vehető nem
  • Tetőtér beépíthető nem
  • Építés éve 2023
  • Fűtés Egyéb fűtés
  • Klíma nem
  • Szigetelt nem
Energetikai besorolás: Nincs meghatározva
A+++
A++
A+
A
B
C
D
E
F
G
H
I

Az MBH Bank személyi kölcsön ajánlata

Fizetett hirdetés
1 millió Ft
6 évre
20 585 Ft/hó
THM: 14.5%
Részletek →
2 millió Ft
6 évre
41 169 Ft/hó
THM: 14.5%
Részletek →
3 millió Ft
6 évre
61 754 Ft/hó
THM: 14.5%
Részletek →

A tájékoztatás nem teljes körű és nem minősül ajánlattételnek.

Az ingatlan leírása

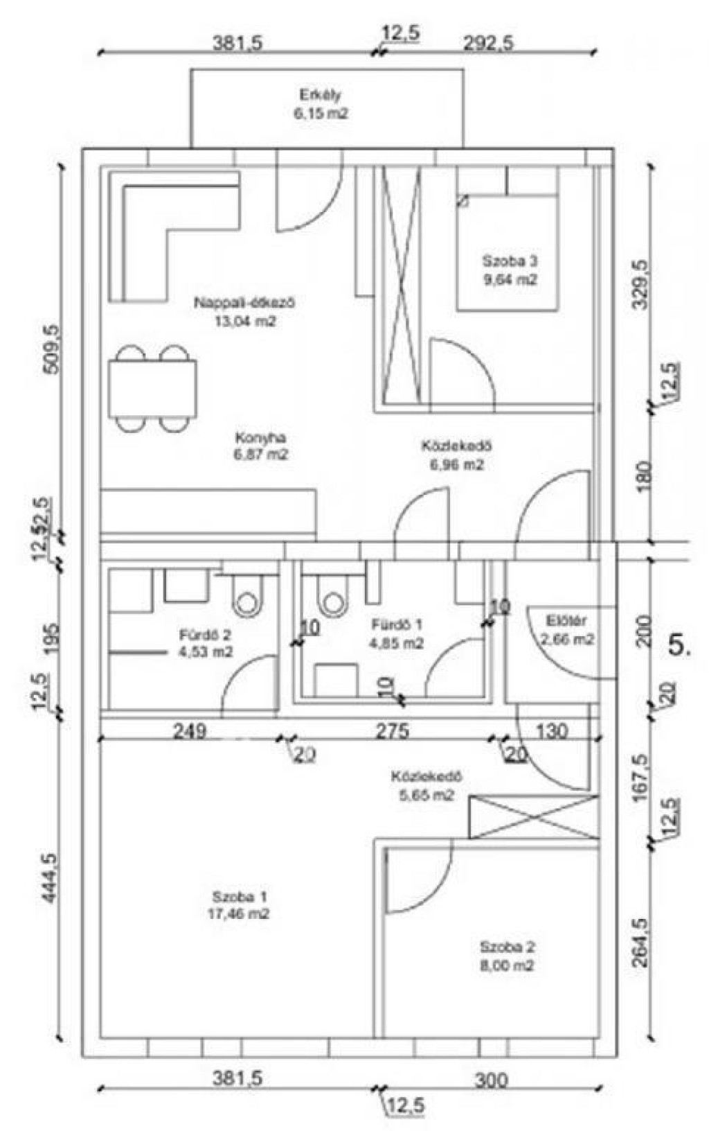
KÉT GYÖNGYSZEM EGY KAGYLÓBAN! Szeged, Felsőváros, 82 nm-es, (egy 2 szobás és egy 1+1 szobás, külön bejárattal rendelkező), kifogástalan állapotú, 2. emeleti, téglalakás, 6 m2-es erkéllyel és udvari autóbeállóval eladó. A lakásban két különálló amerikaikonyhás nappali + hálószobás, külön almérőkkel ellátott, kiadásra tökéletes paraméterekkel rendelkező lakás található. A szobák laminált parketta-, a többi helyiség járólap burkolatot kapott. Az otthon melegét hőszivattyús fűtés biztosítja. A LAKÁSOK HAVI REZSIJE A KÖZÖS KÖLTSÉGGEL EGYÜTT 30.000 FT!!! A lakáshoz opcionálisan garázs is vásárolható. Az ingatlan rendkívűl csendes, nyugodt környezetben helyezkedik el. Tömegközlekedési lehetőség 2 perc sétára található. Az ingatlan megvásárlásához kedvező hitel is igényelhető, melynek intézéséhez szakszerű segítség áll a leendő vásárló rendelkezésére.

Az energetikai tanúsítvány készítése folyamatban van, amint rendelkezésre áll, úgy azzal a hirdetés frissítésre kerül.

Térkép

Ingatlan adásvétel ügyvédi díja
476 550 Ft
a hirdetésben szereplő ár alapján
  • A vételár 0,45%-a
  • Szerződéscsomag teljeskörű képviselettel
  • Ingyenes tulajdoni lap ellenőrzés
  • Az ÁFA-t már tartalmazza
Érdekel az ajánlat →
A tájékoztatás nem teljes körű és nem minősül ajánlattételnek. Minimum díj: 150 000 Ft, maximum díj: 600 000 Ft. A díj kizárólag lakóingatlan adásvételére vonatkozik.

A hirdető elérhetősége

OTP Ingatlanpont Csongrád

Berényiné Annus Krisztina
+36 30 487