Eladó Lakás
Hirdetéskód: 9247097

OTP Ingatlanpont Csongrád

82.00 m2
ALAPTERÜLET
3
SZOBASZÁM
nincs megadva
ÉPÍTÉS
nincs megadva
FŰTÉS
  • CSOK igénybe vehető nem
  • Tetőtér beépíthető nem
  • Építés éve 2023
  • Klíma nem
  • Szigetelt nem
Energetikai besorolás: Nincs meghatározva
A+++
A++
A+
A
B
C
D
E
F
G
H
I

Az ingatlan leírása

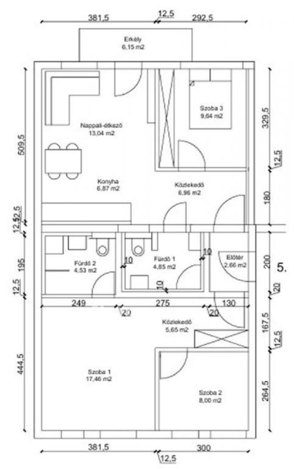
KÉT GYÖNGYSZEM EGY KAGYLÓBAN! Szeged, Felsőváros, 82 nm-es, (egy 2 szobás és egy 1+1 szobás, külön bejárattal rendelkező), kifogástalan állapotú, 2. emeleti, téglalakás, 6 m2-es erkéllyel és udvari autóbeállóval eladó. A lakásban két különálló amerikaikonyhás nappali + hálószobás, külön almérőkkel ellátott, kiadásra tökéletes paraméterekkel rendelkező lakás található. A szobák laminált parketta-, a többi helyiség járólap burkolatot kapott. Az otthon melegét hőszivattyús fűtés biztosítja. A LAKÁSOK HAVI REZSIJE A KÖZÖS KÖLTSÉGGEL EGYÜTT 30.000 FT!!! A lakáshoz opcionálisan garázs is vásárolható. Az ingatlan rendkívűl csendes, nyugodt környezetben helyezkedik el. Tömegközlekedési lehetőség 2 perc sétára található. Az ingatlan megvásárlásához kedvező hitel is igényelhető, melynek intézéséhez szakszerű segítség áll a leendő vásárló rendelkezésére.

Térkép

A hirdető elérhetősége

OTP Ingatlanpont Csongrád

Fekete Vivien
+36 30 401