Eladó Lakás
Hirdetéskód: 9094851
ArtHome Ingatlan
Felújításhoz személyi kölcsönt keres? Kalkuláljon itt! →130.00 m2
ALAPTERÜLET4
SZOBASZÁMTégla
ÉPÍTÉSGáz (cirkó)
FŰTÉS- CSOK igénybe vehető nem
- Belső szintek 1
- Tetőtér beépíthető nem
- Kilátás Udvari
- Tájolás Nyugat
- Ingatlan komfort Összkomfortos
- Parkolási lehetőség Utcán, közterületen
- Építés éve 1875
- Fűtés Gáz (cirkó)
- Építőanyag Tégla
- Klíma nem
- Szigetelt nem
A+++
A++
A+
A
B
C
D
E
F
G
H
I
Az ingatlan leírása
Az ingatlan egy különleges múltú, 1875 körül épült ház része, mely egykor a „Fehér Lóhoz” nevű vendéglőként működött. A közelben elhelyezkedő vasútállomásról induló vonatok Temesvár felé közlekedtek, így az épület kiemelkedő szerepet töltött be a település életében. Ma egy nyugodt, csendes utcában, kiváló megközelíthetőséggel kínál otthont egy 4 lakásos társasházban.
Az ingatlan leírása
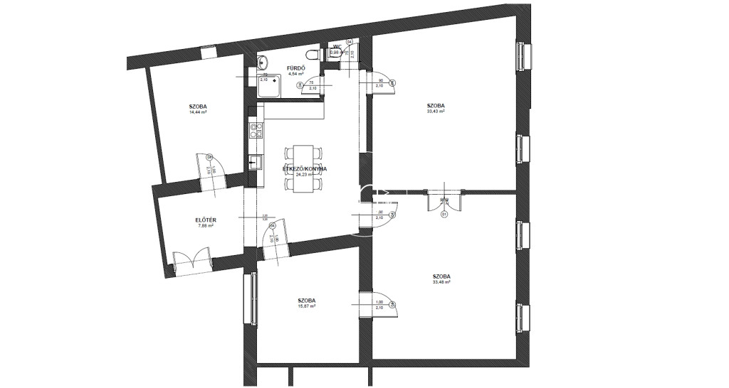
Az eladásra kínált lakás 130 négyzetméter alapterületű, amelyen 4 külön bejáratú szoba és egy tágas étkező található. A lakás rendkívül világos, nagy belmagassággal rendelkezik (3,8 m), amely tovább növeli a tágasság érzetét.
Felújítás és műszaki állapot
Az ingatlan számos korszerűsítésen átesett a közelmúltban:
- vizesblokkok, új konyha kialakítása
- nyílászárókat felújították, rolóval és szúnyoghálóval ellátva
- fűtése modern, gáz cirkó
- új villanyvezetékek
- szigetelt és felújított tetőszerkezet
- szellőzőrendszer
Költségek és közművek
- Közös költség nincs, célbefizetés működik
- Fűtési költség: átlagosan 30.000 Ft/hó
- Villanyszámla: kb. 7.000 Ft/hó
- Víz: 1 főmérő és 2 almérő van felszerelve
Az ingatlan alatt egy nagy méretű pince található, amely többféle funkcióra is hasznosítható (tárolás, műhely, hobbitér stb.)
A lakáshoz egy kisebb kertterület is tartozik, amely lehetőséget ad pihenésre, növénytermesztésre vagy egyéni igény szerinti kialakításra
Ajánlás
Ez az ingatlan ideális választás lehet tágas otthonra vágyó családoknak, egyedi építészeti értéket keresőknek, vagy akár olyan befektetőknek, akik egy patinás, mégis korszerű lakást keresnek, amely folyamatosan kiadható akár 4 diák részére is (jelenleg is ki van adva). A történelmi hangulat, a praktikus elrendezés és a műszaki állapot kiváló alapot nyújt egy hosszú távon élhető otthon kialakításához. Az egyetemek, a Belváros és a Tisza-part közelsége igen vonzóvá teszi ezt az egyedi hangulatú ingatlant.
Megtekintésért keressen bizalommal!
Az ingatlan leírása
Az eladásra kínált lakás 130 négyzetméter alapterületű, amelyen 4 külön bejáratú szoba és egy tágas étkező található. A lakás rendkívül világos, nagy belmagassággal rendelkezik (3,8 m), amely tovább növeli a tágasság érzetét.
Felújítás és műszaki állapot
Az ingatlan számos korszerűsítésen átesett a közelmúltban:
- vizesblokkok, új konyha kialakítása
- nyílászárókat felújították, rolóval és szúnyoghálóval ellátva
- fűtése modern, gáz cirkó
- új villanyvezetékek
- szigetelt és felújított tetőszerkezet
- szellőzőrendszer
Költségek és közművek
- Közös költség nincs, célbefizetés működik
- Fűtési költség: átlagosan 30.000 Ft/hó
- Villanyszámla: kb. 7.000 Ft/hó
- Víz: 1 főmérő és 2 almérő van felszerelve
Az ingatlan alatt egy nagy méretű pince található, amely többféle funkcióra is hasznosítható (tárolás, műhely, hobbitér stb.)
A lakáshoz egy kisebb kertterület is tartozik, amely lehetőséget ad pihenésre, növénytermesztésre vagy egyéni igény szerinti kialakításra
Ajánlás
Ez az ingatlan ideális választás lehet tágas otthonra vágyó családoknak, egyedi építészeti értéket keresőknek, vagy akár olyan befektetőknek, akik egy patinás, mégis korszerű lakást keresnek, amely folyamatosan kiadható akár 4 diák részére is (jelenleg is ki van adva). A történelmi hangulat, a praktikus elrendezés és a műszaki állapot kiváló alapot nyújt egy hosszú távon élhető otthon kialakításához. Az egyetemek, a Belváros és a Tisza-part közelsége igen vonzóvá teszi ezt az egyedi hangulatú ingatlant.
Megtekintésért keressen bizalommal!