Eladó Lakás
Hirdetéskód: 9234440

Ingatlan Cafe Kft

FIX 3% Program

Ez a hirdetés megfelelhet a FIX 3%-os programnak.
Tudj meg többet a részletekről itt.

55 m2
ALAPTERÜLET
2
SZOBASZÁM
Panel
ÉPÍTÉS
Távfűtés
FŰTÉS
  • CSOK igénybe vehető nem
  • Belső szintek 5
  • Tetőtér beépíthető nem
  • Kilátás Panorámás
  • Ingatlan komfort Összkomfortos
  • Parkolási lehetőség Utcán, közterületen
  • Építés éve 1980
  • Fűtés Távfűtés
  • Építőanyag Panel
  • Erkély, terasz Erkély
  • Klíma nem
  • Szigetelt nem
Energetikai besorolás: Nincs meghatározva
A+++
A++
A+
A
B
C
D
E
F
G
H
I

Az ingatlan leírása

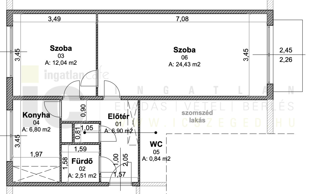
Szeged kedvelt városrészében, a Bimbó utcában eladó egy 55m2-es, két szoba-hallos, erkélyes, 3.emeleti normál állapotú panellakás.
- 3. emelet
- 2szoba+hall
- klimatizált
- normál állapot
- teljes berendezéssel, albérleteztetésre berendezve
- azonnal költözhető
- új, műanyag nyílászárók

Térkép

A hirdető elérhetősége

Ingatlan Cafe Kft

Rea Zoltán
+36 70 967