Eladó Lakás
Hirdetéskód: 9301331
eXtra Ingatlan iroda.
Felújításhoz személyi kölcsönt keres? Kalkuláljon itt! →90.00 m2
ALAPTERÜLET4
SZOBASZÁMnincs megadva
ÉPÍTÉSnincs megadva
FŰTÉS- CSOK igénybe vehető nem
- Belső szintek 4
- Tetőtér beépíthető nem
- Építés éve 2025
- Klíma nem
- Szigetelt nem
A+++
A++
A+
A
B
C
D
E
F
G
H
I
Az ingatlan leírása
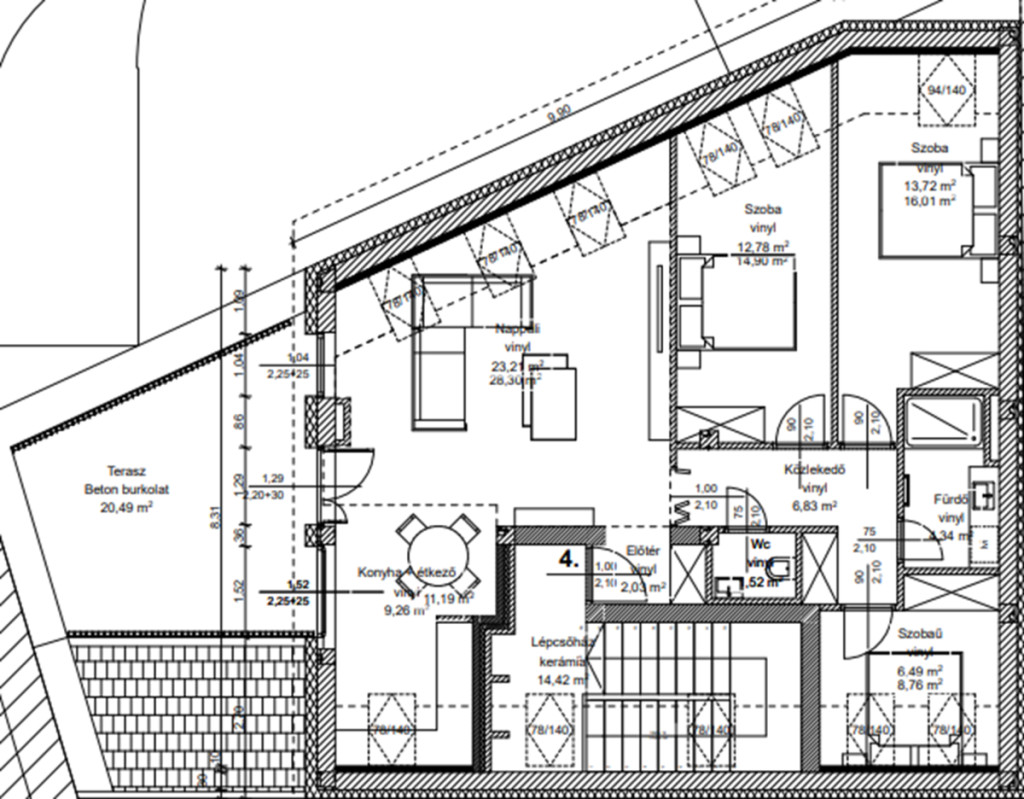
Szegeden a TIK közelében, nagyteraszos, nappali + 3 hálós Téglalakás Eladó!
A téglalakás főbb jellemzői:
- 94/80 m2 lakótér
- nappali + 3 hálószoba
- a nappali, étkező és konyha 3 méter feletti kialakítású lesz
- 3. emeleti (Tetőtér)
- 20 m2 tetőterasz
- hőszivattyú, padlófűtés, mennyezetfűtés
- 3 rétegű műanyag nyílászárók
- 2026 év végi átadás
- kulcsrakész állapot + konyhabútort kell beépíteni
- 15.5 m2-es garázs 15 mFt vagy
- autóbeálló 5 mFt-ért vásárolható hozzá
- megbízható, leinformálható Cég az építtető
Kulcsrakész ár: 126 mFt
KIEMELKEDŐ lehetőség Szeged TIK közelében: NAGYTERASZOS, nappali + 3 hálós TÉGLALAKÁS ELADÓ.
Rövid, lényegre törő ismertető:
Ez a 3. emeleti (tetőtéri) lakás 94/80 m2 lakótérrel rendelkezik, és 20 m2-es tetőterasszal bővíti a használható teret. A nappali, étkező és konyha belmagassága 3 méter FELETTI kialakítású lesz, így KÜLÖNLEGES térérzet várható. Az építtető MEGBÍZHATÓ, leinformálható cég.
Műszaki jellemzők:
- nappali + 3 hálószoba
- 3. emeleti (tetőtér)
- 20 m2 tetőterasz
- hőszivattyú
- padlófűtés és mennyezetfűtés
- 3 rétegű műanyag nyílászárók
- átadás: 2026 év vége
- KULCSRAKÉSZ állapot (konyhabútort a vevőnek kell beépíteni)
Árazás és választási lehetőségek:
- Kulcsrakész ár: 126 millió Ft
- 15,5 m2 garázs külön megvásárolható: 15 millió Ft
- autóbeálló külön: 5 millió Ft
Célcsoport: MINDENKI, aki TISZTA, jól dokumentált kivitelezésű, tetőtéri lakást keres Szeged közelében, a TIK-hez közel. Érdeklődni, megtekintés és további információ: Véber László, .
Várom érdeklődését: Véber László
További kínálatunkat keresse az az eXtraIngatlan iroda hivatalos weboldalán.
A téglalakás főbb jellemzői:
- 94/80 m2 lakótér
- nappali + 3 hálószoba
- a nappali, étkező és konyha 3 méter feletti kialakítású lesz
- 3. emeleti (Tetőtér)
- 20 m2 tetőterasz
- hőszivattyú, padlófűtés, mennyezetfűtés
- 3 rétegű műanyag nyílászárók
- 2026 év végi átadás
- kulcsrakész állapot + konyhabútort kell beépíteni
- 15.5 m2-es garázs 15 mFt vagy
- autóbeálló 5 mFt-ért vásárolható hozzá
- megbízható, leinformálható Cég az építtető
Kulcsrakész ár: 126 mFt
KIEMELKEDŐ lehetőség Szeged TIK közelében: NAGYTERASZOS, nappali + 3 hálós TÉGLALAKÁS ELADÓ.
Rövid, lényegre törő ismertető:
Ez a 3. emeleti (tetőtéri) lakás 94/80 m2 lakótérrel rendelkezik, és 20 m2-es tetőterasszal bővíti a használható teret. A nappali, étkező és konyha belmagassága 3 méter FELETTI kialakítású lesz, így KÜLÖNLEGES térérzet várható. Az építtető MEGBÍZHATÓ, leinformálható cég.
Műszaki jellemzők:
- nappali + 3 hálószoba
- 3. emeleti (tetőtér)
- 20 m2 tetőterasz
- hőszivattyú
- padlófűtés és mennyezetfűtés
- 3 rétegű műanyag nyílászárók
- átadás: 2026 év vége
- KULCSRAKÉSZ állapot (konyhabútort a vevőnek kell beépíteni)
Árazás és választási lehetőségek:
- Kulcsrakész ár: 126 millió Ft
- 15,5 m2 garázs külön megvásárolható: 15 millió Ft
- autóbeálló külön: 5 millió Ft
Célcsoport: MINDENKI, aki TISZTA, jól dokumentált kivitelezésű, tetőtéri lakást keres Szeged közelében, a TIK-hez közel. Érdeklődni, megtekintés és további információ: Véber László, .
Várom érdeklődését: Véber László
További kínálatunkat keresse az az eXtraIngatlan iroda hivatalos weboldalán.