Eladó Lakás
Hirdetéskód: 9255430
Velence Tópart utca 47 - OTP Ingatlanpont Iroda
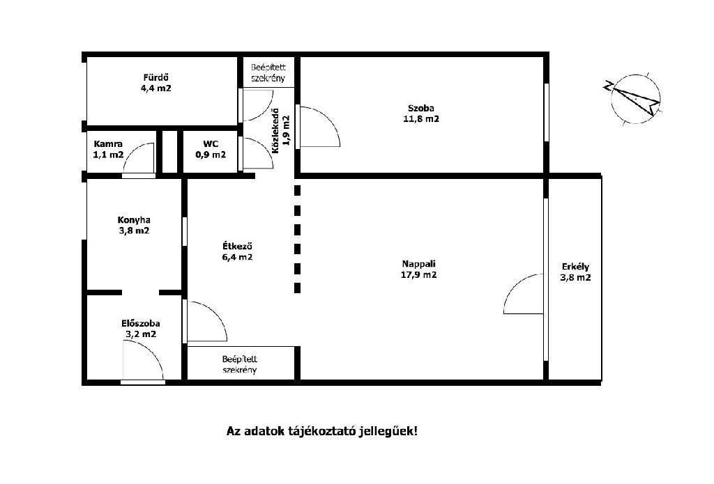
57.00 m2
ALAPTERÜLET2
SZOBASZÁMnincs megadva
ÉPÍTÉSnincs megadva
FŰTÉS- CSOK igénybe vehető nem
- Tetőtér beépíthető nem
- Építés éve 1989
- Klíma nem
- Szigetelt nem
A+++
A++
A+
A
B
C
D
E
F
G
H
I
Az ingatlan leírása
Eladó lakás Siófok belvárosában, csendes környezetben.
A Balaton déli partján, Siófok belvárosában, mégis nyugodt, csendes környezetben kínálunk eladásra egy 57 m2-es, kétszobás, erkélyes lakást. Az ingatlan egy társasház negyedik emeletén helyezkedik el, a Fő tértől mindössze 700 méterre.
A lakás fűtését gázkonvektorok és hűtő-fűtő klímaberendezések biztosítják, a melegvizet pedig wifi-vezérlésű okosbojler szolgáltatja. A külső nyílászárók műanyag szerkezetűek, redőnnyel és szúnyoghálóval felszereltek. A biztonságról több ponton záródó bejárati ajtó gondoskodik.
Az épület földszintjén közös kerékpártároló áll rendelkezésre, a parkolás a társasház előtti közterületen ingyenesen megoldott.
A környék infrastruktúrája kiváló: a közelben óvoda, játszótér és vásárlási lehetőségek találhatók. A vasútállomás és az autóbusz-állomás 600 méterre, a Balaton-part és a Nagystrand pedig mindössze 800 méterre érhető el.
Az ingatlan kiváló választás lehet állandó otthonnak, nyaralónak vagy befektetésnek egyaránt.
Bővebb információért, megtekintés egyeztetéséhez keressen bizalommal telefonon!
55500000 Ft
A Balaton déli partján, Siófok belvárosában, mégis nyugodt, csendes környezetben kínálunk eladásra egy 57 m2-es, kétszobás, erkélyes lakást. Az ingatlan egy társasház negyedik emeletén helyezkedik el, a Fő tértől mindössze 700 méterre.
A lakás fűtését gázkonvektorok és hűtő-fűtő klímaberendezések biztosítják, a melegvizet pedig wifi-vezérlésű okosbojler szolgáltatja. A külső nyílászárók műanyag szerkezetűek, redőnnyel és szúnyoghálóval felszereltek. A biztonságról több ponton záródó bejárati ajtó gondoskodik.
Az épület földszintjén közös kerékpártároló áll rendelkezésre, a parkolás a társasház előtti közterületen ingyenesen megoldott.
A környék infrastruktúrája kiváló: a közelben óvoda, játszótér és vásárlási lehetőségek találhatók. A vasútállomás és az autóbusz-állomás 600 méterre, a Balaton-part és a Nagystrand pedig mindössze 800 méterre érhető el.
Az ingatlan kiváló választás lehet állandó otthonnak, nyaralónak vagy befektetésnek egyaránt.
Bővebb információért, megtekintés egyeztetéséhez keressen bizalommal telefonon!
55500000 Ft