Eladó Lakás
Hirdetéskód: 9250788
OTP Ingatlanpont Siófok
Felújításhoz személyi kölcsönt keres? Kalkuláljon itt! →
Ez a hirdetés megfelelhet a FIX 3%-os programnak.
Tudj meg többet a részletekről itt.
57.00 m2
ALAPTERÜLET2
SZOBASZÁMnincs megadva
ÉPÍTÉSGáz (konvektor)
FŰTÉS- CSOK igénybe vehető nem
- Tetőtér beépíthető nem
- Építés éve 1989
- Fűtés Gáz (konvektor)
- Klíma nem
- Szigetelt nem
A+++
A++
A+
A
B
C
D
E
F
G
H
I
Az ingatlan leírása
Eladó lakás Siófok belvárosában, csendes környezetben.
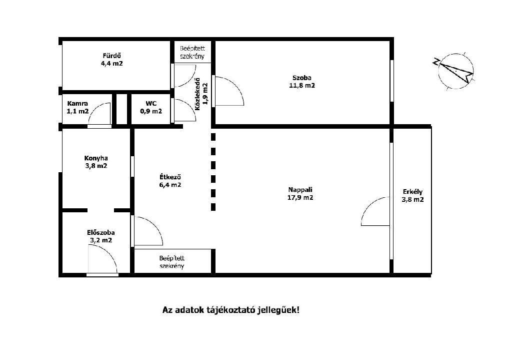
A Balaton déli partján, Siófok belvárosában, mégis nyugodt, csendes környezetben kínálunk eladásra egy 57 m2-es, kétszobás, erkélyes lakást. Az ingatlan egy társasház negyedik emeletén helyezkedik el, a Fő tértől mindössze 700 méterre.
A lakás fűtését gázkonvektorok és hűtő-fűtő klímaberendezések biztosítják, a melegvizet pedig wifi-vezérlésű okosbojler szolgáltatja. A külső nyílászárók műanyag szerkezetűek, redőnnyel és szúnyoghálóval felszereltek. A biztonságról több ponton záródó bejárati ajtó gondoskodik.
Az épület földszintjén közös kerékpártároló áll rendelkezésre, a parkolás a társasház előtti közterületen ingyenesen megoldott.
A környék infrastruktúrája kiváló: a közelben óvoda, játszótér és vásárlási lehetőségek találhatók. A vasútállomás és az autóbusz-állomás 600 méterre, a Balaton-part és a Nagystrand pedig mindössze 800 méterre érhető el.
Az ingatlan kiváló választás lehet állandó otthonnak, nyaralónak vagy befektetésnek egyaránt.
Bővebb információért, megtekintés egyeztetéséhez keressen bizalommal telefonon!
Az energetikai tanúsítvány készítése folyamatban van, amint rendelkezésre áll, úgy azzal a hirdetés frissítésre kerül.
A Balaton déli partján, Siófok belvárosában, mégis nyugodt, csendes környezetben kínálunk eladásra egy 57 m2-es, kétszobás, erkélyes lakást. Az ingatlan egy társasház negyedik emeletén helyezkedik el, a Fő tértől mindössze 700 méterre.
A lakás fűtését gázkonvektorok és hűtő-fűtő klímaberendezések biztosítják, a melegvizet pedig wifi-vezérlésű okosbojler szolgáltatja. A külső nyílászárók műanyag szerkezetűek, redőnnyel és szúnyoghálóval felszereltek. A biztonságról több ponton záródó bejárati ajtó gondoskodik.
Az épület földszintjén közös kerékpártároló áll rendelkezésre, a parkolás a társasház előtti közterületen ingyenesen megoldott.
A környék infrastruktúrája kiváló: a közelben óvoda, játszótér és vásárlási lehetőségek találhatók. A vasútállomás és az autóbusz-állomás 600 méterre, a Balaton-part és a Nagystrand pedig mindössze 800 méterre érhető el.
Az ingatlan kiváló választás lehet állandó otthonnak, nyaralónak vagy befektetésnek egyaránt.
Bővebb információért, megtekintés egyeztetéséhez keressen bizalommal telefonon!
Az energetikai tanúsítvány készítése folyamatban van, amint rendelkezésre áll, úgy azzal a hirdetés frissítésre kerül.