Eladó Lakás
Hirdetéskód: 9290737
City Cartel, Siófok
Felújításhoz személyi kölcsönt keres? Kalkuláljon itt! →110.00 m2
ALAPTERÜLET5
SZOBASZÁMnincs megadva
ÉPÍTÉSGáz (cirkó)
FŰTÉS- Építés éve 2025
- Fűtés Gáz (cirkó)
A+++
A++
A+
A
B
C
D
E
F
G
H
I
Az ingatlan leírása
Letisztult, modern stílus, magas műszaki tartalom, a Balatontól mindössze 50 méter távolságra.
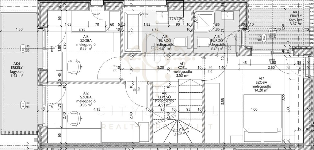
A CITY CARTEL INGATLANIRODA eladásra kínál Siófokon, az Aranyparton, egy 300 m2 nagyságú saját kerttel, gépkocsibeállóval rendelkező, 110 m2 lakóterületű, két szintes, 5 szobás, új építésű, kulcsrakész állapotú, lakóház besorolású ikerházat.
Beosztását tekintve a földszinten egy amerikai konyhás nappali, hálószoba, előtér, tároló, WC és egy részben fedett terasz található.
Az emeleten további 3 hálószoba, 2 fürdőszoba, illetve 2 erkély került kialakításra.
Gáz kivételével minden közművel rendelkezik.
Hőszivattyús hűtés-fűtés.
Az ingatlanok teljesen függetlenek egymástól, önálló helyrajzi számmal rendelkeznek.
Nyaralónak, állandó lakhatásra egyaránt ajánlott.
A szabadstrand közvetlen közelében!
További kérdések esetén állok rendelkezésére a hét bármely napján.
Irodáink:
8600 Siófok, Fő tér 6. (Sió Pláza -1. szint)
8640 Fonyód, Ady Endre u. 5. (Balaton Áruház földszint)
8638 Balatonlelle, Rákóczi út 276.
Kövess minket Facebook-on is: @citycartelbalaton!
A CITY CARTEL INGATLANIRODA eladásra kínál Siófokon, az Aranyparton, egy 300 m2 nagyságú saját kerttel, gépkocsibeállóval rendelkező, 110 m2 lakóterületű, két szintes, 5 szobás, új építésű, kulcsrakész állapotú, lakóház besorolású ikerházat.
Beosztását tekintve a földszinten egy amerikai konyhás nappali, hálószoba, előtér, tároló, WC és egy részben fedett terasz található.
Az emeleten további 3 hálószoba, 2 fürdőszoba, illetve 2 erkély került kialakításra.
Gáz kivételével minden közművel rendelkezik.
Hőszivattyús hűtés-fűtés.
Az ingatlanok teljesen függetlenek egymástól, önálló helyrajzi számmal rendelkeznek.
Nyaralónak, állandó lakhatásra egyaránt ajánlott.
A szabadstrand közvetlen közelében!
További kérdések esetén állok rendelkezésére a hét bármely napján.
Irodáink:
8600 Siófok, Fő tér 6. (Sió Pláza -1. szint)
8640 Fonyód, Ady Endre u. 5. (Balaton Áruház földszint)
8638 Balatonlelle, Rákóczi út 276.
Kövess minket Facebook-on is: @citycartelbalaton!