Eladó Lakás
Hirdetéskód: 9073481
OTP Ingatlanpont - Takács Zsuzsanna
194 m2
ALAPTERÜLET5
SZOBASZÁMnincs megadva
ÉPÍTÉSnincs megadva
FŰTÉS- CSOK igénybe vehető nem
- Tetőtér beépíthető nem
- Építés éve 2025
- Klíma nem
- Szigetelt nem
A+++
A++
A+
A
B
C
D
E
F
G
H
I
Az ingatlan leírása
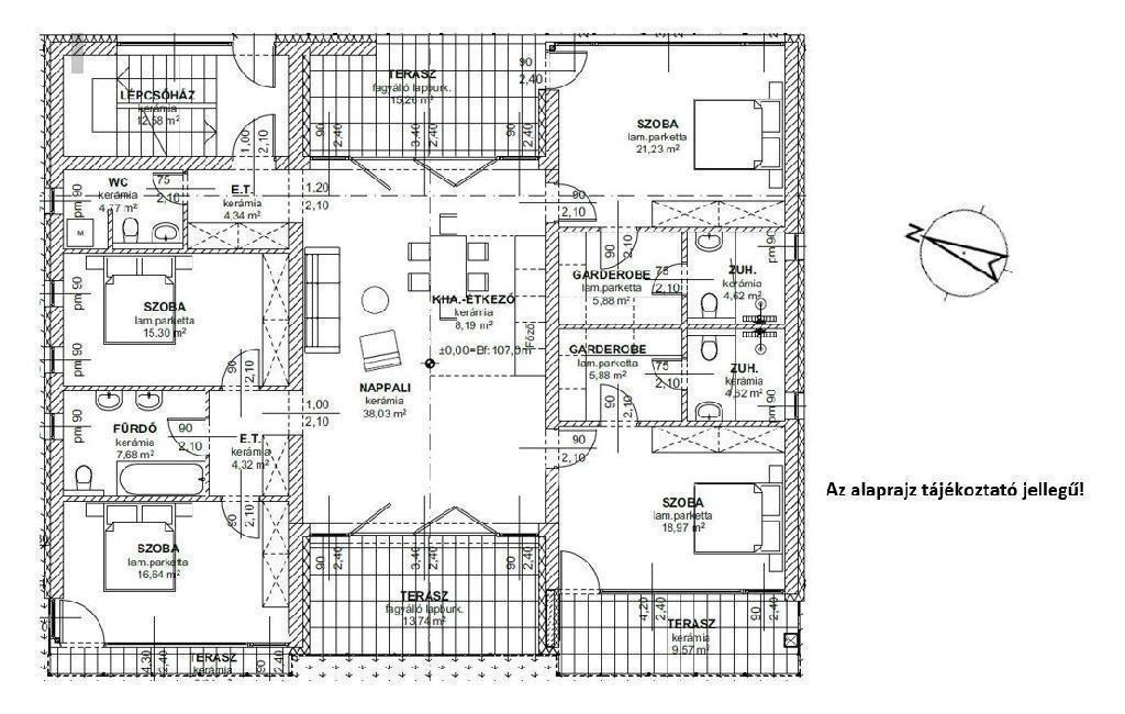
Balaton Déli parton, Siófokon, 194 m2-es lakás eladó. Az ingatlan a település Aranypart üdülőövezetében helyezkedik el, 100 méterre a vízparttól, szabadstrandtól. A 602 m2-es telken egy 3 lakásos társasház épül, melynek ez a földszinti, 173 m2-es lakása négy, összesen 42 m2 terasszal. Az energiatakarékos, A+ energetikai besorolású ház várható rezsiköltsége 1.000 Ft/m2/év, és igény esetén okos otthonként is üzemeltethető. A padlófűtést és a lakás hűtését hőszivattyú biztosítja. Az ár a kulcsrakész állapotra vonatkozik, tartalmazza az elektromos redőny, szúnyogháló, konyhabútor, valamint 2 gépkocsibeálló árát, de igény esetén garázs is kialakítható a lakótér átalakításával. Tovább növeli az ingatlan értékét, hogy a lakáshoz tartozik egy kb. 100 m2-es, kizárólagos használatú kertrész is. A minőség tekintetében kiváló, a lokáció szempontjából egyedülálló lehetőség állandó lakhatásra vagy nyaralásra, de befektetésnek, kiadásra is tökéletes megoldás. A minőséget egy többszörösen díjazott tervező-kivitelező társaság garantálja. Bővebb információért keressen telefonon!
M297553
Az OTP Ingatlanpont, mint egyetlen közvetlen banki hátterű ingatlanközvetítő társaság teljes körű ügyintézéssel áll az eladók és a vevők rendelkezésére! A kínálatunkból választott ingatlan finanszírozásához minősített fogyasztóbarát, piaci és kedvezményes hitel- és lízingkonstrukciókat kínálunk (lakásvásárlási hitel, CSOK plusz, szabad felhasználású hitel, babaváró hitel, céges hitelek, pályázatok). Az adásvételi szerződés megkötéséhez igény szerint megbízható ügyvédi közreműködést biztosítunk, és segítséget nyújtunk az adásvételhez kapcsolódó egyéb ügyek intézéséhez.
Ha az új ingatlana megvásárlásához a jelenlegi ingatlanát el kell adnia, abban is szívesen segítünk.
M297553
Az OTP Ingatlanpont, mint egyetlen közvetlen banki hátterű ingatlanközvetítő társaság teljes körű ügyintézéssel áll az eladók és a vevők rendelkezésére! A kínálatunkból választott ingatlan finanszírozásához minősített fogyasztóbarát, piaci és kedvezményes hitel- és lízingkonstrukciókat kínálunk (lakásvásárlási hitel, CSOK plusz, szabad felhasználású hitel, babaváró hitel, céges hitelek, pályázatok). Az adásvételi szerződés megkötéséhez igény szerint megbízható ügyvédi közreműködést biztosítunk, és segítséget nyújtunk az adásvételhez kapcsolódó egyéb ügyek intézéséhez.
Ha az új ingatlana megvásárlásához a jelenlegi ingatlanát el kell adnia, abban is szívesen segítünk.