Eladó Lakás
Hirdetéskód: 9188873

Mezőssy Blanka

Felújításhoz személyi kölcsönt keres? Kalkuláljon itt! →
64.00 m2
ALAPTERÜLET
2
SZOBASZÁM
Egyéb anyag
ÉPÍTÉS
Hőszivattyú
FŰTÉS
  • Kilátás Panorámás
  • Tájolás Nyugat
  • Ingatlan komfort Összkomfortos
  • Parkolási lehetőség Udvari beálló
  • Építés éve 2026
  • Fűtés Hőszivattyú
  • Építőanyag Egyéb anyag
  • Erkély, terasz Terasz 15.00m2
  • Kertkapcsolat igen
  • Klíma igen
  • Szigetelt igen
  • Akadálymentesített igen

Energetikai besorolás: C

A+++
A++
A+
A
B
C
D
E
F
G
H
I

Az MBH Bank személyi kölcsön ajánlata

Fizetett hirdetés
1 millió Ft
6 évre
20 585 Ft/hó
THM: 14.5%
Részletek →
2 millió Ft
6 évre
41 169 Ft/hó
THM: 14.5%
Részletek →
3 millió Ft
6 évre
61 754 Ft/hó
THM: 14.5%
Részletek →

A tájékoztatás nem teljes körű és nem minősül ajánlattételnek.

Az ingatlan leírása

? ÖRÖKPANORÁMÁS, KÖZVETLEN VÍZPARTI LUXUS APARTMAN – SIÓFOK EZÜSTPARTJÁN ?️


✅ Örökpanoráma – A lakásból lenyűgöző, zavartalan kilátás nyílik a Balaton végtelen víztükrére.
✅ Közvetlen vízparti elhelyezkedés – Nincs több kompromisszum, itt valóban kiléphet otthonából a tóparti sétányra vagy a strandhoz ?.
✅ Letisztult luxus – Magas minőségű belsőépítészeti ? megoldások, modern dizájn, időtálló érték. OKOS otthon rendszer.
✅ Praktikum a mindennapokban – Választható saját ? gépkocsibeálló, nyitott parkolóhelyek, ideális elrendezésű lakások.
✅ Egész éves balatoni életérzés – Naplementék, nyugalom és pezsgés tökéletes harmóniában, nemcsak nyáron.


A lakás jellemzői:


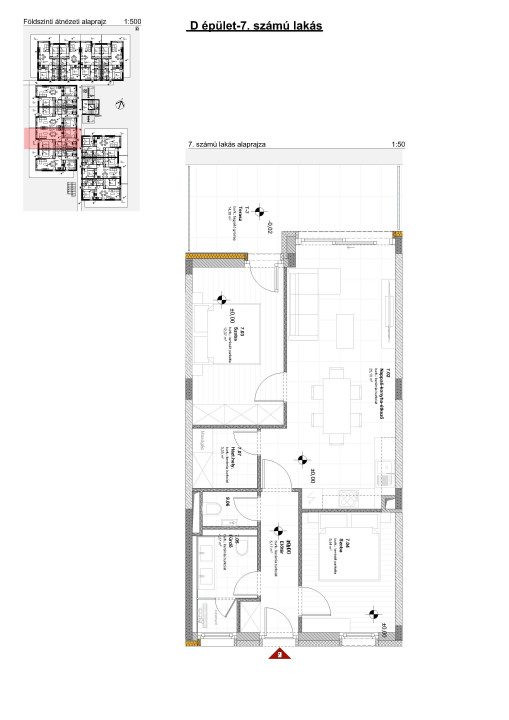
? Földszint – 64 m² lakótér + 15 m² terasz
? Balatoni panorámával, kertkapcsolattal 



  • Előtér 5,17 kerámia burkolat
    Nappali(laminált parketta)-konyha-étkező 24,67 kerámia burkolat
    Szoba 12,37 laminált parketta
    Szoba 9,54 laminált parketta
    Fürdő 4,2 kerámia burkolat
    WC 1,6 kerámia burkolat
    Házt.hely. 3,24 kerámia burkolat 


A társasház (Villapark) 3 szintes, modern, újépítésű épület, kivitelezés alatt.


A fejlesztés korszerű energetikai megoldásokkal és kiemelkedő műszaki tartalommal készül.


Várható átadás: 2026. december 31.


Főbb műszaki adatok:



  • Háromrétegű, hőszigetelt nyílászárók

  • Hőszivattyús fűtés-hűtés rendszer

  • OKOS Otthon rendszer (FIBARO)

  • Fokozott hangszigetelésű lakáselválasztó falak

  • Választható hideg- és melegburkolatok (a kivitelezés ütemének megfelelően)


Kényelmi extrák:



  • Zárt, biztonságos parkoló a telken belül

  • Parkosított, automata öntözőrendszerrel ellátott környezet

  • Lift az emeleti lakások megközelítéséhez

  • Minden lakáshoz terasz- vagy erkélykapcsolat, egyes hálószobákhoz is

  • Álomnyaraló vagy értékálló befektetés – Ön dönt!
    További információért, megtekintésért keressen telefonon!

Térkép

A hirdető elérhetősége

Mezőssy Eszter Blanka

Mezőssy Blanka
+36 70 388