Eladó Lakás
Hirdetéskód: 9267178
OTP Ingatlanpont Siófok
Felújításhoz személyi kölcsönt keres? Kalkuláljon itt! →
Ez a hirdetés megfelelhet a FIX 3%-os programnak.
Tudj meg többet a részletekről itt.
57.00 m2
ALAPTERÜLET3
SZOBASZÁMnincs megadva
ÉPÍTÉSGáz (cirkó)
FŰTÉS- CSOK igénybe vehető nem
- Tetőtér beépíthető nem
- Építés éve 1990
- Fűtés Gáz (cirkó)
- Klíma nem
- Szigetelt nem
A+++
A++
A+
A
B
C
D
E
F
G
H
I
Az ingatlan leírása
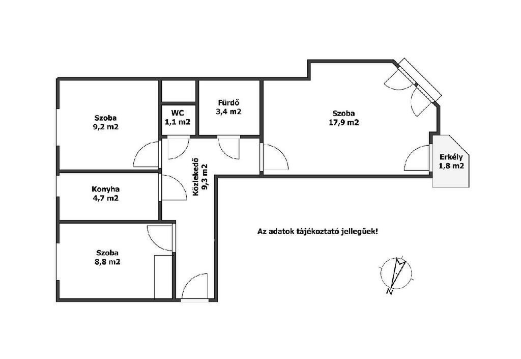
Balaton déli parton, Siófokon, a Belvárosban, 57 m2-es lakás eladó.
Siófok központjához közel, mégis csendes, rendezett környezetben eladó egy nappali + 2 szobás, erkélyes, 57 m2-es lakás, amely egy társasház 3. emeletén helyezkedik el.
A fűtést gáz cirkó kazán biztosítja, a lakás kedvező tájolásának és elosztásának köszönhetően pedig világos terekkel rendelkezik. A nappaliban hűtő-fűtő klímaberendezés növeli a kényelmet.
A lakáshoz tartozik egy saját használatú tároló, a földszinten pedig babakocsi-tároló áll rendelkezésre. Az épület zárt udvarán lakásonként egy gépkocsi részére biztosított parkolóhely.
Az ingatlan elhelyezkedése kiváló: a közelben óvoda, iskola, játszótér, valamint számos szolgáltatás és vásárlási lehetőség található. A vasút- és autóbusz-állomás 500 méterre, a Balaton-part és a Nagystrand mindössze 1000 méterre, kb. 15 perc sétára érhető el.
Ideális választás állandó otthonnak, nyaralónak vagy befektetésnek / kiadásra.
Bővebb információért vagy megtekintés egyeztetéséhez keressen telefonon!
Siófok központjához közel, mégis csendes, rendezett környezetben eladó egy nappali + 2 szobás, erkélyes, 57 m2-es lakás, amely egy társasház 3. emeletén helyezkedik el.
A fűtést gáz cirkó kazán biztosítja, a lakás kedvező tájolásának és elosztásának köszönhetően pedig világos terekkel rendelkezik. A nappaliban hűtő-fűtő klímaberendezés növeli a kényelmet.
A lakáshoz tartozik egy saját használatú tároló, a földszinten pedig babakocsi-tároló áll rendelkezésre. Az épület zárt udvarán lakásonként egy gépkocsi részére biztosított parkolóhely.
Az ingatlan elhelyezkedése kiváló: a közelben óvoda, iskola, játszótér, valamint számos szolgáltatás és vásárlási lehetőség található. A vasút- és autóbusz-állomás 500 méterre, a Balaton-part és a Nagystrand mindössze 1000 méterre, kb. 15 perc sétára érhető el.
Ideális választás állandó otthonnak, nyaralónak vagy befektetésnek / kiadásra.
Bővebb információért vagy megtekintés egyeztetéséhez keressen telefonon!