Eladó Lakás
Hirdetéskód: 9313264

-

Felújításhoz személyi kölcsönt keres? Kalkuláljon itt! →
FIX 3% Program

Ez a hirdetés megfelelhet a FIX 3%-os programnak.
Tudj meg többet a részletekről itt.

46.00 m2
ALAPTERÜLET
1
SZOBASZÁM
Tégla
ÉPÍTÉS
Gáz (cirkó)
FŰTÉS
  • Tájolás Délnyugat
  • Ingatlan komfort Összkomfortos
  • Parkolási lehetőség Udvari beálló
  • Építés éve 2017
  • Fűtés Gáz (cirkó)
  • Építőanyag Tégla
  • Klíma igen
  • Szigetelt igen
Energetikai besorolás: Nincs meghatározva
A+++
A++
A+
A
B
C
D
E
F
G
H
I

Az MBH Bank személyi kölcsön ajánlata

Fizetett hirdetés
1 millió Ft
6 évre
20 585 Ft/hó
THM: 14.5%
Részletek →
2 millió Ft
6 évre
41 169 Ft/hó
THM: 14.5%
Részletek →
3 millió Ft
6 évre
61 754 Ft/hó
THM: 14.5%
Részletek →

A tájékoztatás nem teljes körű és nem minősül ajánlattételnek.

Az ingatlan leírása

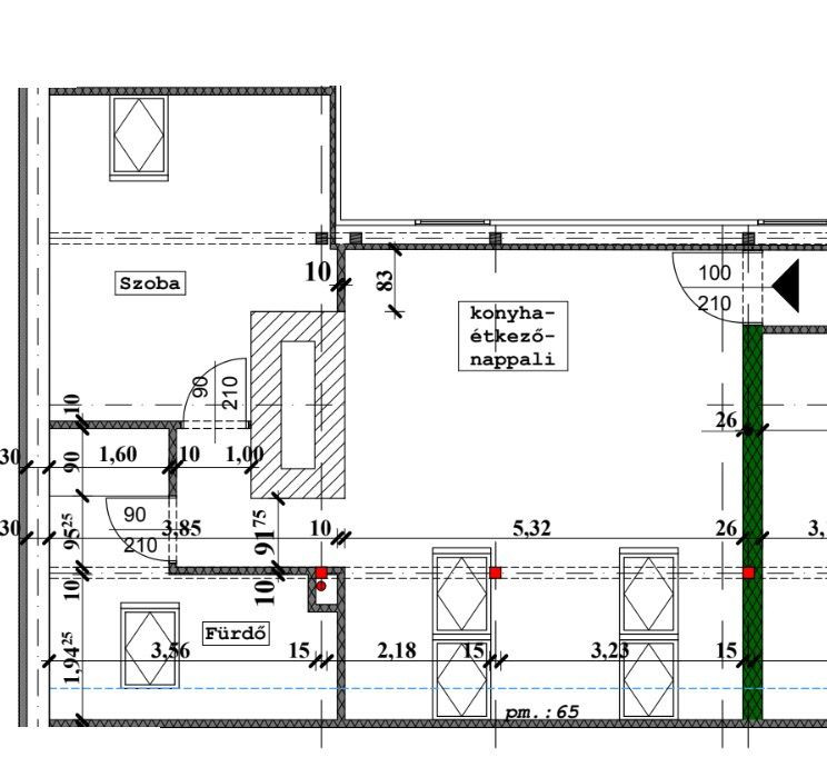
Sárváron, turisztikai övezetben, Zafír Apartmanházban, újszerű, 3. emeleti, nettó 46m2 -es (bruttó 58m2), 1 szoba+nappali konyha-étkezős lakás, DNY-i tájolással,zárt udvari gépkocsibeállóval eladó!

Az ingatlan klimatizált, teljes felszereléssel, bútorzattal, gépesítve kerül átadásra.

Igény szerint szálláshely szolgáltatás, marketing felületek átruházása megoldható. Az apartman jelenleg is aktív szálláshely, 2+2 fős kapacitással.

Szállodai kulcskártya rendszerrel szerelt. Az ingatlan fűtéséről házközponti gáz-cirkó rendszer gondoskodik egyedi mérőkkel szerelve.



További részletekért forduljon hozzám bizalommal.
Kérdéseivel kapcsolatban irodai konzultáció keretében, illetve telefonon állok szíves rendelkezésére.

Teljeskörű Otthon Start Hitel, Csok + Hitel, Piaci Hitel ügyintézéssel! Ne feledje, amennyiben Csok-ot igényel, az ingatlanvásárlása illetékmentes!

Érd.:
Molnár Zsolt
Ingatlanvagyon-értékelő
Ingatlan értékesítő

Térkép

Ingatlan adásvétel ügyvédi díja
245 250 Ft
a hirdetésben szereplő ár alapján
  • A vételár 0,45%-a
  • Szerződéscsomag teljeskörű képviselettel
  • Ingyenes tulajdoni lap ellenőrzés
  • Az ÁFA-t már tartalmazza
Érdekel az ajánlat →
A tájékoztatás nem teljes körű és nem minősül ajánlattételnek. Minimum díj: 150 000 Ft, maximum díj: 600 000 Ft. A díj kizárólag lakóingatlan adásvételére vonatkozik.

A hirdető elérhetősége

S1Ingatlan

Csuka Milán
+36 30 217