Eladó Lakás
Hirdetéskód: 9306627

-

Felújításhoz személyi kölcsönt keres? Kalkuláljon itt! →
FIX 3% Program

Ez a hirdetés megfelelhet a FIX 3%-os programnak.
Tudj meg többet a részletekről itt.

126.00 m2
ALAPTERÜLET
4
SZOBASZÁM
Tégla
ÉPÍTÉS
Gáz (cirkó)
FŰTÉS
  • CSOK igénybe vehető igen
  • Belső szintek 2
  • Kilátás Utcai
  • Tájolás Dél
  • Ingatlan komfort Összkomfortos
  • Parkolási lehetőség Önálló garázs
  • Építés éve 1975
  • Fűtés Gáz (cirkó)
  • Építőanyag Tégla
  • Erkély, terasz Loggia 5.00m2
  • Kertkapcsolat igen 100.00m2
  • Klíma igen
  • Szigetelt igen
  • Bútorozott igen
  • Akadálymentesített nem

Energetikai besorolás: C

A+++
A++
A+
A
B
C
D
E
F
G
H
I

Az MBH Bank személyi kölcsön ajánlata

Fizetett hirdetés
1 millió Ft
6 évre
20 585 Ft/hó
THM: 14.5%
Részletek →
2 millió Ft
6 évre
41 169 Ft/hó
THM: 14.5%
Részletek →
3 millió Ft
6 évre
61 754 Ft/hó
THM: 14.5%
Részletek →

A tájékoztatás nem teljes körű és nem minősül ajánlattételnek.

Az ingatlan leírása

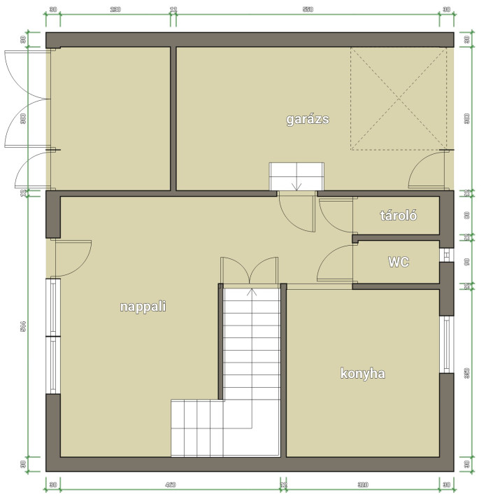
Sárvár közvetlen belvárosában, a vártól 5 perc sétára található, a 2005-ben teljesen és igényesen  felújított, sorházas ingatlan. A 4 szoba, nappali-konyha, fürdőszobás ingatlan fűtését egy 24 KW-os Vaillant  gázkazán biztosítja, radiátoros hőleadással, a 120 literes gáz bojler a kazánnal együtt a 15 m2-es pincében került elhelyezésre. A lakóingatlan szigetelt (padlás is), műanyag hőszigetelt ablakokkal, fóliázott üveggel, szúnyoghálóval, hűtő-fűtő klímával. A kamerás kaputelefon és riasztó rendszer kiépített, a kapuszínben ami szintén szigetelt, infra szaunával és egy motoros garázskapuval rendelkező gépkocsi tárolóval. A déli oldalon egy 15 m2-es terasz helyezkedik el, kitekerhető napellenzővel a kis kert végében pedig egy 9 m2-es faház került kialakításra. A beépített konyha Bosch gépekkel szerelt, a lakóingatlan a folyamatos karbantartásnak és felújításoknak köszönhetően nagyon jó állapotú, azonnal beköltözhető. 


További részletekért forduljon hozzám bizalommal.
Kérdéseivel kapcsolatban irodai konzultáció keretében, illetve telefonon állok szíves rendelkezésére.


Teljeskörű Piaci Hitel, Csok +, ügyintézéssel! Ne feledje, amennyiben Csok-ot igényel, az ingatlanvásárlása illetékmentes!


 


Im Herzen von Sárvár, nur 5 Gehminuten vom Schloss entfernt, befindet sich dieses Reihenhaus, das 2005 komplett und geschmackvoll renoviert wurde. Das Haus mit 4 Zimmern (Wohnzimmer, Küche und Bad) wird mit einer 24-kW-Gasheizung von Vaillant mit Heizkörpern beheizt. Die 120-Liter-Gasheizung befindet sich im 15 m² großen Keller. Das Haus ist wärmegedämmt (inklusive Dachboden) und verfügt über wärmeisolierende Kunststofffenster, Verbundglas, Moskitonetze und eine Klimaanlage. Eine Video-Gegensprechanlage und eine Alarmanlage sind installiert. Im ebenfalls wärmegedämmten Pförtnerhaus befinden sich ein Abstellraum mit Infrarotsauna und ein elektrisches Garagentor. Auf der Südseite erstreckt sich eine 15 m² große Terrasse, und am Ende des kleinen Gartens steht ein 9 m² großes Holzhaus. Die Einbauküche ist mit Bosch-Geräten ausgestattet. Dank kontinuierlicher Instandhaltung und Renovierung befindet sich das Haus in einem sehr guten Zustand und ist sofort bezugsfertig.
... Für weitere Informationen kontaktieren Sie mich bitte vertrauensvoll. Ich beantworte gerne Ihre Fragen im Rahmen eines persönlichen Gesprächs in meiner Praxis oder telefonisch.


In the immediate city center of Sárvár, a 5-minute walk from the castle, is the terraced house property, which was completely and tastefully renovated in 2005. The property with 4 rooms, living room, kitchen, and bathroom is heated by a 24 KW Vaillant gas boiler with radiator heat transfer, the 120-liter gas boiler and the boiler are located in the 15 m2 basement. The residential property is insulated (including the attic), with plastic heat-insulated windows, laminated glass, mosquito nets, and air conditioning. The camera intercom and alarm system are installed, and there is a car storage room with an infrared sauna and a motorized garage door in the gatehouse, which is also insulated. On the south side there is a 15 m2 terrace, and at the end of the small garden there is a 9 m2 wooden house. The built-in kitchen is equipped with Bosch appliances, the residential property is in very good condition thanks to continuous maintenance and renovations, and can be moved into immediately.


For further details, please contact me with confidence.
I am happy to assist you with any questions you may have during an office consultation or by phone.

Térkép

Ingatlan adásvétel ügyvédi díja
438 750 Ft
a hirdetésben szereplő ár alapján
  • A vételár 0,45%-a
  • Szerződéscsomag teljeskörű képviselettel
  • Ingyenes tulajdoni lap ellenőrzés
  • Az ÁFA-t már tartalmazza
Érdekel az ajánlat →
A tájékoztatás nem teljes körű és nem minősül ajánlattételnek. Minimum díj: 150 000 Ft, maximum díj: 600 000 Ft. A díj kizárólag lakóingatlan adásvételére vonatkozik.

A hirdető elérhetősége

S1Ingatlan

Csuka Milán
+36 30 217