Eladó Lakás
Hirdetéskód: 9263550

-

Felújításhoz személyi kölcsönt keres? Kalkuláljon itt! →
FIX 3% Program

Ez a hirdetés megfelelhet a FIX 3%-os programnak.
Tudj meg többet a részletekről itt.

62.00 m2
ALAPTERÜLET
2
SZOBASZÁM
Tégla
ÉPÍTÉS
Házközponti fűtés egyedi méréssel
FŰTÉS
  • CSOK igénybe vehető igen
  • Belső szintek 3
  • Kilátás Udvari
  • Tájolás Dél
  • Ingatlan komfort Összkomfortos
  • Parkolási lehetőség Udvari beálló
  • Építés éve 2026
  • Fűtés Házközponti fűtés egyedi méréssel
  • Építőanyag Tégla
  • Erkély, terasz Loggia 5.00m2
  • Klíma igen
  • Szigetelt igen
  • Bútorozott nem

Energetikai besorolás: A+

A+++
A++
A+
A
B
C
D
E
F
G
H
I

Az MBH Bank személyi kölcsön ajánlata

Fizetett hirdetés
1 millió Ft
6 évre
20 585 Ft/hó
THM: 14.5%
Részletek →
2 millió Ft
6 évre
41 169 Ft/hó
THM: 14.5%
Részletek →
3 millió Ft
6 évre
61 754 Ft/hó
THM: 14.5%
Részletek →

A tájékoztatás nem teljes körű és nem minősül ajánlattételnek.

Az ingatlan leírása

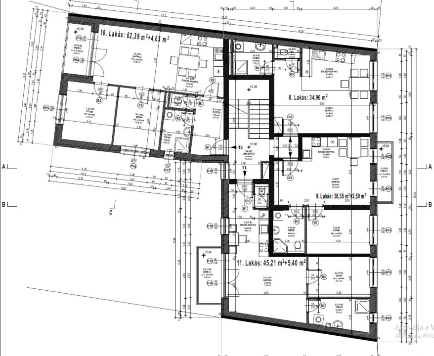
Sárvár belvárosában, Árpád utcában, 23 lakásos projektben, újépítésű társasházban, újépítésű,  62,39 m2-es két szoba plusz nappali, konyhás-étkezős lakás, 4,65 m2-es erkéllyel eladó. A lakás hűtő-fűtő klímával, motoros redőnnyel és szúnyogháló előkészítéssel lett szerelve. A lakáshoz vásárolható garázs 18,24 m2-es, 9 millió forintért.


Műszaki tartalommal, fizetési ütemezéssel, további részletekkel, kérdésekkel kapcsolatban, irodai konzultáció keretében állok szíves rendelkezésére.


Molnár Zsolt 06302174888
S1 Ingatlan Iroda
9600, Sárvár Batthyány utca 31. Fsz.1.


Teljeskörű Piaci Hitel, Csok+, ügyintézéssel! Ne feledje, amennyiben Csok-ot igényel, az ingatlanvásárlása illetékmentes!

Térkép

Ingatlan adásvétel ügyvédi díja
282 411 Ft
a hirdetésben szereplő ár alapján
  • A vételár 0,45%-a
  • Szerződéscsomag teljeskörű képviselettel
  • Ingyenes tulajdoni lap ellenőrzés
  • Az ÁFA-t már tartalmazza
Érdekel az ajánlat →
A tájékoztatás nem teljes körű és nem minősül ajánlattételnek. Minimum díj: 150 000 Ft, maximum díj: 600 000 Ft. A díj kizárólag lakóingatlan adásvételére vonatkozik.

A hirdető elérhetősége

S1Ingatlan

Csuka Milán
+36 30 217