Eladó Lakás
Hirdetéskód: 9304460
Salgótarján Rákóczi út 1-9 - OTP Ingatlanpont Iroda
Felújításhoz személyi kölcsönt keres? Kalkuláljon itt! →
Ez a hirdetés megfelelhet a FIX 3%-os programnak.
Tudj meg többet a részletekről itt.
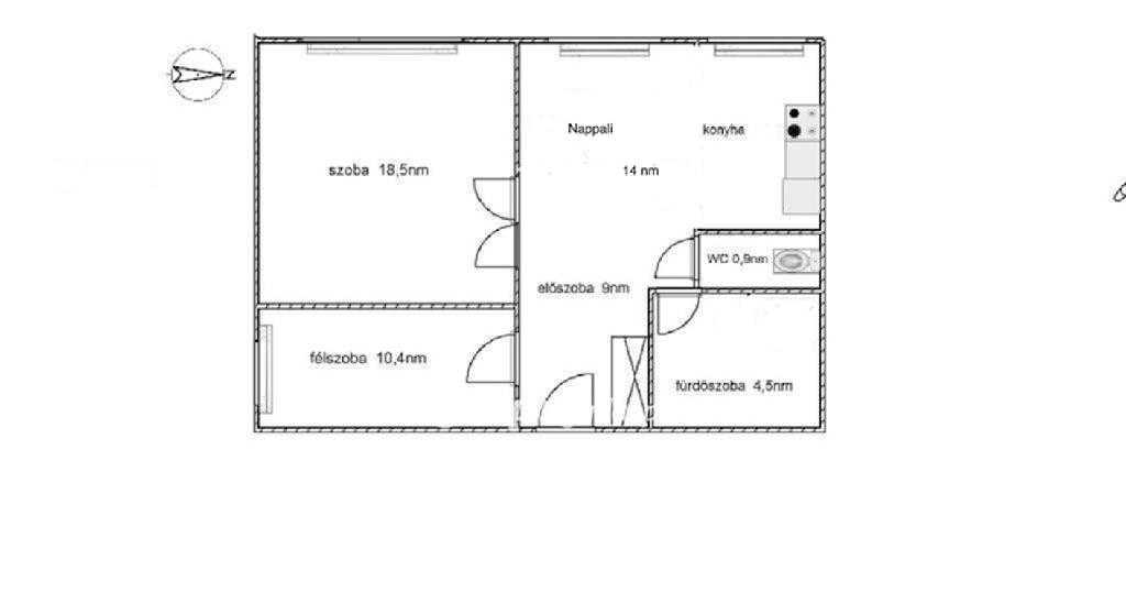
56.00 m2
ALAPTERÜLET3
SZOBASZÁMnincs megadva
ÉPÍTÉSTávfűtés
FŰTÉS- CSOK igénybe vehető nem
- Tetőtér beépíthető nem
- Építés éve 1980
- Fűtés Távfűtés
- Klíma nem
- Szigetelt nem
A+++
A++
A+
A
B
C
D
E
F
G
H
I
Az ingatlan leírása
Eladó felújított, amerikai konyhás lakás Salgótarján kedvelt városrészében, Besztercén!
Salgótarján Beszterce városrészében eladó, egy 56 nm-es, 2+1 félszobás, teljeskörűen felújított, távfűtéses, 5. emeleti lakás.
Az ingatlan átgondolt átalakításon esett át: az egyik félszobát a konyhával összenyitották, így egy tágas, világos amerikai konyhás nappali került kialakításra, amely ideális családi és baráti összejövetelekhez is.
A lakás műszaki és esztétikai felújítása során:
cserélve lettek a nyílászárók
teljeskörűen megújult a fürdőszoba
modern, felújított konyha került beépítésre
Az ingatlan jó elosztású, világos, az 5. emeleti elhelyezkedésének köszönhetően kellemes panorámával és csendesebb lakókörnyezettel rendelkezik.
A Beszterce lakótelep rendkívül jó ellátottságú: a közelben megtalálható bolt, iskola, óvoda, gyógyszertár, buszmegálló és egyéb szolgáltatások ? minden, ami a kényelmes mindennapokhoz szükséges.
Ideális választás lehet fiatal pároknak, kisgyermekes családoknak vagy akár befektetésnek is.
Érdemes megtekinteni ? egy igényesen felújított, azonnal költözhető otthon várja új tulajdonosát!
Salgótarján Beszterce városrészében eladó, egy 56 nm-es, 2+1 félszobás, teljeskörűen felújított, távfűtéses, 5. emeleti lakás.
Az ingatlan átgondolt átalakításon esett át: az egyik félszobát a konyhával összenyitották, így egy tágas, világos amerikai konyhás nappali került kialakításra, amely ideális családi és baráti összejövetelekhez is.
A lakás műszaki és esztétikai felújítása során:
cserélve lettek a nyílászárók
teljeskörűen megújult a fürdőszoba
modern, felújított konyha került beépítésre
Az ingatlan jó elosztású, világos, az 5. emeleti elhelyezkedésének köszönhetően kellemes panorámával és csendesebb lakókörnyezettel rendelkezik.
A Beszterce lakótelep rendkívül jó ellátottságú: a közelben megtalálható bolt, iskola, óvoda, gyógyszertár, buszmegálló és egyéb szolgáltatások ? minden, ami a kényelmes mindennapokhoz szükséges.
Ideális választás lehet fiatal pároknak, kisgyermekes családoknak vagy akár befektetésnek is.
Érdemes megtekinteni ? egy igényesen felújított, azonnal költözhető otthon várja új tulajdonosát!