Eladó Lakás
Hirdetéskód: 9278057

Broker | Forbes GP - Croatia

Felújításhoz személyi kölcsönt keres? Kalkuláljon itt! →
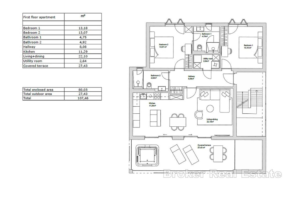
80.00 m2
ALAPTERÜLET
2
SZOBASZÁM
nincs megadva
ÉPÍTÉS
nincs megadva
FŰTÉS
  • CSOK igénybe vehető nem
  • Tetőtér beépíthető nem
  • Klíma nem
  • Szigetelt nem
Energetikai besorolás: Nincs meghatározva
A+++
A++
A+
A
B
C
D
E
F
G
H
I

Az MBH Bank személyi kölcsön ajánlata

Fizetett hirdetés
1 millió Ft
6 évre
20 585 Ft/hó
THM: 14.5%
Részletek →
2 millió Ft
6 évre
41 169 Ft/hó
THM: 14.5%
Részletek →
3 millió Ft
6 évre
61 754 Ft/hó
THM: 14.5%
Részletek →

A tájékoztatás nem teljes körű és nem minősül ajánlattételnek.

Az ingatlan leírása

In an excellent location, above Primošten, within a smaller newly built building, a spacious two-bedroom apartment is for sale. It is located on the second floor and offers an open view of the sea. The apartment consists of two bedrooms, one of which has its own bathroom. It also contains another bathroom, a storage room and an open-concept living area that combines the kitchen, dining room and living room. The total living area of the apartment is 80m2, while the covered terrace covers 27m2. This apartment is an excellent investment for tourist rentals but also for family stays, considering the accommodation is away from the hustle and bustle and yet close enough to all relevant amenities. BROKER REFERENCE ID:5473/30b

Térkép

Ingatlan adásvétel ügyvédi díja
600 000 Ft
a hirdetésben szereplő ár alapján
  • A vételár 0,45%-a
  • Szerződéscsomag teljeskörű képviselettel
  • Ingyenes tulajdoni lap ellenőrzés
  • Az ÁFA-t már tartalmazza
Érdekel az ajánlat →
A tájékoztatás nem teljes körű és nem minősül ajánlattételnek. Minimum díj: 150 000 Ft, maximum díj: 600 000 Ft. A díj kizárólag lakóingatlan adásvételére vonatkozik.

A hirdető elérhetősége

Broker | Forbes GP - Croatia

Dino Vulić
+38 52 154