Eladó Lakás
Hirdetéskód: 9252272
OTP Ingatlanpont - Budapest IX. ker., Üllői út 21.
Felújításhoz személyi kölcsönt keres? Kalkuláljon itt! →90.00 m2
ALAPTERÜLET3
SZOBASZÁMnincs megadva
ÉPÍTÉSnincs megadva
FŰTÉS- CSOK igénybe vehető nem
- Tetőtér beépíthető nem
- Építés éve 2024
- Klíma nem
- Szigetelt nem
A+++
A++
A+
A
B
C
D
E
F
G
H
I
Az ingatlan leírása
Új építésű tégla lakások Pilisvörösváron eladók!
Eladó modern lakások Pilisvörösvár központjához és a vasútállomáshoz közel, 2025 őszi átadással.
Ezek az energiatakarékos otthonok nemcsak a kényelmet, de a kiváló elhelyezkedést is biztosítják, hiszen Budapestre vonattal 20 perc alatt be lehet jutni, így ideális választás azoknak, akik a nyugodt környezetet és a jó közlekedési lehetőségeket egyaránt értékelik.
Pilisvörösvár előnyei: A város a Pilis hegység lábánál található, amely gyönyörű túraútvonalakkal és szabadidős programokkal várja a természet szerelmeseit. Könnyű és gyors vonatközlekedés Budapest irányába, így ideális azoknak, akik a fővárosban dolgoznak, de zöldövezetben szeretnének élni.
Lakások jellemzői: Fűtés: Hőszivattyús padlófűtés, riasztó előkészítéssel. Szigetelés: 15 cm-es hőszigetelés az energiatakarékosság jegyében.
Opciók: Légkondicionáló és redőny külön megrendelhető, rugalmas burkolat választás addig, amíg azok nem kerültek beépítésre.
A lakások jelenleg szerkezetkész állapotban vannak, azonban a meghirdetett árak a teljesen kulcsrakész állapotra vonatkoznak.
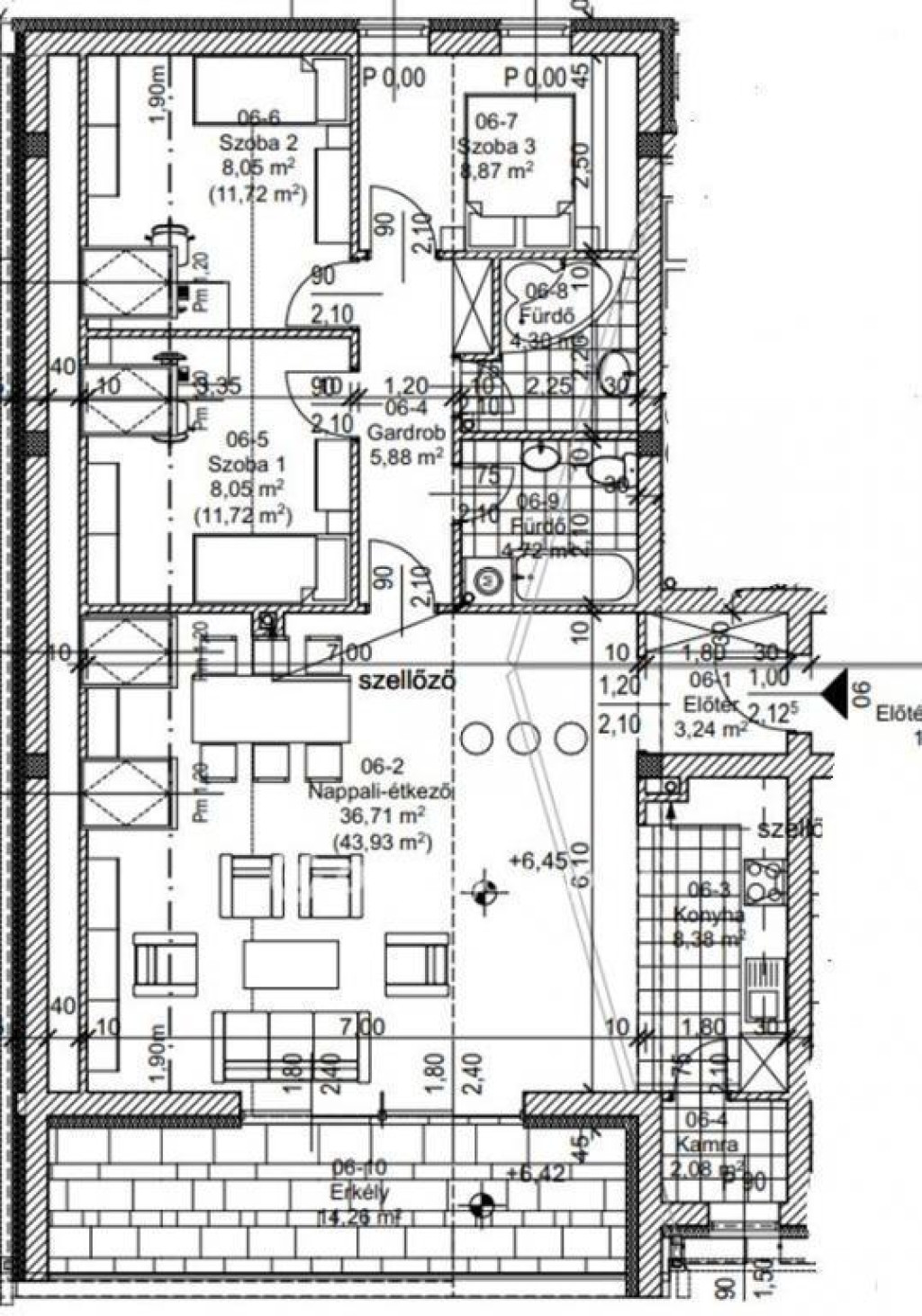
Elérhető lakásméretek,
40,5 nm + 9,5 nm erkély,
40,3 nm + 9,5 nm erkély,
53 nm,
62,3 nm,
65,9,
62,3 nm,
84,4 nm + 14,3 nm erkély,
55,4 nm,
50,6 nm.
Parkolás az utcán ingyenesen megoldható.
Élvezze a Pilis nyugalmát és Budapest közelségét egyszerre. Vásároljon egy csodás helyen lévő ingatlant!
Kérjen bővebb tájékoztatást és tekintse meg az elérhető lakásokat!
Referencia szám:M287802
Eladó modern lakások Pilisvörösvár központjához és a vasútállomáshoz közel, 2025 őszi átadással.
Ezek az energiatakarékos otthonok nemcsak a kényelmet, de a kiváló elhelyezkedést is biztosítják, hiszen Budapestre vonattal 20 perc alatt be lehet jutni, így ideális választás azoknak, akik a nyugodt környezetet és a jó közlekedési lehetőségeket egyaránt értékelik.
Pilisvörösvár előnyei: A város a Pilis hegység lábánál található, amely gyönyörű túraútvonalakkal és szabadidős programokkal várja a természet szerelmeseit. Könnyű és gyors vonatközlekedés Budapest irányába, így ideális azoknak, akik a fővárosban dolgoznak, de zöldövezetben szeretnének élni.
Lakások jellemzői: Fűtés: Hőszivattyús padlófűtés, riasztó előkészítéssel. Szigetelés: 15 cm-es hőszigetelés az energiatakarékosság jegyében.
Opciók: Légkondicionáló és redőny külön megrendelhető, rugalmas burkolat választás addig, amíg azok nem kerültek beépítésre.
A lakások jelenleg szerkezetkész állapotban vannak, azonban a meghirdetett árak a teljesen kulcsrakész állapotra vonatkoznak.
Elérhető lakásméretek,
40,5 nm + 9,5 nm erkély,
40,3 nm + 9,5 nm erkély,
53 nm,
62,3 nm,
65,9,
62,3 nm,
84,4 nm + 14,3 nm erkély,
55,4 nm,
50,6 nm.
Parkolás az utcán ingyenesen megoldható.
Élvezze a Pilis nyugalmát és Budapest közelségét egyszerre. Vásároljon egy csodás helyen lévő ingatlant!
Kérjen bővebb tájékoztatást és tekintse meg az elérhető lakásokat!
Referencia szám:M287802