Eladó Lakás
Hirdetéskód: 9308482

Pécs Király utca 75/5 - OTP Ingatlanpont Iroda

Felújításhoz személyi kölcsönt keres? Kalkuláljon itt! →
FIX 3% Program

Ez a hirdetés megfelelhet a FIX 3%-os programnak.
Tudj meg többet a részletekről itt.

85.00 m2
ALAPTERÜLET
2
SZOBASZÁM
nincs megadva
ÉPÍTÉS
Házközponti
FŰTÉS
  • CSOK igénybe vehető nem
  • Tetőtér beépíthető nem
  • Építés éve 1965
  • Fűtés Házközponti
  • Klíma nem
  • Szigetelt nem
Energetikai besorolás: Nincs meghatározva
A+++
A++
A+
A
B
C
D
E
F
G
H
I

Az MBH Bank személyi kölcsön ajánlata

Fizetett hirdetés
1 millió Ft
6 évre
20 585 Ft/hó
THM: 14.5%
Részletek →
2 millió Ft
6 évre
41 169 Ft/hó
THM: 14.5%
Részletek →
3 millió Ft
6 évre
61 754 Ft/hó
THM: 14.5%
Részletek →

A tájékoztatás nem teljes körű és nem minősül ajánlattételnek.

Az ingatlan leírása

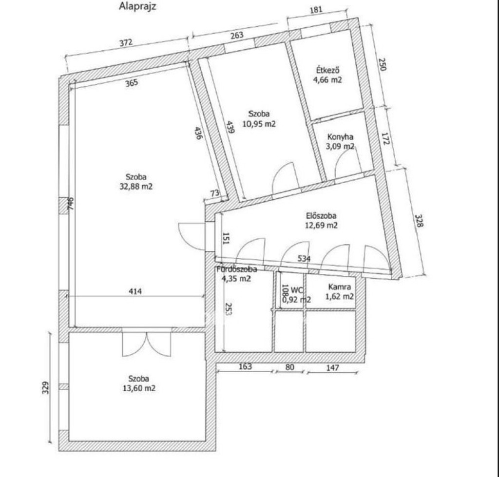
Baranya megyében, Pécsen, Uránvárosban eladó egy 2,5 szobás, 4. emeleti lakás a Mecsek Áruházzal szemben, az Ybl Miklós utcában található, négyemeletes téglaház legfelső szintjén. Az ingatlan nyugati és északi tájolású.

A lépcsőházban ugyan nincs lift, azonban a déli lépcsőházban található felvonó, amely a függőfolyosón keresztül könnyen megközelíthető.

A lakás alapterülete 85 m². A szobák parkettásak, a többi helyiség műanyag burkolatot kapott. Összkomfortos, házközponti fűtéssel rendelkezik, radiátoros hőleadással.

A környék kiváló infrastruktúrával bír: a közelben üzletek, OTP fiók és ATM is megtalálható a házban. Körülbelül 200 méterre rendelőintézet, 500 méteren belül óvoda, iskola és játszótér is elérhető. A belvárosba közlekedő buszok megállói szintén 200 méteren belül vannak. Az Orvosi Egyetem 1,3 km-re található, gyalog nagyjából 15 perc, busszal pedig 3 megálló.

További információért keressen bizalommal akár hétvégén is, és tekintse meg az ingatlant személyesen!

Az OTP Ingatlanpont teljes körű ügyintézéssel segíti az eladókat és a vevőket egyaránt. (M320159)

59800000 Ft

Térkép

Ingatlan adásvétel ügyvédi díja
269 100 Ft
a hirdetésben szereplő ár alapján
  • A vételár 0,45%-a
  • Szerződéscsomag teljeskörű képviselettel
  • Ingyenes tulajdoni lap ellenőrzés
  • Az ÁFA-t már tartalmazza
Érdekel az ajánlat →
A tájékoztatás nem teljes körű és nem minősül ajánlattételnek. Minimum díj: 150 000 Ft, maximum díj: 600 000 Ft. A díj kizárólag lakóingatlan adásvételére vonatkozik.

A hirdető elérhetősége

Pécs Király utca 75/5 - OTP Ingatlanpont Iroda

Borvári Mária
+36 70 393