Eladó Lakás
Hirdetéskód: 9243835
Pécs Rákóczi út 19 - OTP Ingatlanpont Iroda
Ez a hirdetés megfelelhet a FIX 3%-os programnak.
Tudj meg többet a részletekről itt.
61.00 m2
ALAPTERÜLET1
SZOBASZÁMnincs megadva
ÉPÍTÉSnincs megadva
FŰTÉS- CSOK igénybe vehető nem
- Tetőtér beépíthető nem
- Építés éve 1974
- Klíma nem
- Szigetelt nem
A+++
A++
A+
A
B
C
D
E
F
G
H
I
Az ingatlan leírása
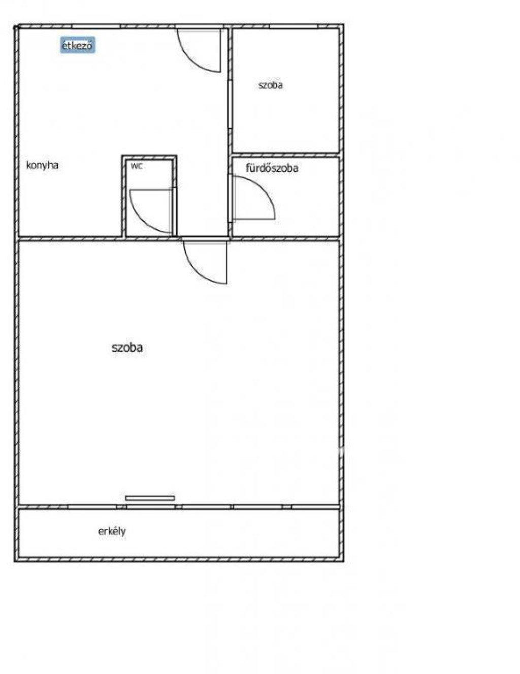
Eladó szigetelt tégla lakás Pécs-Ledinán!
Pécs kedvelt városrészén, Ledinán 61 nm-es, átalakított, 3. emeleti, nagy erkélyes tégla lakás várja új tulajdonosát.
Az átalakítás során az előszoba, konyha és étkező egybenyitásra került.
A lakás elrendezése:
-Egy kisebb hálószóba
-Egy nagy 30 nm-es nappali.
-6 nm-es keleti tájolású erkély.
-Nappali klímás, tölgyfa parkettás ,nagy műanyag ablakokkal rendelkezik ,erkélyajtó tolóajtós kialakítású.
-Felújított fürdőszoba sarokkáddal.
-Különálló WC.
-Acélbetétes biztonsági bejárati ajtó.
-Nyugati-keleti tájolása.
-Gázkonvektor fűtéses, gázbojler biztosítja a meleg vizet.
Otthon Start Hitelprogram
Amennyiben felkeltette érdeklődését az ingatlan, keressen bizalommal. M299292
41500000 Ft
Pécs kedvelt városrészén, Ledinán 61 nm-es, átalakított, 3. emeleti, nagy erkélyes tégla lakás várja új tulajdonosát.
Az átalakítás során az előszoba, konyha és étkező egybenyitásra került.
A lakás elrendezése:
-Egy kisebb hálószóba
-Egy nagy 30 nm-es nappali.
-6 nm-es keleti tájolású erkély.
-Nappali klímás, tölgyfa parkettás ,nagy műanyag ablakokkal rendelkezik ,erkélyajtó tolóajtós kialakítású.
-Felújított fürdőszoba sarokkáddal.
-Különálló WC.
-Acélbetétes biztonsági bejárati ajtó.
-Nyugati-keleti tájolása.
-Gázkonvektor fűtéses, gázbojler biztosítja a meleg vizet.
Otthon Start Hitelprogram
Amennyiben felkeltette érdeklődését az ingatlan, keressen bizalommal. M299292
41500000 Ft