Eladó Lakás
Hirdetéskód: 9189374
Pécs Király utca 75/5 - OTP Ingatlanpont Iroda
Felújításhoz személyi kölcsönt keres? Kalkuláljon itt! →50.00 m2
ALAPTERÜLET2
SZOBASZÁMnincs megadva
ÉPÍTÉSTávfűtés egyedi méréssel
FŰTÉS- CSOK igénybe vehető nem
- Tetőtér beépíthető nem
- Építés éve 1965
- Fűtés Távfűtés egyedi méréssel
- Klíma nem
- Szigetelt nem
A+++
A++
A+
A
B
C
D
E
F
G
H
I
Az ingatlan leírása
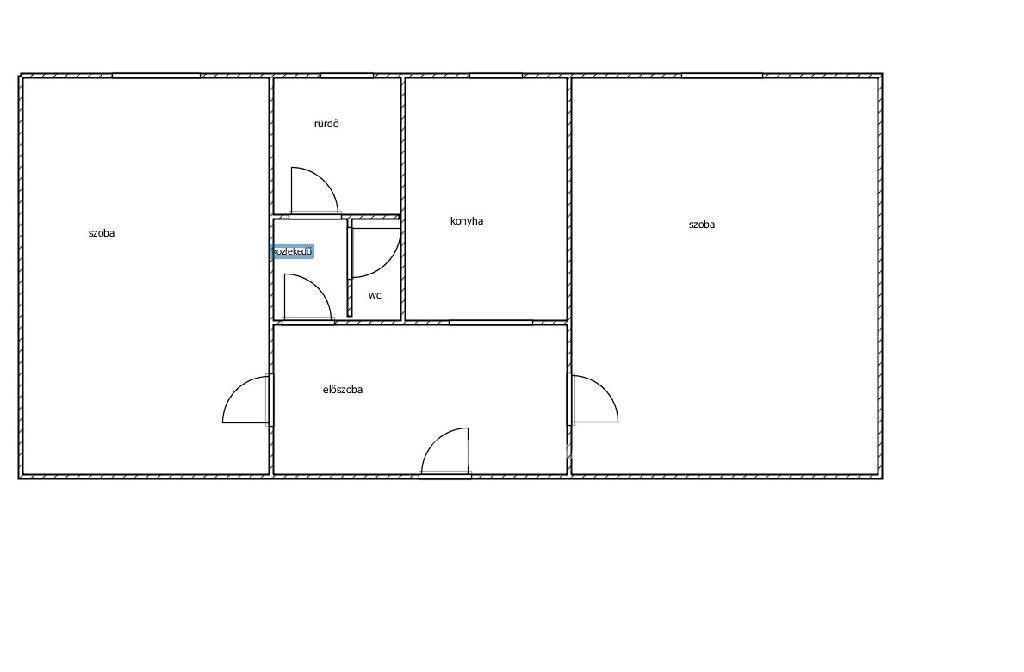
Eladó Pécs-Uránvárosban egy 2 szobás, második emeleti, 50 nm alapterületű lakás. A 3 emeletes társasház csúsztatott zsalus technológiával készült, mind a ház fala, mind a tető szigetelt, így kedvező hőkomfort és energiatakarékosság biztosított.
A lakás műanyag hőszigetelt ablakokkal rendelkezik, redőnnyel és szúnyoghálóval felszerelt, a bejárati ajtó széles, műanyag, a belső ajtók pedig egyedi gyártású fa ajtók. A fürdőszobában zuhanyzó található, a WC külön helyiségben van. Mindkét szobában klímaberendezés segíti a kellemes hőmérsékletet. A fűtés távfűtéses, egyedi mérővel mérve, így a rezsi jobb tervezhetősége adott.
Parkolási lehetőség ingyenes az épület környékén. A környék infrastruktúrája kiváló: iskola, óvoda, orvosi rendelő, boltok, üzletek és buszmegálló pár perc sétával elérhetők, ami nagyban megkönnyíti a mindennapi életet.
Amennyiben felkeltette érdeklődését ez az otthon, szívesen adok további információt vagy egyeztetünk megtekintési időpontot.
Otthon Start fix 3 %. hitel! OTP Bankhitelhez kapcsolódóan az OTP Ingatlanpont irodánk teljes körű tájékoztatást és ügyintézést vállal.
47900000 Ft
A lakás műanyag hőszigetelt ablakokkal rendelkezik, redőnnyel és szúnyoghálóval felszerelt, a bejárati ajtó széles, műanyag, a belső ajtók pedig egyedi gyártású fa ajtók. A fürdőszobában zuhanyzó található, a WC külön helyiségben van. Mindkét szobában klímaberendezés segíti a kellemes hőmérsékletet. A fűtés távfűtéses, egyedi mérővel mérve, így a rezsi jobb tervezhetősége adott.
Parkolási lehetőség ingyenes az épület környékén. A környék infrastruktúrája kiváló: iskola, óvoda, orvosi rendelő, boltok, üzletek és buszmegálló pár perc sétával elérhetők, ami nagyban megkönnyíti a mindennapi életet.
Amennyiben felkeltette érdeklődését ez az otthon, szívesen adok további információt vagy egyeztetünk megtekintési időpontot.
Otthon Start fix 3 %. hitel! OTP Bankhitelhez kapcsolódóan az OTP Ingatlanpont irodánk teljes körű tájékoztatást és ügyintézést vállal.
47900000 Ft