Eladó Lakás
Hirdetéskód: 9259476
Pécs Király utca 75/5 - OTP Ingatlanpont Iroda
Felújításhoz személyi kölcsönt keres? Kalkuláljon itt! →
Ez a hirdetés megfelelhet a FIX 3%-os programnak.
Tudj meg többet a részletekről itt.
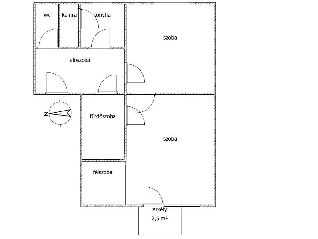
59.00 m2
ALAPTERÜLET2
SZOBASZÁMnincs megadva
ÉPÍTÉSnincs megadva
FŰTÉS- CSOK igénybe vehető nem
- Tetőtér beépíthető nem
- Építés éve 1960
- Klíma nem
- Szigetelt nem
A+++
A++
A+
A
B
C
D
E
F
G
H
I
Az ingatlan leírása
Belváros közeli, 3/3 emeleti (lift nincs) tégla, gáz fűtéses (konvektor), hűtő-fűtő klímával ellátott, gépesített tágas, világos lakás eladó.
Tiszta, rendezett lépcsőház, jó lakóközösség.
A lakástól kb. 10 perc gyalogtávon belül érhető el a vasútállomás, buszpályaudvar, Árkád és Széchenyi tér.
A lakás a Zsolnay-körforgalom alatt található, így számos buszjárat a közelben elérhető.
A lakás jó állapotú, a gépek folyamatosan karban tartottak. A vezetékek korszerűsítése 10 éven belül történt. Az ablakokat műanyagra cserélték redőnnyel ellátva. A lakáshoz saját alagsori tároló is tartozik.
A lakás bútorozottan, gépesítve eladó.
Jó adottságainak köszönhetően, családosoknak és egyetemistáknak is jó választás, illetve jó befektetési lehetőséget is kínál.
További információkért hívjon, nézze meg, tegyen egy ajánlatot hét végén is!
Az OTP INGATLANPONT teljes körű ügyintézéssel áll az eladók és a vevők rendelkezésére! A megvásárolni kívánt ingatlan finanszírozásához a CSOK-pluszt, a Babaváró hitelt, a START hitelt (3 %), a kedvezményes hitelkonstrukciókat helyben ingyenesen intézzük. Az adásvételi szerződés megkötéséhez igény szerint megbízható ügyvédi közreműködést, az energetikai tanúsítvány elkészítéséhez energetikust biztosítunk, segítséget nyújtunk az adásvételhez kapcsolódó ügyintézésben az ajánlattételtől a birtokba lépésig. Várom hívását a hét minden napján, megtekintést rugalmasan egyeztetek.
Referenciaszám: M321363
54900000 Ft
Tiszta, rendezett lépcsőház, jó lakóközösség.
A lakástól kb. 10 perc gyalogtávon belül érhető el a vasútállomás, buszpályaudvar, Árkád és Széchenyi tér.
A lakás a Zsolnay-körforgalom alatt található, így számos buszjárat a közelben elérhető.
A lakás jó állapotú, a gépek folyamatosan karban tartottak. A vezetékek korszerűsítése 10 éven belül történt. Az ablakokat műanyagra cserélték redőnnyel ellátva. A lakáshoz saját alagsori tároló is tartozik.
A lakás bútorozottan, gépesítve eladó.
Jó adottságainak köszönhetően, családosoknak és egyetemistáknak is jó választás, illetve jó befektetési lehetőséget is kínál.
További információkért hívjon, nézze meg, tegyen egy ajánlatot hét végén is!
Az OTP INGATLANPONT teljes körű ügyintézéssel áll az eladók és a vevők rendelkezésére! A megvásárolni kívánt ingatlan finanszírozásához a CSOK-pluszt, a Babaváró hitelt, a START hitelt (3 %), a kedvezményes hitelkonstrukciókat helyben ingyenesen intézzük. Az adásvételi szerződés megkötéséhez igény szerint megbízható ügyvédi közreműködést, az energetikai tanúsítvány elkészítéséhez energetikust biztosítunk, segítséget nyújtunk az adásvételhez kapcsolódó ügyintézésben az ajánlattételtől a birtokba lépésig. Várom hívását a hét minden napján, megtekintést rugalmasan egyeztetek.
Referenciaszám: M321363
54900000 Ft