Eladó Lakás
Hirdetéskód: 9305629

Great Home - Pécs

Felújításhoz személyi kölcsönt keres? Kalkuláljon itt! →
FIX 3% Program

Ez a hirdetés megfelelhet a FIX 3%-os programnak.
Tudj meg többet a részletekről itt.

54.00 m2
ALAPTERÜLET
2
SZOBASZÁM
nincs megadva
ÉPÍTÉS
Távfűtés
FŰTÉS
  • CSOK igénybe vehető nem
  • Tetőtér beépíthető nem
  • Fűtés Távfűtés
  • Klíma nem
  • Szigetelt nem
Energetikai besorolás: Nincs meghatározva
A+++
A++
A+
A
B
C
D
E
F
G
H
I

Az MBH Bank személyi kölcsön ajánlata

Fizetett hirdetés
1 millió Ft
6 évre
20 585 Ft/hó
THM: 14.5%
Részletek →
2 millió Ft
6 évre
41 169 Ft/hó
THM: 14.5%
Részletek →
3 millió Ft
6 évre
61 754 Ft/hó
THM: 14.5%
Részletek →

A tájékoztatás nem teljes körű és nem minősül ajánlattételnek.

Az ingatlan leírása

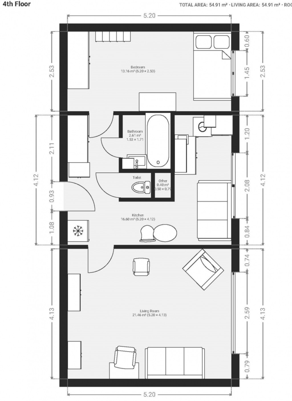
Pécs- Kertváros nyugodt és közkedvelt részén eladó egy 4 emeletes társasház 4. emeletén elhelyezkedő, 2 külön nyíló szobás, 54 m2- es, jó állapotú panellakás.

A lakásról:

- Nyílászárói már műanyagok, redőnnyel felszerelve.
- Fürdőszobája az elmúlt 10 évben fel lett újítva, fürdőkád cserélve.
- A szobák melegburkolata jó állapotú
- A közlekedő és konyha hidegburkolata már cserére javasolt.
- A lakás ablakai délnyugatra néznek zöld területre és a Mecsekre rálátással.
- Közös, 10 m2- es tároló van az alagsorban.

Az ingatlantól gyalog távolságra van Lidl, Spar és közvetlenül a ház mellett található a Malomvölgybe vezető biciklis út is.
A lakásban jelenleg korrekt bérlő van, aki szívesen maradna, amennyiben az új tulajdonosnak befektetési célja van.

Amennyiben felkeltette érdeklődését, keressen bizalommal!


Térkép

Ingatlan adásvétel ügyvédi díja
188 550 Ft
a hirdetésben szereplő ár alapján
  • A vételár 0,45%-a
  • Szerződéscsomag teljeskörű képviselettel
  • Ingyenes tulajdoni lap ellenőrzés
  • Az ÁFA-t már tartalmazza
Érdekel az ajánlat →
A tájékoztatás nem teljes körű és nem minősül ajánlattételnek. Minimum díj: 150 000 Ft, maximum díj: 600 000 Ft. A díj kizárólag lakóingatlan adásvételére vonatkozik.

A hirdető elérhetősége

Great Home - Pécs

Somogyiné Sztanics Rózsa
+36 20 399