Eladó Lakás
Hirdetéskód: 9201690
Great Home - Pécs
Ez a hirdetés megfelelhet a FIX 3%-os programnak.
Tudj meg többet a részletekről itt.
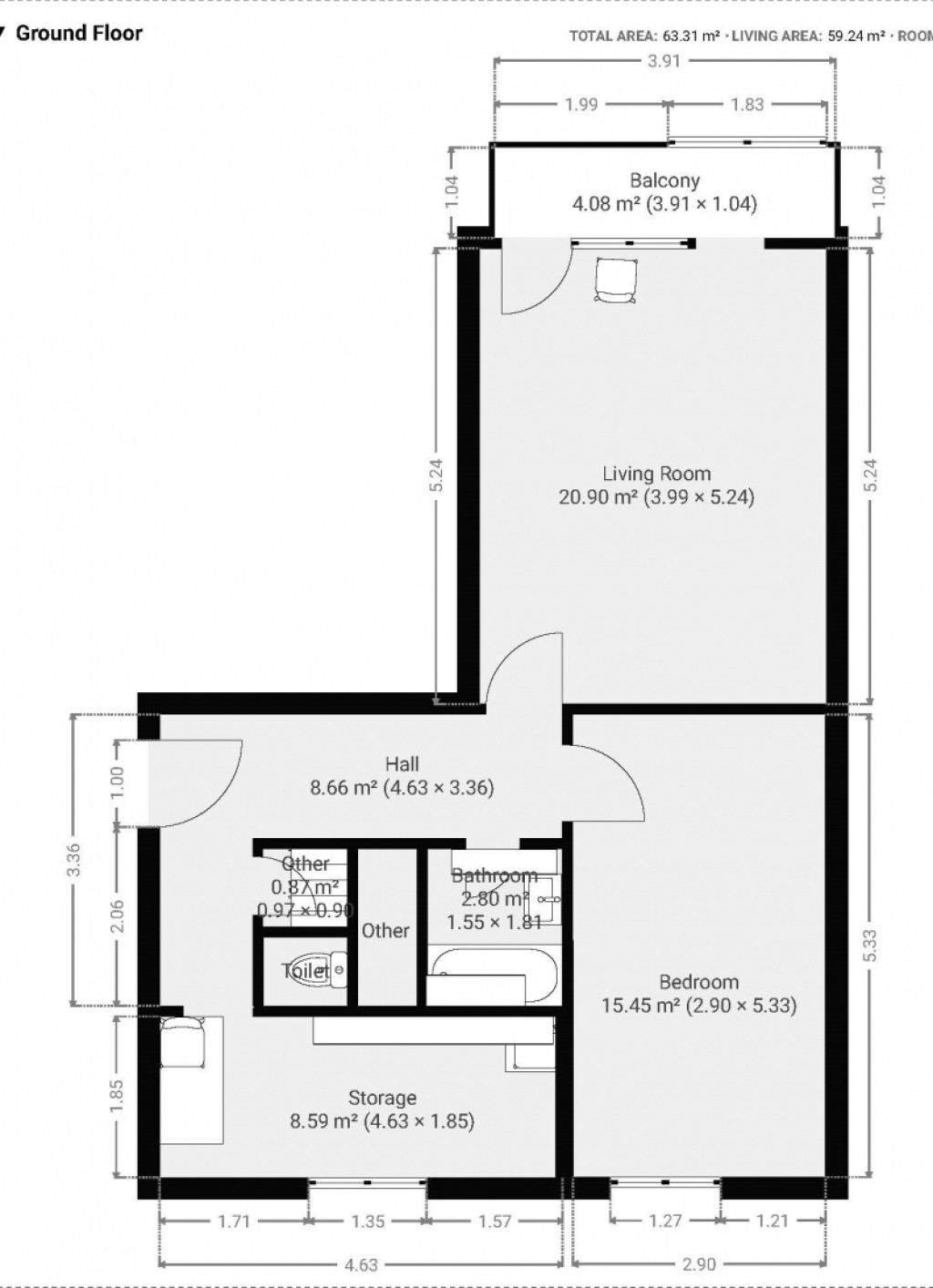
60.00 m2
ALAPTERÜLET2
SZOBASZÁMnincs megadva
ÉPÍTÉSTávfűtés
FŰTÉS- CSOK igénybe vehető nem
- Tetőtér beépíthető nem
- Fűtés Távfűtés
- Klíma nem
- Szigetelt nem
A+++
A++
A+
A
B
C
D
E
F
G
H
I
Az ingatlan leírása
Pécs- Zsolnay negyed mellett eladó egy 3. emeleti, 60 m2 -es, két külön nyíló szobás, erkélyes, jó állapotú téglalakás!
Tökéletes befektetési lehetőséget rejt magában ez a belvároshoz közel elhelyezkedő ingatlan, de első lakásnak is ajánlom.
Fűtését távhő biztosítja a melegvízzel együtt.
Nyílászárói műanyagok, burkolatai jó állapotú laminált parketta és járólap.
Közelben minden fontos kiszolgáló egység és kikapcsolódási lehetőség megtalálható (Aldi, benzinkút, hentes, Zsolnay negyed, stb.). Gyalogosan 20 perc alatt beérünk a Király utcába!
Amennyiben felkeltette érdeklődését, keressen bizalommal!
Tökéletes befektetési lehetőséget rejt magában ez a belvároshoz közel elhelyezkedő ingatlan, de első lakásnak is ajánlom.
Fűtését távhő biztosítja a melegvízzel együtt.
Nyílászárói műanyagok, burkolatai jó állapotú laminált parketta és járólap.
Közelben minden fontos kiszolgáló egység és kikapcsolódási lehetőség megtalálható (Aldi, benzinkút, hentes, Zsolnay negyed, stb.). Gyalogosan 20 perc alatt beérünk a Király utcába!
Amennyiben felkeltette érdeklődését, keressen bizalommal!