Eladó Lakás
Hirdetéskód: 9190263
Pécs Rákóczi út 19 - OTP Ingatlanpont Iroda
Ez a hirdetés megfelelhet a FIX 3%-os programnak.
Tudj meg többet a részletekről itt.
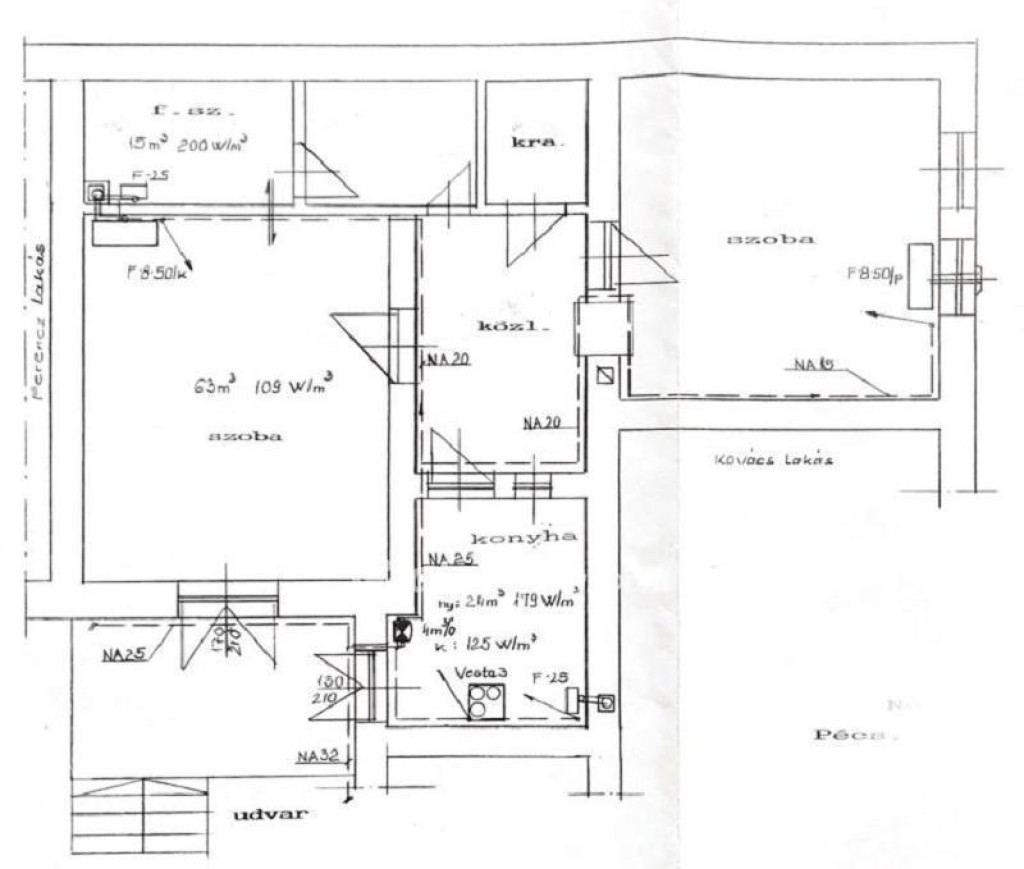
71 m2
ALAPTERÜLET2
SZOBASZÁMnincs megadva
ÉPÍTÉSnincs megadva
FŰTÉS- CSOK igénybe vehető nem
- Tetőtér beépíthető nem
- Építés éve 1940
- Klíma nem
- Szigetelt nem
A+++
A++
A+
A
B
C
D
E
F
G
H
I
Az ingatlan leírása
Földszinti 2 szobás 71 négyzetméteres tégla lakás eladó Pécs belvárosában!
A felújítandó udvari lakás nagy előnye, hogy csendes. A Széchenyi tértől gyalog 5 perc távolságra van. A Pécsi Orvostudományi Egyetem gyalog 10 percre. A Jogi-Közgazdasági egyetem 3 buszmegállóra van. Az utca felé ki lehet nyitni a falat, ezáltal irodának, rendelőnek, Stb. kiválóan használható. Befektetésnek is kiváló. Teljes közmű van. Boltok iskolák bevásárlási lehetőségek vannak a közelben. Az udvarban ingyen lehet parkolni, a kapu mindig zárva van. Tároló és pince is jár hozzá. Az Otthon start programban is részt vesz (3%)
Referenciaszám: M314908
A felújítandó udvari lakás nagy előnye, hogy csendes. A Széchenyi tértől gyalog 5 perc távolságra van. A Pécsi Orvostudományi Egyetem gyalog 10 percre. A Jogi-Közgazdasági egyetem 3 buszmegállóra van. Az utca felé ki lehet nyitni a falat, ezáltal irodának, rendelőnek, Stb. kiválóan használható. Befektetésnek is kiváló. Teljes közmű van. Boltok iskolák bevásárlási lehetőségek vannak a közelben. Az udvarban ingyen lehet parkolni, a kapu mindig zárva van. Tároló és pince is jár hozzá. Az Otthon start programban is részt vesz (3%)
Referenciaszám: M314908