Eladó Lakás
Hirdetéskód: 9311281

Győr Bajcsy-Zsilinszky út 27 - OTP Ingatlanpont Iroda

Felújításhoz személyi kölcsönt keres? Kalkuláljon itt! →
FIX 3% Program

Ez a hirdetés megfelelhet a FIX 3%-os programnak.
Tudj meg többet a részletekről itt.

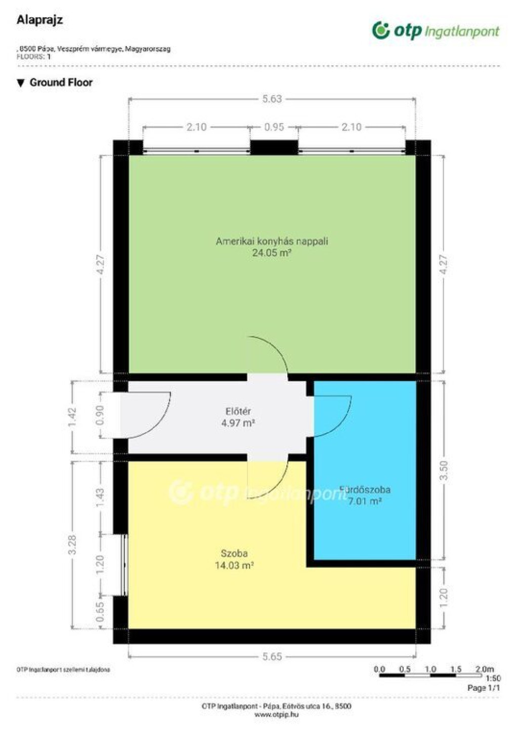
48.00 m2
ALAPTERÜLET
2
SZOBASZÁM
nincs megadva
ÉPÍTÉS
Gáz (cirkó)
FŰTÉS
  • CSOK igénybe vehető nem
  • Tetőtér beépíthető nem
  • Építés éve 1989
  • Fűtés Gáz (cirkó)
  • Klíma nem
  • Szigetelt nem
Energetikai besorolás: Nincs meghatározva
A+++
A++
A+
A
B
C
D
E
F
G
H
I

Az MBH Bank személyi kölcsön ajánlata

Fizetett hirdetés
1 millió Ft
6 évre
20 585 Ft/hó
THM: 14.5%
Részletek →
2 millió Ft
6 évre
41 169 Ft/hó
THM: 14.5%
Részletek →
3 millió Ft
6 évre
61 754 Ft/hó
THM: 14.5%
Részletek →

A tájékoztatás nem teljes körű és nem minősül ajánlattételnek.

Az ingatlan leírása

Eladásra kínálok Veszprém vármegyében, Pápa belvárosának közelében egy 48,64 m2-es tégla építésű társas házi földszinti lakást. Ez az ingatlan ideális választás azok számára, akik kényelmes és praktikus otthont keresnek a város központjában. A belváros minden fontos helyszíne pár perces sétával elérhető, így mindig könnyen hozzáférhetők a szolgáltatások és a szórakozási lehetőségek, valamint a boltok, posta, bevásárló központok, stb. A kitűnő elhelyezkedésű, igényesen felújított, lakás elosztás szempontjából, nappaliból és konyhából valamint hozzá kapcsolódó étkezőből, 1 tágas szobából, közlekedőből, fürdőszobából, WC-ből áll. Az ingatlanhoz egy tároló és egy térkövezett, fedetlen kocsibeálló is tartozik az udvarban. A konyha teljesen gépesített: hűtőgép, mosogatógép, villanytűzhely található benne. A fürdőszobában fürdőkád és zuhanykabin valamint mosógép is rendelkezésre áll. Az előszobában praktikus beépített szekrények vannak. Az eladás részeként a gépek és a bútorzat is benne foglaltatik az árban, így az új tulajdonos azonnal élvezheti a kényelmet és praktikusságot. A lakásban riasztórendszer is felszerelésre került. Az ingatlan rendkívül igényes, jó minőségű anyagokkal lett felújítva, modern, ízléses bútorokkal van berendezve. A szobák parketta burkolatúak, a többi helyiség járólap borítású. A kiváló állapotú lakás energiatakarékos és fenntarthatósága már most költséghatékony. Hideg téli napokon a fűtésről elektromos fűtés gondoskodik, padlófűtéses hőleadással illetve egy nappaliban található hűtő-fűtő klíma teszik komfortossá a hőmérsékletet a lakásban. A meleg víz ellátást villanybojler biztosítja, H tarifás elszámolással. A lakás új, modern műanyag kivitelű nyílászárókkal ellátott, amelyek redőnnyel felszerelek. Az épület statikailag kiváló állapotú, a csendes és barátságos lakóközösség pedig biztosítja a nyugodt és harmonikus környezetet. Ajánlom mindenkinek, aki nyugodt környezetben szeretné mindennapjait tölteni, közel a bevásárlóközponthoz, boltokhoz egy tökéletes ingatlanban. Ez a lakás kiváló lehetőség lakhatás céljára vagy akár irodának vagy bérbeadás céljából is. Az első lakást választók számára is ajánlom, de a jó fekvése miatt ideális lehetőséget nyújt akár vállalkozásra is, így befektetésnek is kiváló. Ha kényelmes és praktikus otthont szeretne a belvárosban vagy vállalkozást ne hagyja ki ezt a lehetőséget! Legyen az első, aki megszerzi ezt a kiváló lakást a belvárosban! Ha további információra lenne szüksége, vagy kérdése lenne, ne habozzon keressen bizalommal!
Energetikai tanusítvány nem áll rendelkezésre.
Az OTP Ingatlanpont teljes körű ügyintézéssel áll az eladók és a vevők rendelkezésére. A kínálatunkból választott ingatlan finanszírozásához kedvezményes hitelkonstrukciót kínálunk. Az adásvételi szerződés megkötéséhez igény szerint megbízható ügyvédi közreműködést biztosítunk, és segítséget nyújtunk az adásvételhez kapcsolódó ügyek intézéséhez is. A hirdetési szöveg és képek az OTP Ingatlanpont tulajdona.

Térkép

Ingatlan adásvétel ügyvédi díja
194 805 Ft
a hirdetésben szereplő ár alapján
  • A vételár 0,45%-a
  • Szerződéscsomag teljeskörű képviselettel
  • Ingyenes tulajdoni lap ellenőrzés
  • Az ÁFA-t már tartalmazza
Érdekel az ajánlat →
A tájékoztatás nem teljes körű és nem minősül ajánlattételnek. Minimum díj: 150 000 Ft, maximum díj: 600 000 Ft. A díj kizárólag lakóingatlan adásvételére vonatkozik.

A hirdető elérhetősége

Győr Bajcsy-Zsilinszky út 27 - OTP Ingatlanpont Iroda

Bors Andrea
+36 30 372