Eladó Lakás
Hirdetéskód: 9247727
OTP Ingatlanpont Csongrád
Felújításhoz személyi kölcsönt keres? Kalkuláljon itt! →
Ez a hirdetés megfelelhet a FIX 3%-os programnak.
Tudj meg többet a részletekről itt.
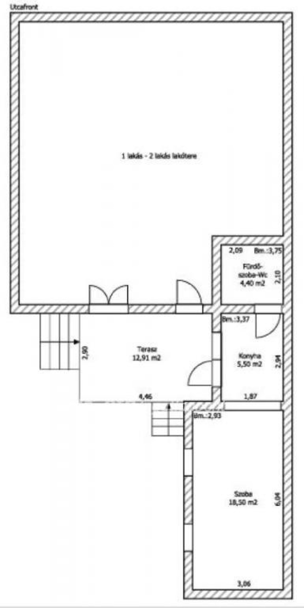
43.00 m2
ALAPTERÜLET1
SZOBASZÁMnincs megadva
ÉPÍTÉSEgyéb fűtés
FŰTÉS- CSOK igénybe vehető nem
- Tetőtér beépíthető nem
- Építés éve 1970
- Fűtés Egyéb fűtés
- Klíma nem
- Szigetelt nem
A+++
A++
A+
A
B
C
D
E
F
G
H
I
Az ingatlan leírása
ELADÓ OROSHÁZA BELVÁROSÁBAN FELÚJÍTANDÓ, OLCSÓ LAKÁS!
Kivételes LEHETŐSÉG Orosháza SZÍVÉBEN! Amennyiben saját igényei szerint szeretné kialakítani leendő OTTHONÁT, vagy kiváló ÁRON vásárolna befektetési célból, EZ az 1 SZOBÁS LAKÁS (házrész) Önre vár! Az INGATLAN az ÖNKORMÁNYZAT közvetlen SZOMSZÉDSÁGÁBAN, praktikus ELHELYEZKEDÉSSEL várja új tulajdonosát!
A lakáshoz tartozik egy KÖZÖS HASZNÁLATÚ UDVAR, ahol GÉPKOCSI-BEÁLLÓ, valamint SAJÁT KAMRA is rendelkezésre áll. Az INGATLAN BANKI TULAJDON, teljes FELÚJÍTÁSRA szorul, ezért azok figyelmébe ajánljuk, akik saját elképzeléseiket szeretnék megvalósítani ALACSONY VÉTELÁRON.
Fontos KIEMELNI, hogy a VILLANYÓRA és GÁZÓRA, valamint a CSAPTELEPEK jelenleg leszereltek, tehát az ingatlanban NINCS FŰTÉS, MELEGVÍZ-ELLÁTÁS, ÁRAMELLÁTÁS vagy VÍZVÉTELI LEHETŐSÉG. Ezáltal teljes felújítás szükséges, illetve az infrastruktúra visszaállítása új tulajdonosra vár.
BEFEKTETŐK, FIATALOK, IDŐSEK vagy akár ELSŐ OTTHONRA vágyók számára KIVÁLÓ lehetőség, hogy kedvező ÁRON juthassanak OROSHÁZA frekventált részén saját INGATLANHOZ.
A lakás ELŐRE EGYEZTETETT IDŐPONTBAN megtekinthető. NE HAGYJA KI ezt az egyedi OROSHÁZAI ajánlatot!
Kivételes LEHETŐSÉG Orosháza SZÍVÉBEN! Amennyiben saját igényei szerint szeretné kialakítani leendő OTTHONÁT, vagy kiváló ÁRON vásárolna befektetési célból, EZ az 1 SZOBÁS LAKÁS (házrész) Önre vár! Az INGATLAN az ÖNKORMÁNYZAT közvetlen SZOMSZÉDSÁGÁBAN, praktikus ELHELYEZKEDÉSSEL várja új tulajdonosát!
A lakáshoz tartozik egy KÖZÖS HASZNÁLATÚ UDVAR, ahol GÉPKOCSI-BEÁLLÓ, valamint SAJÁT KAMRA is rendelkezésre áll. Az INGATLAN BANKI TULAJDON, teljes FELÚJÍTÁSRA szorul, ezért azok figyelmébe ajánljuk, akik saját elképzeléseiket szeretnék megvalósítani ALACSONY VÉTELÁRON.
Fontos KIEMELNI, hogy a VILLANYÓRA és GÁZÓRA, valamint a CSAPTELEPEK jelenleg leszereltek, tehát az ingatlanban NINCS FŰTÉS, MELEGVÍZ-ELLÁTÁS, ÁRAMELLÁTÁS vagy VÍZVÉTELI LEHETŐSÉG. Ezáltal teljes felújítás szükséges, illetve az infrastruktúra visszaállítása új tulajdonosra vár.
BEFEKTETŐK, FIATALOK, IDŐSEK vagy akár ELSŐ OTTHONRA vágyók számára KIVÁLÓ lehetőség, hogy kedvező ÁRON juthassanak OROSHÁZA frekventált részén saját INGATLANHOZ.
A lakás ELŐRE EGYEZTETETT IDŐPONTBAN megtekinthető. NE HAGYJA KI ezt az egyedi OROSHÁZAI ajánlatot!