Eladó Lakás
Hirdetéskód: 9238716
Pécs Rákóczi út 19 - OTP Ingatlanpont Iroda
102 m2
ALAPTERÜLET4
SZOBASZÁMnincs megadva
ÉPÍTÉSnincs megadva
FŰTÉS- CSOK igénybe vehető nem
- Tetőtér beépíthető nem
- Építés éve 2023
- Klíma nem
- Szigetelt nem
A+++
A++
A+
A
B
C
D
E
F
G
H
I
Az ingatlan leírása
ELADÓ !ÖKOVILLA! ORFŰN
A tér minden centimétere átgondoltan maximalizálva, ez a vidéki otthon a gazdaságosság, a funkcionalitás és a józanész iránti elkötelezettséget tükrözi, anélkül, hogy az esztétikát veszélyeztetné.
(
Az orfűi ökovilla tökéletes választás azoknak, akik modern és kényelmes otthonra vágynak vidéki környezetben, csodálatos panorámával és minimális környezeti lábnyommal. (
Ez az ökovilla a Dél-Dunántúl legszélesebb körű kikapcsolódási lehetőségeit nyújtó Orfű központjától néhány száz méterre, a Naposdomb egyik csendes zsákutcájában várja új tulajdonosát!
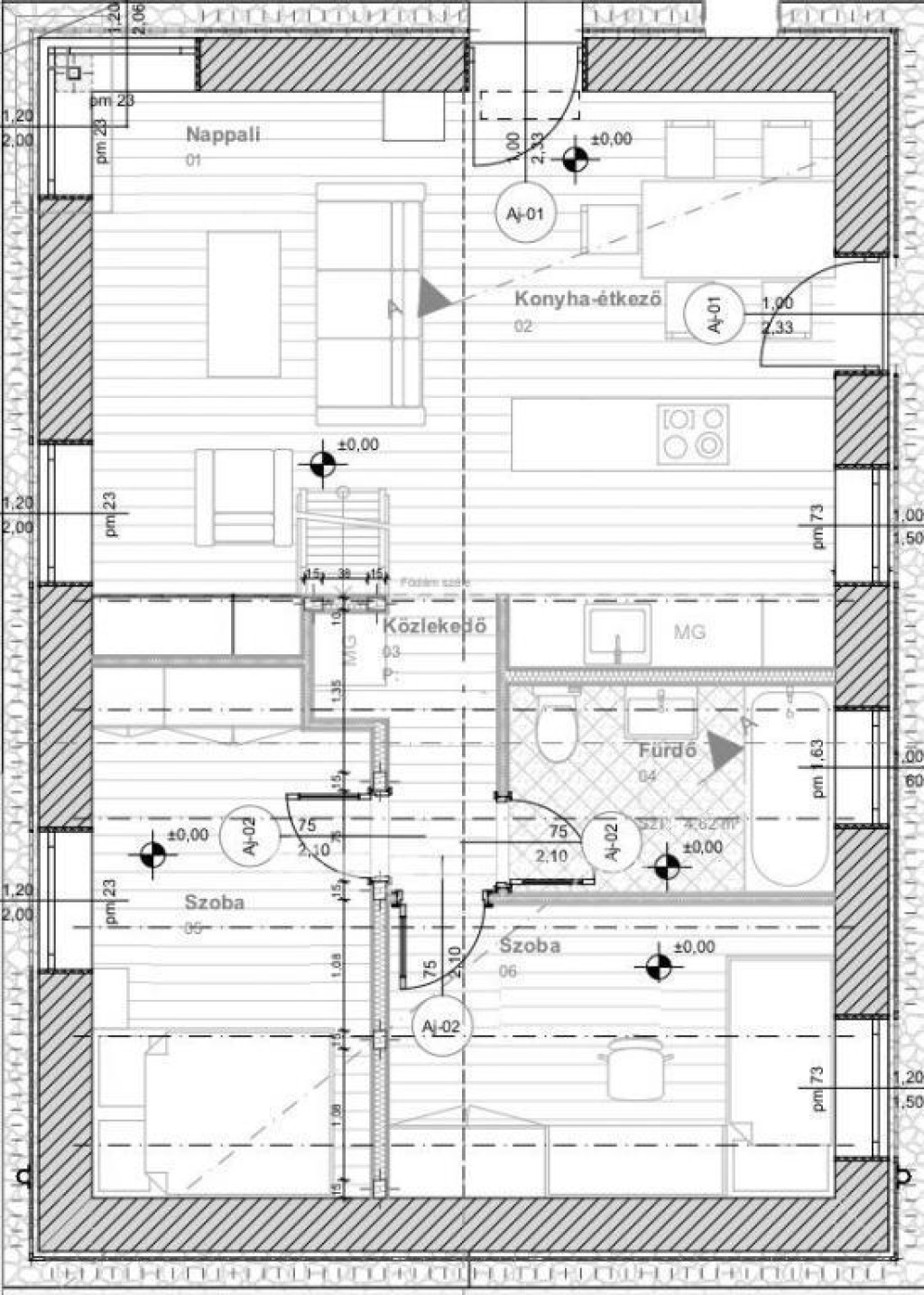
A 86 négyzetméter lakóterületű kétszintes családi 1133 m2-es, örök-körpanorámás telekre épült.
A földszinten egy tágas, 30 négyzetméteres skandináv konyhás, étkezős, 6 méter belmagasságú, galériás nappali található. Innen egy közlekedő folyosón keresztül érhető el két hálószoba és a fürdő.
A harmadik szoba a lakóblokk fölötti részen, a 30 négyzetméteres galérián került kialakításra.
Az épülethez kapcsolódik egy 32 négyzetméteres panorámaterasz, alatta gépkocsi beállóval.
Az épület kivitelezésének első pillanatától kezdve a legfontosabb szempontok között szerepelt a minimális környezeti lábnyom, melyet a lakóház teljes életciklusára vetítve vettek figyelembe.
A nagy gonddal megtervezett és megépített, praktikus elrendezésű, nagyon világos, pajta stílusú épület ötvözi a hagyományos falusi környezetbe szerves módon illeszkedő, nyers, természetes anyagú külső megjelenést (borovi fenyő homlokzatburkolat, helyi kőfejtőből származó külső térburkolatok) a legmodernebb falazati és hőszigetelési technológiákkal (Porotherm X-Therm 44 Profi DryFix tégla, üveggyapot hő- és hangszigetelések).
Az elenyésző rezsiköltségekkel rendelkező, közel nulla energiaigényű lakóház fűtéséről és hűtéséről levegő-levegő hőszivattyú gondoskodik, melyhez bővítési lehetőséggel kialakított, szaldós elszámolású napelemes rendszer kapcsolódik.
A melegvíz-ellátást a 150 literes Bosch bojler biztosítja.
A konyha tartozéka, a beépített mosogatógép, a kerámialapos főzőlap és az elektromos sütő.
Az épület környezetének megfigyelésére iCSee kamerarendszert építettek ki.
A környék csendes és nagyon biztonságos, kiválóan ellátott. Három perc sétával érhető el Orfű központja, ahol orvosi és fogorvosi rendelők, gyógyszertár, posta, vasárnap is nyitva tartó vegyesbolt, helyitermékbolt, autóbuszmegálló és több kiváló vendéglátóhely is található.
A tömegközlekedés jó, sűrű buszjáratokkal.
Pécs közelsége, a Mecsek, a számtalan látnivaló és az itt található tavak egész évben milliónyi kikapcsolódási lehetőséget biztosítnak.
Ha megnyerte a tetszését az ingatlan, hívjon vagy írjon a megadott elérhetőségeken! (M319791)
119900000 Ft
A tér minden centimétere átgondoltan maximalizálva, ez a vidéki otthon a gazdaságosság, a funkcionalitás és a józanész iránti elkötelezettséget tükrözi, anélkül, hogy az esztétikát veszélyeztetné.
(
Az orfűi ökovilla tökéletes választás azoknak, akik modern és kényelmes otthonra vágynak vidéki környezetben, csodálatos panorámával és minimális környezeti lábnyommal. (
Ez az ökovilla a Dél-Dunántúl legszélesebb körű kikapcsolódási lehetőségeit nyújtó Orfű központjától néhány száz méterre, a Naposdomb egyik csendes zsákutcájában várja új tulajdonosát!
A 86 négyzetméter lakóterületű kétszintes családi 1133 m2-es, örök-körpanorámás telekre épült.
A földszinten egy tágas, 30 négyzetméteres skandináv konyhás, étkezős, 6 méter belmagasságú, galériás nappali található. Innen egy közlekedő folyosón keresztül érhető el két hálószoba és a fürdő.
A harmadik szoba a lakóblokk fölötti részen, a 30 négyzetméteres galérián került kialakításra.
Az épülethez kapcsolódik egy 32 négyzetméteres panorámaterasz, alatta gépkocsi beállóval.
Az épület kivitelezésének első pillanatától kezdve a legfontosabb szempontok között szerepelt a minimális környezeti lábnyom, melyet a lakóház teljes életciklusára vetítve vettek figyelembe.
A nagy gonddal megtervezett és megépített, praktikus elrendezésű, nagyon világos, pajta stílusú épület ötvözi a hagyományos falusi környezetbe szerves módon illeszkedő, nyers, természetes anyagú külső megjelenést (borovi fenyő homlokzatburkolat, helyi kőfejtőből származó külső térburkolatok) a legmodernebb falazati és hőszigetelési technológiákkal (Porotherm X-Therm 44 Profi DryFix tégla, üveggyapot hő- és hangszigetelések).
Az elenyésző rezsiköltségekkel rendelkező, közel nulla energiaigényű lakóház fűtéséről és hűtéséről levegő-levegő hőszivattyú gondoskodik, melyhez bővítési lehetőséggel kialakított, szaldós elszámolású napelemes rendszer kapcsolódik.
A melegvíz-ellátást a 150 literes Bosch bojler biztosítja.
A konyha tartozéka, a beépített mosogatógép, a kerámialapos főzőlap és az elektromos sütő.
Az épület környezetének megfigyelésére iCSee kamerarendszert építettek ki.
A környék csendes és nagyon biztonságos, kiválóan ellátott. Három perc sétával érhető el Orfű központja, ahol orvosi és fogorvosi rendelők, gyógyszertár, posta, vasárnap is nyitva tartó vegyesbolt, helyitermékbolt, autóbuszmegálló és több kiváló vendéglátóhely is található.
A tömegközlekedés jó, sűrű buszjáratokkal.
Pécs közelsége, a Mecsek, a számtalan látnivaló és az itt található tavak egész évben milliónyi kikapcsolódási lehetőséget biztosítnak.
Ha megnyerte a tetszését az ingatlan, hívjon vagy írjon a megadott elérhetőségeken! (M319791)
119900000 Ft