Eladó Lakás
Hirdetéskód: 9266692
Nyíregyháza Dózsa György út 32-34 - OTP Ingatlanpont Iroda
55.00 m2
ALAPTERÜLET2
SZOBASZÁMnincs megadva
ÉPÍTÉSnincs megadva
FŰTÉS- CSOK igénybe vehető nem
- Tetőtér beépíthető nem
- Építés éve 1980
- Klíma nem
- Szigetelt nem
A+++
A++
A+
A
B
C
D
E
F
G
H
I
Az ingatlan leírása
Eladó erkélyes, 2 szobás lakás Nyíregyházán , kiváló elhelyezkedéssel!
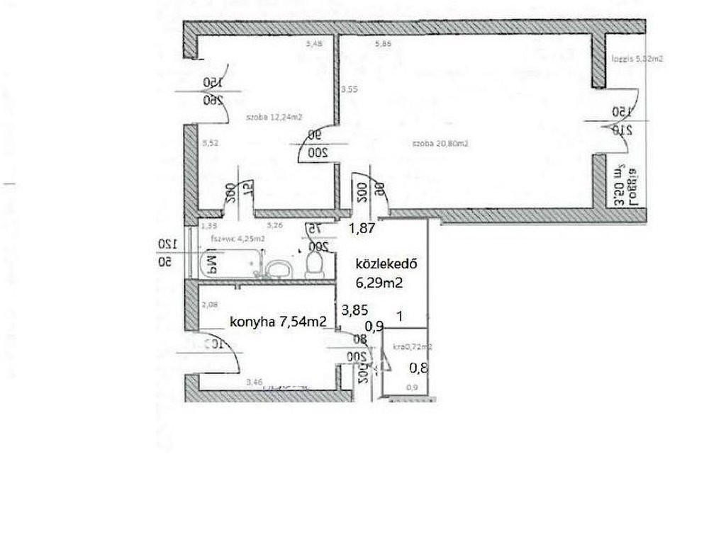
Szabolcs-Szatmár-Bereg vármegye székhelyén, Nyíregyházán eladó egy szigetelt, 5 emeletes társasház 2. emeletén egy 55 m2-es, kiváló elosztású lakás.
Az ingatlan 1980-ban épült, 2 szobás, erkélyes , műanyag nyílászárókkal és redőnnyel felszerelt. A lakás különlegessége, hogy a kisebb szobába a fürdőszobából is nyílik ajtó, ami ritka és praktikus megoldás.
Az elhelyezkedés rendkívül előnyös: Nyíregyháza mindkét egyeteme rövid sétatávolságra található, így saját részre és befektetésnek is ideális.
A társasház rendezett lépcsőházzal rendelkezik. A környéken az állandó bejelentett lakosok számára az éves parkolási díj mindössze 6 000 Ft.
Az ingatlan alkalmas Otthon Start Hitel igénybevételére, így kiváló lehetőség első lakásvásárlók számára is.
Főbb jellemzők:
55 m2 , 2 szoba + erkély második emelet, szigetelt társasház, műanyag nyílászárók, redőnnyel felszerelve.
Az egyetemek közvetlen közelében található az épület.
Amennyiben a hirdetés felkeltette érdeklődését, várom megtisztelő hívását.
Szabolcs-Szatmár-Bereg vármegye székhelyén, Nyíregyházán eladó egy szigetelt, 5 emeletes társasház 2. emeletén egy 55 m2-es, kiváló elosztású lakás.
Az ingatlan 1980-ban épült, 2 szobás, erkélyes , műanyag nyílászárókkal és redőnnyel felszerelt. A lakás különlegessége, hogy a kisebb szobába a fürdőszobából is nyílik ajtó, ami ritka és praktikus megoldás.
Az elhelyezkedés rendkívül előnyös: Nyíregyháza mindkét egyeteme rövid sétatávolságra található, így saját részre és befektetésnek is ideális.
A társasház rendezett lépcsőházzal rendelkezik. A környéken az állandó bejelentett lakosok számára az éves parkolási díj mindössze 6 000 Ft.
Az ingatlan alkalmas Otthon Start Hitel igénybevételére, így kiváló lehetőség első lakásvásárlók számára is.
Főbb jellemzők:
55 m2 , 2 szoba + erkély második emelet, szigetelt társasház, műanyag nyílászárók, redőnnyel felszerelve.
Az egyetemek közvetlen közelében található az épület.
Amennyiben a hirdetés felkeltette érdeklődését, várom megtisztelő hívását.