Eladó Lakás
Hirdetéskód: 9204785
Nyíregyháza Dózsa György út 32-34 - OTP Ingatlanpont Iroda
51 m2
ALAPTERÜLET2
SZOBASZÁMnincs megadva
ÉPÍTÉSnincs megadva
FŰTÉS- CSOK igénybe vehető nem
- Tetőtér beépíthető nem
- Építés éve 1980
- Klíma nem
- Szigetelt nem
A+++
A++
A+
A
B
C
D
E
F
G
H
I
Az ingatlan leírása
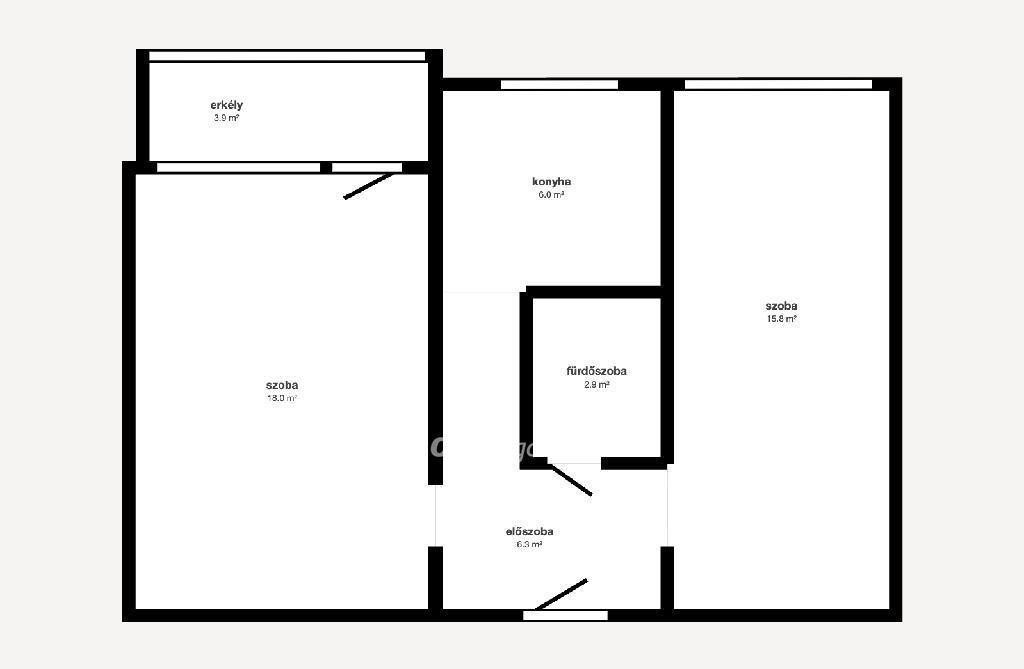
Eladásra kínálok egy 51 nm-es, 9. emeleti panel lakást Nyíregyháza csendes környékén.
A lakás két szobával, konyhával, fürdőszobával, előszobával és erkéllyel rendelkezik. A rezsi alacsony, így kiváló választás lehet fiatal pároknak, egyedülállóknak vagy befektetőknek.
A lakás jó állapotú, mindössze egy tisztasági festést igényel.
A ház zárt lépcsőházas, teher- és személylifttel is felszerelt, rendezett, biztonságos lakóközösséggel és barátságos szomszédokkal.
A környék csendes és nyugodt, kiváló infrastruktúrával: bolt, óvoda, játszótér és focipálya is található a közelben, minden elérhető távolságban.
OTP Banki hátterünknek köszönhetően finanszírozási igényekben (pl. Otthon Start Hitelprogram, Babaváró, Falusi CSOK, CSOK Plusz, Lakáshitel, Személyi kölcsön stb.), illetve biztosítások tekintetében is díjmentesen, soron kívüli ügyintézéssel segítem ügyfeleim!
A lakás két szobával, konyhával, fürdőszobával, előszobával és erkéllyel rendelkezik. A rezsi alacsony, így kiváló választás lehet fiatal pároknak, egyedülállóknak vagy befektetőknek.
A lakás jó állapotú, mindössze egy tisztasági festést igényel.
A ház zárt lépcsőházas, teher- és személylifttel is felszerelt, rendezett, biztonságos lakóközösséggel és barátságos szomszédokkal.
A környék csendes és nyugodt, kiváló infrastruktúrával: bolt, óvoda, játszótér és focipálya is található a közelben, minden elérhető távolságban.
OTP Banki hátterünknek köszönhetően finanszírozási igényekben (pl. Otthon Start Hitelprogram, Babaváró, Falusi CSOK, CSOK Plusz, Lakáshitel, Személyi kölcsön stb.), illetve biztosítások tekintetében is díjmentesen, soron kívüli ügyintézéssel segítem ügyfeleim!