Eladó Lakás
Hirdetéskód: 9326374
Nyíregyháza Dózsa György út 32-34 - OTP Ingatlanpont Iroda
Felújításhoz személyi kölcsönt keres? Kalkuláljon itt! →
Ez a hirdetés megfelelhet a FIX 3%-os programnak.
Tudj meg többet a részletekről itt.
56.00 m2
ALAPTERÜLET2
SZOBASZÁMnincs megadva
ÉPÍTÉSGáz (konvektor)
FŰTÉS- CSOK igénybe vehető nem
- Tetőtér beépíthető nem
- Építés éve 1982
- Fűtés Gáz (konvektor)
- Klíma nem
- Szigetelt nem
A+++
A++
A+
A
B
C
D
E
F
G
H
I
Az ingatlan leírása
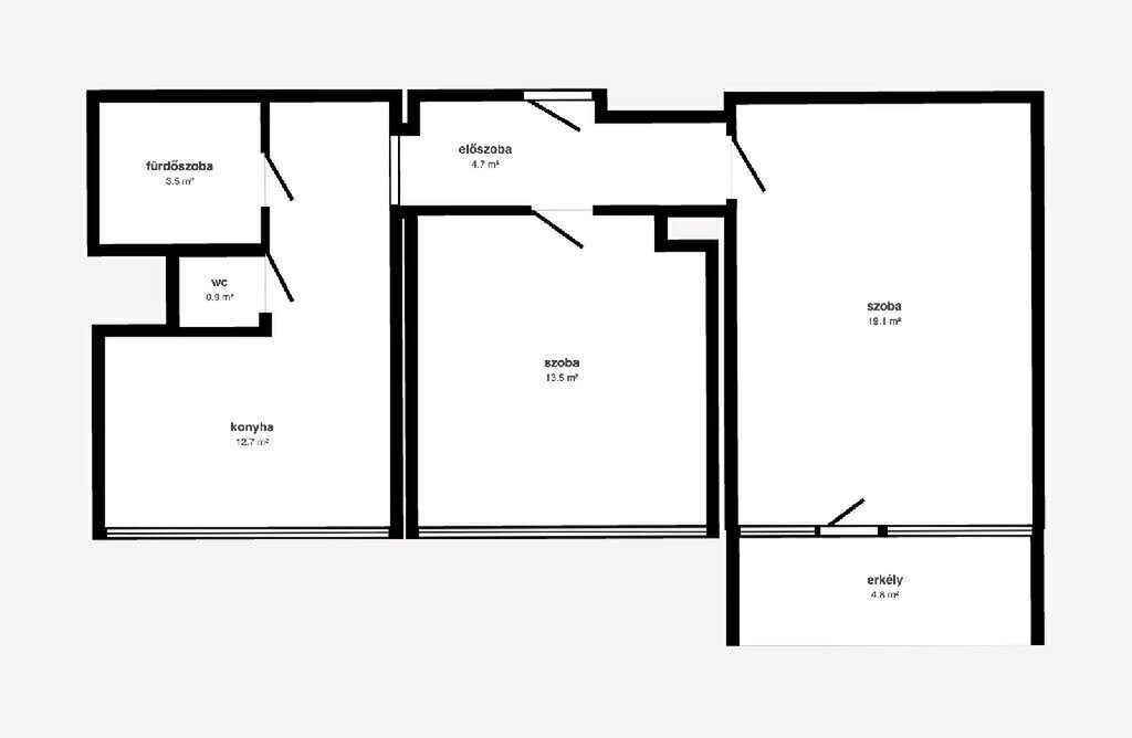
Eladásra kínálunk egy 56 m2 alapterületű, 3. emeleti, teljes körűen felújított lakást.
Amely kiváló választás lehet akár saját otthonnak, akár befektetésnek!
Az ingatlan 2 tágas, világos szobával rendelkezik, amelyek közül az egyik igény szerint nappalivá alakítható, így a lakás elrendezése rugalmasan igazítható az új tulajdonos igényeihez.
A lakás teljes felújításon esett át, melynek során modern, időtálló anyagok kerültek beépítésre. A helyiségekben stílusos színek, valamint strapabíró, minőségi burkolatok kaptak helyet. A szobák 10 mm vastag, kopásálló laminált padlóval burkoltak, míg a többi helyiségben tartós, esztétikus csempe található.
A konyha újonnan készített, modern konyhabútorral felszerelt, valamint gázcsatlakozással rendelkezik, amely praktikus és gazdaságos megoldást biztosít a mindennapi használathoz.
A lakás konvektoros fűtéssel működik, továbbá saját mérőórával rendelkezik, így a rezsiköltségek könnyen kontrollálhatók.
A komfortérzetet tovább növeli, hogy:
Minden nyílászáró új, hőszigetelt fa nyílászáró.
A fürdőszoba teljes körűen felújított és modernizált, a WC külön helyiségben található, ami praktikus a mindennapok során.
Az ingatlanhoz tartozik egy 4,8m2-es saját erkély, amely utcai kilátást biztosít, és kellemes helyszínt nyújt egy reggeli kávé vagy esti pihenés számára.
Igényesen felújított, azonnal költözhető lakás !
Az ingatlan városközponti elhelyezkedésének köszönhetően kiváló infrastruktúrával rendelkezik, így a mindennapi ügyintézés és bevásárlás rendkívül kényelmesen megoldható.
A lakás közelében 500 méteren belül megtalálható több élelmiszerüzlet, gyógyszertár és orvosi rendelő, ami nagyban megkönnyíti a mindennapi életet.
A városban elérhető egy nagyobb bevásárlóközpont is, a Tesco, Spár, Penny amely széles választékot kínál mindennapi bevásárláshoz.
A környék családbarát, hiszen az iskola mindössze körülbelül 200 méterre található, így gyalogosan is gyorsan és biztonságosan megközelíthető. Emellett benzinkút is elérhető 500 méteren belül.
A városközpontnak köszönhetően ruházati üzletek, különböző szolgáltatások és vásárlási lehetőségek szintén könnyen elérhetők, így szinte minden szükséges szolgáltatás helyben rendelkezésre áll.
Ennek az elhelyezkedésnek köszönhetően az ingatlan praktikus választás családok, párok vagy akár befektetők számára is, akik fontosnak tartják a kényelmes, jól megközelíthető városi életet.
Keress bizalommal ,akár megtekintés, akár kérdés esetén!
OTP Banki hátterünknek köszönhetően finanszírozási igényekben (pl. Otthon Start Hitelprogram, Babaváró, Falusi CSOK, CSOK Plusz, Lakáshitel, Személyi kölcsön stb.), illetve biztosítások tekintetében is díjmentesen, soron kívüli ügyintézéssel segítem ügyfeleim! Referenciaszám: M324807
Virtuális séta: https://my.matterport.com/show/?m=6qqwithntx20tgchc9nphwc3a&views=0&mls=1
Amely kiváló választás lehet akár saját otthonnak, akár befektetésnek!
Az ingatlan 2 tágas, világos szobával rendelkezik, amelyek közül az egyik igény szerint nappalivá alakítható, így a lakás elrendezése rugalmasan igazítható az új tulajdonos igényeihez.
A lakás teljes felújításon esett át, melynek során modern, időtálló anyagok kerültek beépítésre. A helyiségekben stílusos színek, valamint strapabíró, minőségi burkolatok kaptak helyet. A szobák 10 mm vastag, kopásálló laminált padlóval burkoltak, míg a többi helyiségben tartós, esztétikus csempe található.
A konyha újonnan készített, modern konyhabútorral felszerelt, valamint gázcsatlakozással rendelkezik, amely praktikus és gazdaságos megoldást biztosít a mindennapi használathoz.
A lakás konvektoros fűtéssel működik, továbbá saját mérőórával rendelkezik, így a rezsiköltségek könnyen kontrollálhatók.
A komfortérzetet tovább növeli, hogy:
Minden nyílászáró új, hőszigetelt fa nyílászáró.
A fürdőszoba teljes körűen felújított és modernizált, a WC külön helyiségben található, ami praktikus a mindennapok során.
Az ingatlanhoz tartozik egy 4,8m2-es saját erkély, amely utcai kilátást biztosít, és kellemes helyszínt nyújt egy reggeli kávé vagy esti pihenés számára.
Igényesen felújított, azonnal költözhető lakás !
Az ingatlan városközponti elhelyezkedésének köszönhetően kiváló infrastruktúrával rendelkezik, így a mindennapi ügyintézés és bevásárlás rendkívül kényelmesen megoldható.
A lakás közelében 500 méteren belül megtalálható több élelmiszerüzlet, gyógyszertár és orvosi rendelő, ami nagyban megkönnyíti a mindennapi életet.
A városban elérhető egy nagyobb bevásárlóközpont is, a Tesco, Spár, Penny amely széles választékot kínál mindennapi bevásárláshoz.
A környék családbarát, hiszen az iskola mindössze körülbelül 200 méterre található, így gyalogosan is gyorsan és biztonságosan megközelíthető. Emellett benzinkút is elérhető 500 méteren belül.
A városközpontnak köszönhetően ruházati üzletek, különböző szolgáltatások és vásárlási lehetőségek szintén könnyen elérhetők, így szinte minden szükséges szolgáltatás helyben rendelkezésre áll.
Ennek az elhelyezkedésnek köszönhetően az ingatlan praktikus választás családok, párok vagy akár befektetők számára is, akik fontosnak tartják a kényelmes, jól megközelíthető városi életet.
Keress bizalommal ,akár megtekintés, akár kérdés esetén!
OTP Banki hátterünknek köszönhetően finanszírozási igényekben (pl. Otthon Start Hitelprogram, Babaváró, Falusi CSOK, CSOK Plusz, Lakáshitel, Személyi kölcsön stb.), illetve biztosítások tekintetében is díjmentesen, soron kívüli ügyintézéssel segítem ügyfeleim! Referenciaszám: M324807
Virtuális séta: https://my.matterport.com/show/?m=6qqwithntx20tgchc9nphwc3a&views=0&mls=1