Eladó Lakás
Hirdetéskód: 9247034
OTP Ingatlanpont Csongrád
96.00 m2
ALAPTERÜLET3
SZOBASZÁMnincs megadva
ÉPÍTÉSnincs megadva
FŰTÉS- CSOK igénybe vehető nem
- Tetőtér beépíthető nem
- Építés éve 1970
- Klíma nem
- Szigetelt nem
A+++
A++
A+
A
B
C
D
E
F
G
H
I
Az ingatlan leírása
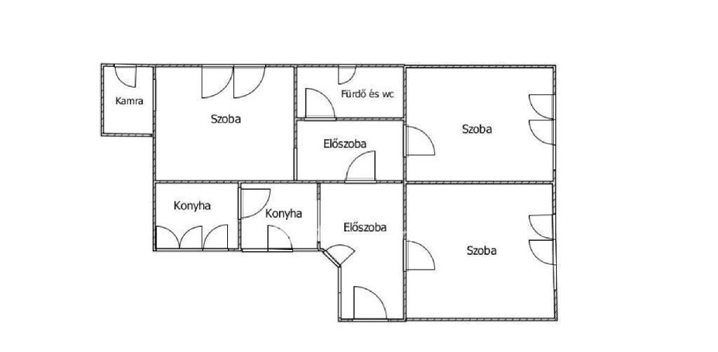
Eladó Békés vármegyében, Nagyszénás központjában egy 3 szoba, előszoba/közlekedő, kis előszoba, konyha, kamra, fürdőszoba és WC (egyben) helyiségekből álló, átlagos állapotú, 92 m2-es, vegyes falazatú (tégla és vályog) társasházi sorházi lakás!
A lakás 1970 körül épült, ahhoz saját kert és garázs is tartozik!
Az épület szerkezetileg és statikailag jó állapotban van, a tető is jó. A lakás felújítása már megkezdődött az egyik szobában, és új fürdőszoba is ki lett alakítva. A lakás jó fekvésű, jó hangulatú, kifejezetten napfényes. A felújítás befejezése az új tulajra vár!
A lakás fűtése jelenleg gázkonvektorokkal megoldott.
A lakás mind párok, mind kisebb vagy nagyobb családok számára tökéletes lehet központi elhelyezkedése, méretei és adottságai alapján! Bár a felújítását be kell fejezni, kifejezetten hangulatos otthon alakítható ki belőle, nagyszerű áron!
Orosháza városa 10 perc alatt elérhető autóval.
Az ingatlan tehermentes, arra CSOK, hitel, babaváró támogatás is felvehető, melynek elintézésében szintén gyors és szakértő segítséget nyújtunk önnek igény esetén!
A lakás adásvétel után azonnal birtokba vehető!
Ha felkeltettem érdeklődését, keressen bizalommal!
Vagy esetleg ingatlant adna el? Akkor is keressen bátran a megadott telefonszámon! Akár ingyenes árkalkulációt is szívesen végzünk Önnek, további kötöttségek nélkül!
A lakás 1970 körül épült, ahhoz saját kert és garázs is tartozik!
Az épület szerkezetileg és statikailag jó állapotban van, a tető is jó. A lakás felújítása már megkezdődött az egyik szobában, és új fürdőszoba is ki lett alakítva. A lakás jó fekvésű, jó hangulatú, kifejezetten napfényes. A felújítás befejezése az új tulajra vár!
A lakás fűtése jelenleg gázkonvektorokkal megoldott.
A lakás mind párok, mind kisebb vagy nagyobb családok számára tökéletes lehet központi elhelyezkedése, méretei és adottságai alapján! Bár a felújítását be kell fejezni, kifejezetten hangulatos otthon alakítható ki belőle, nagyszerű áron!
Orosháza városa 10 perc alatt elérhető autóval.
Az ingatlan tehermentes, arra CSOK, hitel, babaváró támogatás is felvehető, melynek elintézésében szintén gyors és szakértő segítséget nyújtunk önnek igény esetén!
A lakás adásvétel után azonnal birtokba vehető!
Ha felkeltettem érdeklődését, keressen bizalommal!
Vagy esetleg ingatlant adna el? Akkor is keressen bátran a megadott telefonszámon! Akár ingyenes árkalkulációt is szívesen végzünk Önnek, további kötöttségek nélkül!