Eladó Lakás
Hirdetéskód: 9276481
Openhouse Nagykanizsa Ingatlaniroda
Felújításhoz személyi kölcsönt keres? Kalkuláljon itt! →
Ez a hirdetés megfelelhet a FIX 3%-os programnak.
Tudj meg többet a részletekről itt.
55.00 m2
ALAPTERÜLET2
SZOBASZÁMnincs megadva
ÉPÍTÉSHázközponti fűtés egyedi méréssel
FŰTÉS- CSOK igénybe vehető nem
- Tetőtér beépíthető nem
- Építés éve 1972
- Fűtés Házközponti fűtés egyedi méréssel
- Klíma nem
- Szigetelt nem
A+++
A++
A+
A
B
C
D
E
F
G
H
I
Az ingatlan leírása
Az Openhouse Nagykanizsa Ingatlaniroda kínálatában eladó a #179824 hivatkozási számú nagykanizsai társasházi lakás.
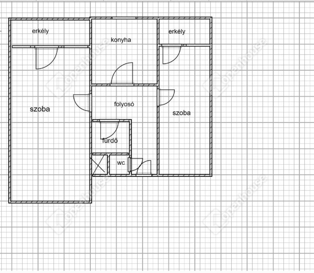
Nagykanizsa Keleti városrészben eladóvá vált egy kiváló állapotú,teljes körűen felújított két szobás, két beépített erkélyes 7. emeleti lakás.
Az ingatlan 1/1 tulajdonban van, a Tulajdonos 2023-ban teljesen felújította:
-Vízvezeték csere
-Villamoshálózat csere
-Új burkolatok az egész lakásban
-Új nyílászárók
-Beépített két erkély!
A lakáshoz saját tároló tartozik a folyosón, valamint a pince szinten is külön tárolója van.
Gépkocsival közvetlen a ház előtt kialakított parkolóban tudunk parkolni
Belső lakrész:
-Nagyszoba beépített erkéllyel
-Hálószoba beépített erkéllyel
-Közlekedő, folyosó
-Tágas,világos konyha étkezővel
-Fürdőszoba,amiben fürdőkád és zuhanyzó is megtalálható
-Wc külön helységben
A lakás összes nyílászárója redőnnyel és szúnyoghálóval felszerelve!
Ha Ön szeretne egy gyönyörűen felújított, igazán igényes otthont,akkor ez az ingatlan kiváló választás lehet!
Irodánkon belül Kollégánk teljes körű banki szolgáltatást nyújt Ügyfeleink részére!
Ha felkeltette érdeklődését ez az eladó nagykanizsai társasházi lakás, vagy bármely más társasházi lakás és bővebb információt szeretne, keressen bizalommal.Hivatkozási szám: #179824
Az Openhouse Nagykanizsa Ingatlaniroda tagjaként várom Önt az országos hálózatunk teljes kínálatával.
A társasházi lakás vásárláshoz hitelt igényelne? Ingyenes hitelközvetítéssel segít Önnek bankfüggetlen hitelszakértőnk.
További szolgáltatásainkkal (pl. értékbecslés, energetikai tanúsítvány, jogi háttér) is segítjük Önt a vásárlásban.
Az otthon érték. Az ingatlan üzlet.
Nagykanizsa Keleti városrészben eladóvá vált egy kiváló állapotú,teljes körűen felújított két szobás, két beépített erkélyes 7. emeleti lakás.
Az ingatlan 1/1 tulajdonban van, a Tulajdonos 2023-ban teljesen felújította:
-Vízvezeték csere
-Villamoshálózat csere
-Új burkolatok az egész lakásban
-Új nyílászárók
-Beépített két erkély!
A lakáshoz saját tároló tartozik a folyosón, valamint a pince szinten is külön tárolója van.
Gépkocsival közvetlen a ház előtt kialakított parkolóban tudunk parkolni
Belső lakrész:
-Nagyszoba beépített erkéllyel
-Hálószoba beépített erkéllyel
-Közlekedő, folyosó
-Tágas,világos konyha étkezővel
-Fürdőszoba,amiben fürdőkád és zuhanyzó is megtalálható
-Wc külön helységben
A lakás összes nyílászárója redőnnyel és szúnyoghálóval felszerelve!
Ha Ön szeretne egy gyönyörűen felújított, igazán igényes otthont,akkor ez az ingatlan kiváló választás lehet!
Irodánkon belül Kollégánk teljes körű banki szolgáltatást nyújt Ügyfeleink részére!
Ha felkeltette érdeklődését ez az eladó nagykanizsai társasházi lakás, vagy bármely más társasházi lakás és bővebb információt szeretne, keressen bizalommal.Hivatkozási szám: #179824
Az Openhouse Nagykanizsa Ingatlaniroda tagjaként várom Önt az országos hálózatunk teljes kínálatával.
A társasházi lakás vásárláshoz hitelt igényelne? Ingyenes hitelközvetítéssel segít Önnek bankfüggetlen hitelszakértőnk.
További szolgáltatásainkkal (pl. értékbecslés, energetikai tanúsítvány, jogi háttér) is segítjük Önt a vásárlásban.
Az otthon érték. Az ingatlan üzlet.