Eladó Lakás
Hirdetéskód: 9193961
Mov-Ing Home
49 m2
ALAPTERÜLET2
SZOBASZÁMnincs megadva
ÉPÍTÉSnincs megadva
FŰTÉS- CSOK igénybe vehető nem
- Tetőtér beépíthető nem
- Építés éve 1986
- Klíma nem
- Szigetelt nem
A+++
A++
A+
A
B
C
D
E
F
G
H
I
Az ingatlan leírása
BELVÁROSI KÉNYELEM ÉS BÚTOROZOTT OTTHON – KIVÁLÓ BEFEKTETÉS
Mosonmagyaróváron!Mosonmagyaróvár szívében, a Belvárosban kínálunk megvételre egy 49 nm-es, földszinti lakást, mely ideális választás lehet befektetőknek (könnyű bérbeadás), vagy azoknak, akik a városközpont közelségét keresik kényelmes, lakható állapotban.
Főbb Jellemzők és ElőnyökTulajdonság
Lokáció: Mosonmagyaróvár Belvárosa!
Minden szolgáltatás, üzlet, orvosi rendelő, buszmegálló sétatávolságra.Alapterület49 nm, praktikus elrendezéssel.
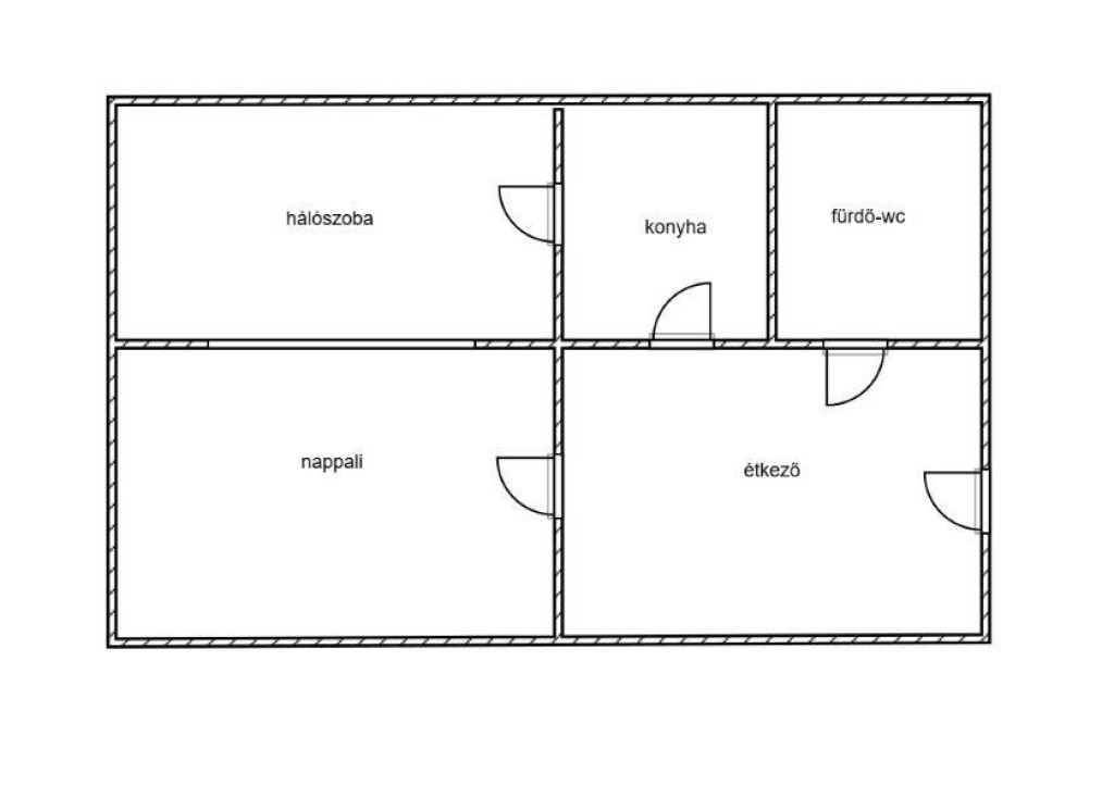
Elosztás: Nappali, hálószoba, étkező, konyha és fürdő-WC. A hálószoba és a nappali tolóajtóval választható el, ami modern és helytakarékos megoldás.
Állapot: Bútorozottan eladó! A konyhabútor (beépített főzőlappal, elszívóval), az étkező, a szobák bútorai (ágy, szekrények, íróasztal) a vételár részét képezik.
Fűtés: Távfűtés, ami az egyik legkomfortosabb és legegyszerűbb fűtési megoldás.
Épület1986-ban épült, tégla szerkezetű társasház
Közös Kert: Az épület belső, zárt, nagyon szép parkosított kerttel rendelkezik, ami nyugalmat biztosít a belvárosi nyüzsgés közepette.
Részletek a lakásról és műszaki tartalomról:
Földszinti elhelyezkedés: Kényelmes bejutás, különösen idősebbeknek vagy kisgyermekes családoknak ideális. Az étkezőből közvetlen kijárat van az udvarra.
Konyha: Jól karbantartott, szögletes elrendezésű konyhabútor.Fürdőszoba: Zuhanykabinos, WC-vel és törölközőszárító radiátorral felszerelt.
Kinek ajánljuk? Befektetőknek: Azonnal bérbe adható, bútorozott állapot és a központi elhelyezkedés garantálja a gyors megtérülést és a stabil bérlői kört (pl. egyetemisták, ingázók).
Saját célra: Első lakásnak, nyugdíjas otthonnak vagy bárkinek, aki értékeli a belváros közelségét és a gondozott, zárt udvar nyújtotta nyugalmat.Ragadja meg a lehetőséget, hogy a Belváros szívében, egy csendes oázisban legyen saját lakása!Hívjon bizalommal a megtekintés egyeztetése érdekében!
Mosonmagyaróváron!Mosonmagyaróvár szívében, a Belvárosban kínálunk megvételre egy 49 nm-es, földszinti lakást, mely ideális választás lehet befektetőknek (könnyű bérbeadás), vagy azoknak, akik a városközpont közelségét keresik kényelmes, lakható állapotban.
Főbb Jellemzők és ElőnyökTulajdonság
Lokáció: Mosonmagyaróvár Belvárosa!
Minden szolgáltatás, üzlet, orvosi rendelő, buszmegálló sétatávolságra.Alapterület49 nm, praktikus elrendezéssel.
Elosztás: Nappali, hálószoba, étkező, konyha és fürdő-WC. A hálószoba és a nappali tolóajtóval választható el, ami modern és helytakarékos megoldás.
Állapot: Bútorozottan eladó! A konyhabútor (beépített főzőlappal, elszívóval), az étkező, a szobák bútorai (ágy, szekrények, íróasztal) a vételár részét képezik.
Fűtés: Távfűtés, ami az egyik legkomfortosabb és legegyszerűbb fűtési megoldás.
Épület1986-ban épült, tégla szerkezetű társasház
Közös Kert: Az épület belső, zárt, nagyon szép parkosított kerttel rendelkezik, ami nyugalmat biztosít a belvárosi nyüzsgés közepette.
Részletek a lakásról és műszaki tartalomról:
Földszinti elhelyezkedés: Kényelmes bejutás, különösen idősebbeknek vagy kisgyermekes családoknak ideális. Az étkezőből közvetlen kijárat van az udvarra.
Konyha: Jól karbantartott, szögletes elrendezésű konyhabútor.Fürdőszoba: Zuhanykabinos, WC-vel és törölközőszárító radiátorral felszerelt.
Kinek ajánljuk? Befektetőknek: Azonnal bérbe adható, bútorozott állapot és a központi elhelyezkedés garantálja a gyors megtérülést és a stabil bérlői kört (pl. egyetemisták, ingázók).
Saját célra: Első lakásnak, nyugdíjas otthonnak vagy bárkinek, aki értékeli a belváros közelségét és a gondozott, zárt udvar nyújtotta nyugalmat.Ragadja meg a lehetőséget, hogy a Belváros szívében, egy csendes oázisban legyen saját lakása!Hívjon bizalommal a megtekintés egyeztetése érdekében!