Eladó Lakás
Hirdetéskód: 9216264
Mov-Ing Home
61 m2
ALAPTERÜLET2
SZOBASZÁMnincs megadva
ÉPÍTÉSnincs megadva
FŰTÉS- CSOK igénybe vehető nem
- Tetőtér beépíthető nem
- Építés éve 1920
- Klíma nem
- Szigetelt nem
A+++
A++
A+
A
B
C
D
E
F
G
H
I
Az ingatlan leírása
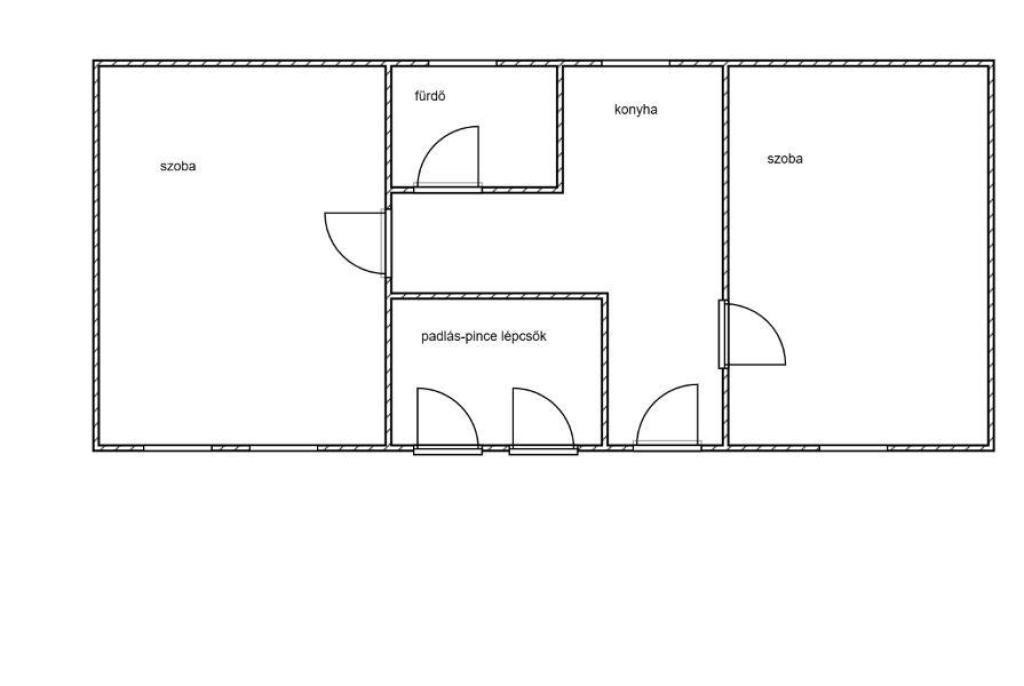
Földszintes lakást keresel két szobával központi részen?
Mosoni részen mindenhez közel jó állapotú kétszobás ingatlan.
- 61 nm, elosztása: két hálószoba, konyha-étkező, zuhanyzós fürdőszoba
- fűtése: cserépkályhák és hűtő-fűtő légkondik, hogy mindenre legyen megoldás!
- 10cm-es honlokzati szigeteléssel, jó állapotú tetővel, hogy ne kelljen felújítanod!
- tehermentes, hogy azonnal költözhess!
Hívd a megadott telefonszámot!
Mosoni részen mindenhez közel jó állapotú kétszobás ingatlan.
- 61 nm, elosztása: két hálószoba, konyha-étkező, zuhanyzós fürdőszoba
- fűtése: cserépkályhák és hűtő-fűtő légkondik, hogy mindenre legyen megoldás!
- 10cm-es honlokzati szigeteléssel, jó állapotú tetővel, hogy ne kelljen felújítanod!
- tehermentes, hogy azonnal költözhess!
Hívd a megadott telefonszámot!