Eladó Lakás
Hirdetéskód: 9313867

Mov-Ing Home

Felújításhoz személyi kölcsönt keres? Kalkuláljon itt! →
53.00 m2
ALAPTERÜLET
2
SZOBASZÁM
nincs megadva
ÉPÍTÉS
Gáz (cirkó)
FŰTÉS
  • CSOK igénybe vehető nem
  • Tetőtér beépíthető nem
  • Építés éve 1968
  • Fűtés Gáz (cirkó)
  • Klíma nem
  • Szigetelt nem
Energetikai besorolás: Nincs meghatározva
A+++
A++
A+
A
B
C
D
E
F
G
H
I

Az MBH Bank személyi kölcsön ajánlata

Fizetett hirdetés
1 millió Ft
6 évre
20 585 Ft/hó
THM: 14.5%
Részletek →
2 millió Ft
6 évre
41 169 Ft/hó
THM: 14.5%
Részletek →
3 millió Ft
6 évre
61 754 Ft/hó
THM: 14.5%
Részletek →

A tájékoztatás nem teljes körű és nem minősül ajánlattételnek.

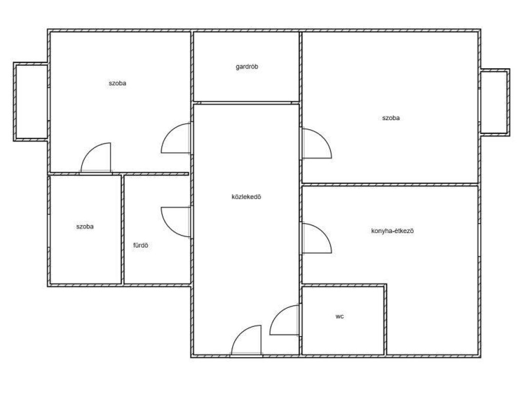
Az ingatlan leírása

Ha fontos a központi elhelyezkedés, de nem akarsz lemondani a zöld környezetről, ezt látnod kell. A Szent István király úton kínálunk eladásra egy 55 m²-es, 2,5 szobás, erkélyes tégla lakást.

Miért fogod imádni?
Első emeleti elhelyezkedés (felejtsd el a sok lépcsőt!)
Két erkély, hogy minden napszakban élvezhesd a friss levegőt
Teljesen bútorozott – ide tényleg csak költözni kell
Modern fűtésrendszer és hűtő-fűtő klíma a maximális komfortért
Szuper elrendezés: külön gardrób és saját pincei tároló

A környék pedig egyszerűen verhetetlen: iskola, óvoda, boltok és orvosi rendelő is pár perc sétára található. A parkolás közvetlenül a ház előtt ingyenesen megoldott.

Részletekért és megtekintésért keress minket bizalommal

Térkép

Ingatlan adásvétel ügyvédi díja
238 500 Ft
a hirdetésben szereplő ár alapján
  • A vételár 0,45%-a
  • Szerződéscsomag teljeskörű képviselettel
  • Ingyenes tulajdoni lap ellenőrzés
  • Az ÁFA-t már tartalmazza
Érdekel az ajánlat →
A tájékoztatás nem teljes körű és nem minősül ajánlattételnek. Minimum díj: 150 000 Ft, maximum díj: 600 000 Ft. A díj kizárólag lakóingatlan adásvételére vonatkozik.

A hirdető elérhetősége

Mov-Ing Home

Dömötör Attila
+36 30 850