Eladó Lakás
Hirdetéskód: 9309798

Mov-Ing Home

Felújításhoz személyi kölcsönt keres? Kalkuláljon itt! →
FIX 3% Program

Ez a hirdetés megfelelhet a FIX 3%-os programnak.
Tudj meg többet a részletekről itt.

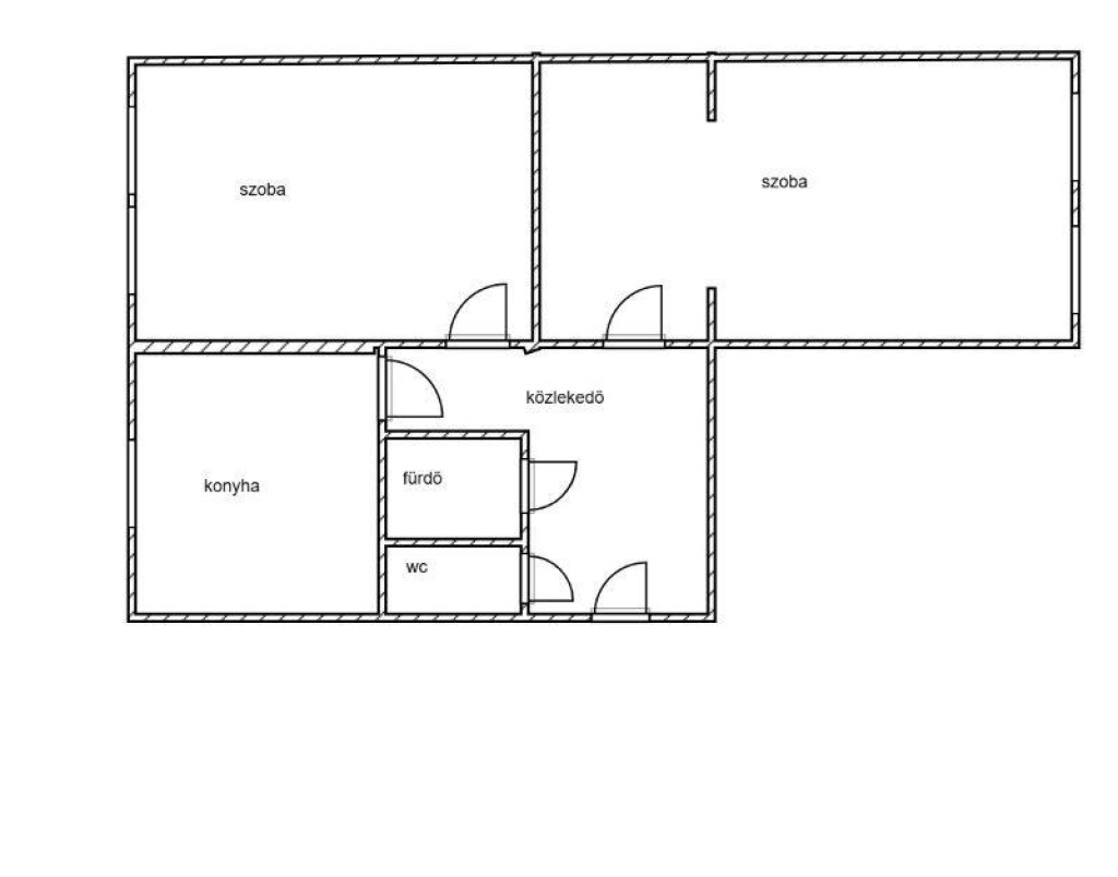
52.00 m2
ALAPTERÜLET
2
SZOBASZÁM
nincs megadva
ÉPÍTÉS
Távfűtés
FŰTÉS
  • CSOK igénybe vehető nem
  • Tetőtér beépíthető nem
  • Építés éve 1970
  • Fűtés Távfűtés
  • Klíma nem
  • Szigetelt nem
Energetikai besorolás: Nincs meghatározva
A+++
A++
A+
A
B
C
D
E
F
G
H
I

Az MBH Bank személyi kölcsön ajánlata

Fizetett hirdetés
1 millió Ft
6 évre
20 585 Ft/hó
THM: 14.5%
Részletek →
2 millió Ft
6 évre
41 169 Ft/hó
THM: 14.5%
Részletek →
3 millió Ft
6 évre
61 754 Ft/hó
THM: 14.5%
Részletek →

A tájékoztatás nem teljes körű és nem minősül ajánlattételnek.

Az ingatlan leírása

Mosonmagyaróvár egyik legkedveltebb részén, a Móra Ferenc utcában kínáljuk eladásra ezt az 52 m2-es, kiváló állapotú panellakást. Az ingatlan egy rendezett, hőszigetelt társasház első emeletén található.

Főbb előnyök Önnek:

Friss felújítás: A 2021-ben végzett munkálatok során a lakás modern megjelenést kapott. A konyhába esztétikus, világos fa mintázatú bútor került, a fürdőszoba és a külön WC pedig elegáns burkolatokat kapott.

Praktikus élettér: A közlekedőből minden helyiség külön nyílik, így a két szoba teljes privát szférát biztosít.

Kiváló fenntarthatóság: A műanyag nyílászárók és a ház külső szigetelése miatt a fűtési költség rendkívül kedvező.

Elhelyezkedés: A városközponti elhelyezkedés ellenére a környék parkosított, családbarát.

Ez az ingatlan kiváló ár-érték arányt képvisel, hiszen a felújítással már nem kell foglalkoznia.

Érdeklődjön bizalommal!

Térkép

Ingatlan adásvétel ügyvédi díja
204 750 Ft
a hirdetésben szereplő ár alapján
  • A vételár 0,45%-a
  • Szerződéscsomag teljeskörű képviselettel
  • Ingyenes tulajdoni lap ellenőrzés
  • Az ÁFA-t már tartalmazza
Érdekel az ajánlat →
A tájékoztatás nem teljes körű és nem minősül ajánlattételnek. Minimum díj: 150 000 Ft, maximum díj: 600 000 Ft. A díj kizárólag lakóingatlan adásvételére vonatkozik.

A hirdető elérhetősége

Mov-Ing Home

Dömötör Attila
+36 30 850