Eladó Lakás
Hirdetéskód: 9245376
Mov-Ing Home
Felújításhoz személyi kölcsönt keres? Kalkuláljon itt! →
Ez a hirdetés megfelelhet a FIX 3%-os programnak.
Tudj meg többet a részletekről itt.
55.00 m2
ALAPTERÜLET2
SZOBASZÁMnincs megadva
ÉPÍTÉSElektromos
FŰTÉS- CSOK igénybe vehető nem
- Tetőtér beépíthető nem
- Építés éve 1950
- Fűtés Elektromos
- Klíma nem
- Szigetelt nem
A+++
A++
A+
A
B
C
D
E
F
G
H
I
Az ingatlan leírása
Akadálymentes bejutás, modern belső – 55 nm-es lakás Mosonban
Leírás: Mosonmagyaróvár frekventált, mosoni városrészén kínálunk eladásra egy kiváló adottságokkal rendelkező, földszinti udvari lakást. Az 1950-es években épült tégla ingatlan az elmúlt időszakban esztétikai frissítésen esett át, így modern és barátságos hangulat fogadja az érkezőket.
Ingatlan jellemzői:
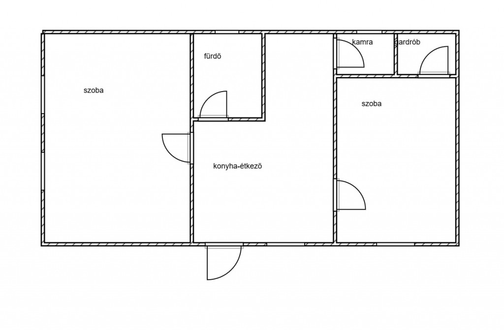
Alapterület: 55 nm, praktikus 2 szobás elosztással.
Helyiségek: Konyha-étkező (modern bútorral), zuhanyzós fürdő, két hálószoba, külön kamra és gardrób.
Komfort: Műanyag nyílászárók, elektromos bojler. A hőérzetről cserépkályha és elektromos padlófűtés gondoskodik.
Közlekedés: Két irányból, két különböző utcáról is megközelíthető az udvar, ami egyedülálló rugalmasságot ad.
Tárolás és parkolás: Az ingatlanhoz saját padlásrész és pince tartozik, így a tárolás nem okoz gondot. Parkolni közvetlenül a ház előtt kialakított parkolóban vagy az udvarban (1 autó számára) lehetséges.
Ez a lakás tökéletes ötvözete a kertvárosi nyugalomnak és a városi kényelemnek. A közös udvar használata mellett saját privát szférát biztosít.
Leírás: Mosonmagyaróvár frekventált, mosoni városrészén kínálunk eladásra egy kiváló adottságokkal rendelkező, földszinti udvari lakást. Az 1950-es években épült tégla ingatlan az elmúlt időszakban esztétikai frissítésen esett át, így modern és barátságos hangulat fogadja az érkezőket.
Ingatlan jellemzői:
Alapterület: 55 nm, praktikus 2 szobás elosztással.
Helyiségek: Konyha-étkező (modern bútorral), zuhanyzós fürdő, két hálószoba, külön kamra és gardrób.
Komfort: Műanyag nyílászárók, elektromos bojler. A hőérzetről cserépkályha és elektromos padlófűtés gondoskodik.
Közlekedés: Két irányból, két különböző utcáról is megközelíthető az udvar, ami egyedülálló rugalmasságot ad.
Tárolás és parkolás: Az ingatlanhoz saját padlásrész és pince tartozik, így a tárolás nem okoz gondot. Parkolni közvetlenül a ház előtt kialakított parkolóban vagy az udvarban (1 autó számára) lehetséges.
Ez a lakás tökéletes ötvözete a kertvárosi nyugalomnak és a városi kényelemnek. A közös udvar használata mellett saját privát szférát biztosít.