Eladó Lakás
Hirdetéskód: 9198062
Mov-Ing Home
50 m2
ALAPTERÜLET2
SZOBASZÁMnincs megadva
ÉPÍTÉSnincs megadva
FŰTÉS- CSOK igénybe vehető nem
- Tetőtér beépíthető nem
- Építés éve 2013
- Klíma nem
- Szigetelt nem
A+++
A++
A+
A
B
C
D
E
F
G
H
I
Az ingatlan leírása
Világos, Erkélyes, 50 m²-es Lakás Eladó Mosonmagyaróváron, a Lajta Lakóparkban!
Mosonmagyaróvár kedvelt, csendes részén, a Lajta Lakóparkban, eladóvá vált egy 50 m²-es, 1. emeleti, jó állapotú téglalakás. Az ingatlan egy 2013-ban épült, 3 szintes, rendezett társasházban található, és ideális választás akár első otthonnak, akár befektetési célra.
A lakás főbb jellemzői:
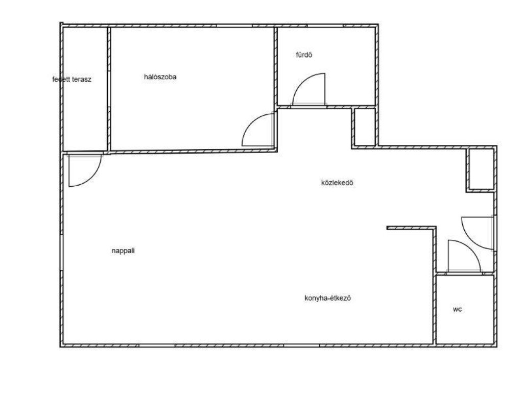
Elrendezés: Az ingatlan praktikus elosztású, mely egy tágas, amerikai konyhás nappaliból, egy kényelmes hálószobából, kádas fürdőszobából és egy különálló WC-ből áll.
Erkély: A nappaliból egy hangulatos, 4 m²-es erkély nyílik, amely tökéletes helyszín a reggeli kávézáshoz vagy a délutáni pihenéshez.
Fűtés: Az otthon melegéről és a melegvíz-ellátásról saját gázkazán gondoskodik, ami alacsony rezsit és egyedi szabályozhatóságot biztosít.
Parkolás és Tárolás: A vételár részét képezi egy saját parkoló a zárt udvarban, valamint a lakáshoz tartozik egy közös tároló is.
A lakás világos, barátságos és jól kihasználható terekkel rendelkezik. A képeken látható konyhabútor, a fürdőszoba és a szobák állapota is tükrözi a gondos használatot.
A környék csendes, rendezett és biztonságos, a közelben pedig minden megtalálható, ami a mindennapokhoz szükséges – bolt, iskola, gyógyszertár, buszmegálló.
Ez a tehermentes, azonnal birtokba vehető lakás egy kényelmes otthont kínál egy közkedvelt lakóparkban – ide csak költöznie kell!
Mosonmagyaróvár kedvelt, csendes részén, a Lajta Lakóparkban, eladóvá vált egy 50 m²-es, 1. emeleti, jó állapotú téglalakás. Az ingatlan egy 2013-ban épült, 3 szintes, rendezett társasházban található, és ideális választás akár első otthonnak, akár befektetési célra.
A lakás főbb jellemzői:
Elrendezés: Az ingatlan praktikus elosztású, mely egy tágas, amerikai konyhás nappaliból, egy kényelmes hálószobából, kádas fürdőszobából és egy különálló WC-ből áll.
Erkély: A nappaliból egy hangulatos, 4 m²-es erkély nyílik, amely tökéletes helyszín a reggeli kávézáshoz vagy a délutáni pihenéshez.
Fűtés: Az otthon melegéről és a melegvíz-ellátásról saját gázkazán gondoskodik, ami alacsony rezsit és egyedi szabályozhatóságot biztosít.
Parkolás és Tárolás: A vételár részét képezi egy saját parkoló a zárt udvarban, valamint a lakáshoz tartozik egy közös tároló is.
A lakás világos, barátságos és jól kihasználható terekkel rendelkezik. A képeken látható konyhabútor, a fürdőszoba és a szobák állapota is tükrözi a gondos használatot.
A környék csendes, rendezett és biztonságos, a közelben pedig minden megtalálható, ami a mindennapokhoz szükséges – bolt, iskola, gyógyszertár, buszmegálló.
Ez a tehermentes, azonnal birtokba vehető lakás egy kényelmes otthont kínál egy közkedvelt lakóparkban – ide csak költöznie kell!