Eladó Lakás
Hirdetéskód: 9251547

Mov-Ing Home

Felújításhoz személyi kölcsönt keres? Kalkuláljon itt! →
FIX 3% Program

Ez a hirdetés megfelelhet a FIX 3%-os programnak.
Tudj meg többet a részletekről itt.

58.00 m2
ALAPTERÜLET
2
SZOBASZÁM
nincs megadva
ÉPÍTÉS
Gáz (cirkó)
FŰTÉS
  • CSOK igénybe vehető nem
  • Tetőtér beépíthető nem
  • Építés éve 1970
  • Fűtés Gáz (cirkó)
  • Klíma nem
  • Szigetelt nem
Energetikai besorolás: Nincs meghatározva
A+++
A++
A+
A
B
C
D
E
F
G
H
I

Az MBH Bank személyi kölcsön ajánlata

Fizetett hirdetés
1 millió Ft
6 évre
20 585 Ft/hó
THM: 14.5%
Részletek →
2 millió Ft
6 évre
41 169 Ft/hó
THM: 14.5%
Részletek →
3 millió Ft
6 évre
61 754 Ft/hó
THM: 14.5%
Részletek →

A tájékoztatás nem teljes körű és nem minősül ajánlattételnek.

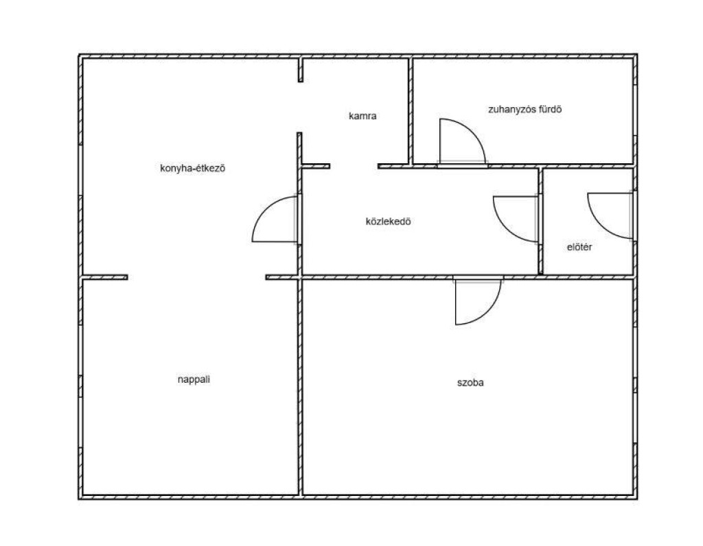
Az ingatlan leírása

Szeretne egy olyan otthont, ahol nem kell emeleteket másznia, mégis saját kertre és bőséges tárolóra vágyik? Megtalálta!

Miért jó ez Önnek?

Garantált kényelem: 58 nm-es, földszinti, akadálymentesen megközelíthető lakás.

Alacsony rezsi, biztos meleg: Gázkazán mellett egy hangulatos fatüzelésű kályha is gondoskodik a melegről (a hálót is fűti!).

Minden készen áll: Felújított konyha és fürdő (2019), gépesített konyhabútor és modern műanyag nyílászárók redőnyökkel.

Extra tárolás: Dupla garázs, két tároló, saját padlásrész és egy üvegházas kertrész a hobbikhoz!

Helyszín: Mosonmagyaróvár környéke (Alkotmány utca)
Irányár: 49,9 M Ft

Érdekli? Nézzük meg együtt!

Térkép

Ingatlan adásvétel ügyvédi díja
220 050 Ft
a hirdetésben szereplő ár alapján
  • A vételár 0,45%-a
  • Szerződéscsomag teljeskörű képviselettel
  • Ingyenes tulajdoni lap ellenőrzés
  • Az ÁFA-t már tartalmazza
Érdekel az ajánlat →
A tájékoztatás nem teljes körű és nem minősül ajánlattételnek. Minimum díj: 150 000 Ft, maximum díj: 600 000 Ft. A díj kizárólag lakóingatlan adásvételére vonatkozik.

A hirdető elérhetősége

Mov-Ing Home

Dömötör Attila
+36 30 850