Eladó Lakás
Hirdetéskód: 9226208
Mov-Ing Home
Felújításhoz személyi kölcsönt keres? Kalkuláljon itt! →
Ez a hirdetés megfelelhet a FIX 3%-os programnak.
Tudj meg többet a részletekről itt.
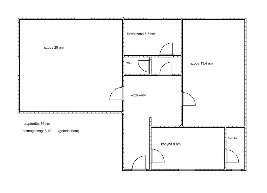
76.00 m2
ALAPTERÜLET2
SZOBASZÁMnincs megadva
ÉPÍTÉSGáz (cirkó)
FŰTÉS- CSOK igénybe vehető nem
- Tetőtér beépíthető nem
- Építés éve 1910
- Fűtés Gáz (cirkó)
- Klíma nem
- Szigetelt nem
A+++
A++
A+
A
B
C
D
E
F
G
H
I
Az ingatlan leírása
Eladó Mosonmagyaróvár kedvelt ipartelepi részén, egy patinás, 1900-as évek elején épült, masszív téglaépületben található, 76 nm-es, magasföldszinti lakás. Az ingatlan kivételes lehetőségeket rejt: tágas terei, 3,49 méteres belmagassága és stabil szerkezete azonnal magával ragadja a látogatót.
Miért érdemes ezt a lakást választania?
Azonnal költözhető műszaki tartalom: A legfontosabb és legköltségesebb felújításokon már túl vagyunk!
ÚJ FŰTÉSRENDSZER: Korszerű, kondenzációs gázkazán gondoskodik a melegről, így a rezsi alacsonyan tartható.
HŐSZIGETELT NYÍLÁSZÁRÓK: Az ablakokat modern műanyagra cserélték.
Térnövelés felfelé: A 3,49 méteres belmagasság nemcsak elegáns „polgári” életérzést ad, hanem lehetőséget biztosít állógaléria kialakítására is, amivel a hasznos alapterület akár 20-30 nm-rel növelhető!
Befektetői aranybánya – Két lakás egyben? Az alaprajz zseniális elosztásának és a vizesblokkok központi elhelyezkedésének köszönhetően az ingatlan kis ráfordítással két külön bejáratú garzonlakássá vagy egy nappali + 3 hálószobás nagycsaládos otthonná alakítható. (A 29 nm-es nagyszoba önmagában is két helyiségre osztható).
Praktikus extrák: A lakáshoz tartozik két saját pincehelyiség (tárolásra kiváló) és egy hatalmas, rendezett padlásrész használati joga. A lépcsőház tiszta, a lakóközösség csendes, az udvar rendezett, így a nyugalom garantált.
Elhelyezkedés: Kiváló lokáció az ipartelepi részen: közel a munkahelyekhez, mégis nyugodt környezetben. A vastag falak nyáron hűvöset, télen meleget tartanak.
Ez az ingatlan tökéletes választás annak, aki szereti a tágas tereket, de nem akar a gépészeti felújítással bajlódni, illetve befektetőknek, akik a határ közelsége miatt kiadásban gondolkodnak.
Miért érdemes ezt a lakást választania?
Azonnal költözhető műszaki tartalom: A legfontosabb és legköltségesebb felújításokon már túl vagyunk!
ÚJ FŰTÉSRENDSZER: Korszerű, kondenzációs gázkazán gondoskodik a melegről, így a rezsi alacsonyan tartható.
HŐSZIGETELT NYÍLÁSZÁRÓK: Az ablakokat modern műanyagra cserélték.
Térnövelés felfelé: A 3,49 méteres belmagasság nemcsak elegáns „polgári” életérzést ad, hanem lehetőséget biztosít állógaléria kialakítására is, amivel a hasznos alapterület akár 20-30 nm-rel növelhető!
Befektetői aranybánya – Két lakás egyben? Az alaprajz zseniális elosztásának és a vizesblokkok központi elhelyezkedésének köszönhetően az ingatlan kis ráfordítással két külön bejáratú garzonlakássá vagy egy nappali + 3 hálószobás nagycsaládos otthonná alakítható. (A 29 nm-es nagyszoba önmagában is két helyiségre osztható).
Praktikus extrák: A lakáshoz tartozik két saját pincehelyiség (tárolásra kiváló) és egy hatalmas, rendezett padlásrész használati joga. A lépcsőház tiszta, a lakóközösség csendes, az udvar rendezett, így a nyugalom garantált.
Elhelyezkedés: Kiváló lokáció az ipartelepi részen: közel a munkahelyekhez, mégis nyugodt környezetben. A vastag falak nyáron hűvöset, télen meleget tartanak.
Ez az ingatlan tökéletes választás annak, aki szereti a tágas tereket, de nem akar a gépészeti felújítással bajlódni, illetve befektetőknek, akik a határ közelsége miatt kiadásban gondolkodnak.