Eladó Lakás
Hirdetéskód: 9329070

Miskolc - OTP Ingatlanpont Iroda

Felújításhoz személyi kölcsönt keres? Kalkuláljon itt! →
64.00 m2
ALAPTERÜLET
2
SZOBASZÁM
nincs megadva
ÉPÍTÉS
Távfűtés egyedi méréssel
FŰTÉS
  • CSOK igénybe vehető nem
  • Tetőtér beépíthető nem
  • Építés éve 1980
  • Fűtés Távfűtés egyedi méréssel
  • Klíma nem
  • Szigetelt nem
Energetikai besorolás: Nincs meghatározva
A+++
A++
A+
A
B
C
D
E
F
G
H
I

Az MBH Bank személyi kölcsön ajánlata

Fizetett hirdetés
1 millió Ft
6 évre
20 585 Ft/hó
THM: 14.5%
Részletek →
2 millió Ft
6 évre
41 169 Ft/hó
THM: 14.5%
Részletek →
3 millió Ft
6 évre
61 754 Ft/hó
THM: 14.5%
Részletek →

A tájékoztatás nem teljes körű és nem minősül ajánlattételnek.

Az ingatlan leírása

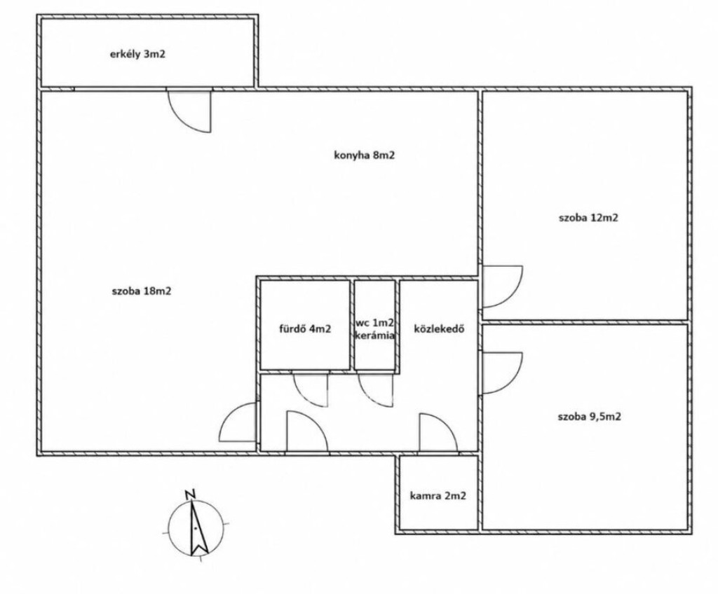
Felújított 64 nm-es, panelprogramos lakás a Vologda utcán! Eladó Miskolc egyik közkedvelt, frekventált részén, a Vologda városrészen egy 64 nm-es, 2 + 1 félszobás, PANELPROGRAMOS, teljeskörűen felújított, egyedileg átalakított erkélyes, gardróbos lakás 10 emeletes panelépület 5. emeletén. Fűtése távhő egyedi mérővel, a nappaliba hűtő-fűtő klíma került. Az ingatlanban a villany-és vízvezetékek, a nyílászárók és a bejárati ajtó cseréje megtörtént. A nappali és konyha közötti fal megszüntetésével egy tágas amerikai konyhás nappali került kialakításra konyhaszigettel! Az erkély 2025-ben felújításra került. A beépített szekrények ill. a hálószobában lévő szekrény és komód maradnak, a vételár részét képezik. Az ingatlan a belváros közelében található iskola, óvoda, bölcsőde, játszótér, szupermarket, gyógyszertár közelében, a busz-és villamosmegálló pár perces setával elérhető. A lakóközösség és a lépcsőház kulturált, tiszta. Kiváló választás fiatal párnak, gyermekkel rendelkezőknek, de idősebb korosztálynak és befektetésnek is tökéletes! További információért és az ingatlan megtekintéséért várom megtisztelő hívását!

Térkép

Ingatlan adásvétel ügyvédi díja
193 050 Ft
a hirdetésben szereplő ár alapján
  • A vételár 0,45%-a
  • Szerződéscsomag teljeskörű képviselettel
  • Ingyenes tulajdoni lap ellenőrzés
  • Az ÁFA-t már tartalmazza
Érdekel az ajánlat →
A tájékoztatás nem teljes körű és nem minősül ajánlattételnek. Minimum díj: 150 000 Ft, maximum díj: 600 000 Ft. A díj kizárólag lakóingatlan adásvételére vonatkozik.

A hirdető elérhetősége

Miskolc - OTP Ingatlanpont Iroda

dr. Rohács Andrea
+36 70 439